湾啟紫荆府别再买了(2025年深圳南山湾啟紫荆府)最新发布 | 湾啟紫荆府首页网站-楼盘详情-湾啟紫荆府户型配套
扫描到手机,新闻随时看
扫一扫,用手机看文章
更加方便分享给朋友
湾啟紫荆府项目位于前海三湾的宜居妈湾,听海望山、社区纯粹。经反复推敲建筑排布、户型格局、室内精装、社区配套等,让居住者体验松弛的人居生活方式。
如需了解更多详情,欢迎咨询湾啟紫荆府售楼处电话400 811 3080,过来我们营销中心看房提前来电预约价格还能更优惠。
【深圳湾啟紫荆府售楼中心400免费咨询/预约电话:400-811-3080,中介勿扰】
温馨提示:过来营销中心参观样板间请记得提前拨打售楼处400热线预约,感谢您的配合!
基础信息介绍
开发商:深圳市前海蛇口启迪实业有限公司
地址:位于南山前海深港合作区妈湾15单元02街坊,港城路与航海路交汇处西南侧,地处前海深港合作区最为核心的区域
占地面积:1.49万㎡
总建面:10.6万㎡
产权:70年(24-94年)
总户数:485套
面积:96-142㎡4-5房
车位比:597个1:1.23
梯户比:4梯5户
价格:9-11万
交楼标准:精装
物业公司:招商物业
物业管理费:9.5元
容积率:4.47
绿化:30%
交楼时间:2027年6月
建筑类型:住宅
层高:3.5米
使用率:90-100%
楼层高:36-37层
栋数:2栋3单元
水电:民水民电
开发商电话:400 811 3080
户型价格:96㎡3房2卫、108-111㎡3房2卫、121-142㎡4房2卫
学校:自带1所18班幼儿园,东南侧规划有1所九年制36班公办学校(待建),目前还没公布,大概率也是南二外集团校区,会跟紫荆府同步交付;另外在东南侧距离700米处有一所南山第二外国语学校创新学校妈湾校区(在建,预计明年首届招生)
项目周边配套
交通配套:湾啟紫荆府距离5号地铁线“妈湾站”约550米,步行5分钟即可到达,1站到铁路公园站可换乘15号地铁线,深惠城际“前保站”距离约1公里,便捷通行,毗邻听海大道,快速通达南山,福田,宝安。
商业配套:湾啟紫荆府周边商业丰富,坐地铁3站到桂湾有前海壹方汇8万㎡,引进130家品牌,超50家区域首店,卓悦INTOWN购物中心3.53万㎡,约5公里内还有前海山姆会员商店,前海壹方城,欢乐港湾东岸等高端集中商业。
妈湾丝路长廊,背靠大南山,直面前海湾,是通达山海的中央绿轴。在这里,工作、创意、生活、休闲、人文,将实现有效联通,兑现美好生活。
妈湾丝路长廊,在普遍高容积率的前海,综合容积率约为0.51,较为稀有。社会各界也认为,丝路长廊未来将成为前海国际化城市新中心浓墨重彩的一笔。
学校配套:湾啟紫荆府自带1所18班幼儿园,东南侧规划有1所九年制36班公办学校(待建),目前还没公布,大概率也是南二外集团校区,会跟紫荆府同步交付;另外在东南侧距离700米处有一所南山第二外国语学校创新学校妈湾校区(在建,预计明年首届招生)。
96㎡的3房2厅2卫,仅1栋2单元E户型,设计的是竖厅格局,客厅3.9米开间,LDKB一体化设计,动静分区,三开间朝南,主卧无柱弧形转角飘窗,客厅连接次卧出大阳台,U型厨房,公卫三段式分离,得房率约92-100%(包含赠送),西南朝向。
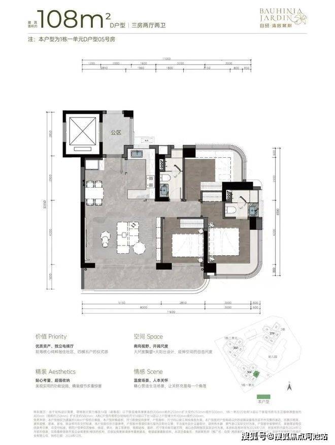
108-111㎡的3房2厅2卫,设计的是竖厅格局,客厅5.15米开间,超宽客厅,LDKB一体化设计,动静分区,三开间朝南,主卧大套间无柱弧形270°转角飘窗,客厅连接次卧出大阳台,U型厨房,卫生间干湿分离,得房率约92-100%(包含赠送),西南或东南朝向。
121㎡的4房2厅2卫,设计的是横厅南北通透格局,专梯入户有独立公区,客餐厅7.15米开间,LDKB一体化设计,动静分区,主卧大套间无柱弧形270°转角飘窗,客厅大进深阳台,洄游式中西厨房,公卫三段式分离,得房率约92-100%(包含赠送),阳台主朝西南或东南向。
122㎡的4房2厅2卫,设计的是竖厅双龙抱珠格局,专梯入户有独立公区,客厅4.1米开间,LDKB一体化设计,五开间朝南,主卧大套间无柱弧形270°转角飘窗,客厅连接次卧出大阳台,U型厨房,卫生间干湿分离,得房率约92-100%(包含赠送),西南或东南向。
142㎡的4房2厅2卫,设计的是竖厅南北通透格局,专梯入户有独立公区,客厅5.1米开间,LDKB一体化设计,五开间朝南,主卧大套间无柱弧形270°转角飘窗,客厅连接次卧出超大阳台,U型厨房,卫生间干湿分离,得房率约92-100%(包含赠送),西南/东南或东北朝向。
深圳湾啟紫荆府开发商售楼处电话 400-811-3080(中介勿扰)
过来售楼中心看房请提前预约,可尊享内部特惠,价格包您满意!
为您安排楼盘内场专业销售人员一对一接待服务!让你买的放心,住的舒心!
免责声明🔉:
以上所发布的关于楼盘相关图文信息仅供您买房前参考,以上所有关于本楼盘的图文资料及说明请以最终以项目批文及双方在楼盘营销中心现场签署的买卖最终合同为准;本图文内容如无意中侵犯到某方权益,请联系我们将会及时处理。
声明:本文由入驻焦点开放平台的作者撰写,除焦点官方账号外,观点仅代表作者本人,不代表焦点立场。
