宝中南街坊-观潮府建面约140-500㎡新规设计大平层容积率3.4+限高80米
扫描到手机,新闻随时看
扫一扫,用手机看文章
更加方便分享给朋友

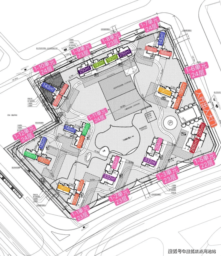
深圳宝安中心区新楼盘——观潮府将在2026年二季度取证入市,面积有140-143㎡的4房2卫,168-190-193㎡的4房3卫,253-254-260㎡的4房4卫,332㎡的4房5卫户型,共629套房源,纯南向户型,交楼时间预计在2028年底带高品质精装交付。
观潮府也就是宝中A002-0108宗地,俗称南街坊地块,在2025年8月15日深圳集中供地中,由招商+华润集团联合拍下,竞得价格86.4亿元,溢价率34.8%,楼面价59586元/m²,建安成本大概在9.53万/平。
该项目在土拍前期就深受关注,其地理位置优越,是宝中近五年首次释放的纯商品房用地,容积率仅3.41,也是该区域近年来最临近海岸线的涉宅项目,在入市后必将冲击宝中豪宅新标杆。

温馨提示:因近期参观的购房者较多,所以本楼盘采取预约制,过来营销中心现场参观样板间请记得提前拨打开发商售楼处400热线电话在线预约,预约看房价格更优惠,感谢您的配合!

楼盘基础信息
开发商:深圳市招润置业有限公司
物业公司:待定
物业管理费:待定
总占地面积:4.25万㎡
总建筑面积:21.63万㎡
容积率:3.41
绿化率:30.01%
产权年限:住宅70年,2025年8月-2095年8月
总户数:629户
总栋数及楼高:11栋,22-24层
层高:3.1米
梯户比:2梯2户/2梯3户
车位数:1205个
车位占比:1:1.92
交房时间:期房待定,预计在2028年底
交房标准:精装修交楼

项目周边配套
交通配套:观潮府交通配套呈现"现有便利+未来潜力"的双重特点。当前已开通的地铁5号线宝华站距离项目约850米(步行10-15分钟),11号线宝安站约1.2公里(步行15分钟),1号线新安站约1.8公里,主要依靠公交(如M233、M284等线路)和自驾出行。
自驾方面,项目紧邻宝安大道、沿江高速、广深沿江高速三大交通要道,5分钟可达前海核心区,25分钟直达宝安国际机场,30分钟可到福田中心区,形成便捷的"宝中-前海-福田"通勤网络。
未来交通亮点在于规划中的28号线(西湾线),若临海站设于项目附近,可步行约5分钟到达,但该线路尚未开工,预计2030年后开通。项目配备人车分流设计,地下车位约1205个(含充电桩位362个),无机械车位,满足家庭多车需求。

学校配套:根据2025年宝安区教育局最新的学区划分,小学学区划分在海韵学校,海裕小学,宝安小学;中学学区划分在:新安中学第一实验学校,海韵学校。
这里面师资最好的就是海韵学校,在宝中也是名列前茅的学校,创建于2013年,是1所九年一贯制学校,教学规模为50班,值得注意的是在2025年的学校录取积分,海韵学校小学部是115分,初中部是117.5分。
按照宝安区的积分录取方法,如果是宝安户籍+学区房购房基础分有105分,另外还有居住时间(每满1个月+0.1分)+户籍加分项(固定+0.5分),如果是户籍时间加分不够的话,就只能靠居住时间加分,而居住时间是需要网格登记确认的。
按这个方法计算,如果你是宝安户籍+学区购房+户籍加分,最高也是105.5分,其它加分就必须靠居住时间累积,海韵学校小学部必须提前7年11个月以上买房才能读上,而初中部更是夸张,需要提前10年才能读上。

商业配套:观潮府商业配套呈现"自带+步行+驾车"的多层次结构,满足不同场景需求。项目自带1.83万㎡社区商业,虽未明确具体品牌,但规划引入便民业态,如生鲜超市、餐饮、药店等,实得使用率可达90%以上。步行5分钟内可达欢乐港湾东西岸商业街(200米)及湾区书城、滨海演艺中心等文旅地标,其中东岸商业街已开业钟书阁、摩天轮、庆典广场等业态,西岸商业街仍在改造中。
驾车3公里范围内覆盖壹方城(36万㎡,约1公里)、前海HOP天地(高端商业)、海雅缤纷城(30万㎡,约2公里)、深圳大悦城(25万㎡,约1.8公里)、前海山姆会员店(仓储式购物,约4公里)、万象前海(8万㎡轻奢商业,约3.5公里)等大型商业体,形成"国际品牌+米其林餐厅"的多元消费场景。

【观潮府开发商售楼处咨询/预约电话☎️ 400-811-3080(中介勿扰)】
✅ 本项目暂不接受临时到访,过来参观样板房请记得提前来电预约!
✅ 为您安排楼盘现场销售全程一对一在线解答,给您更贴心的体验!
温馨提醒:我们楼盘开发商售楼处400电话没有设置任何所谓的“分机号”,拨打前请仔细甄别,注意保护个人隐私!谨防上当!
免责声明🔉:
以上所发布的关于深圳宝中观潮府楼盘相关介绍详情仅供您购房前参考,以上所有关于本楼盘的图文资料及说明请以最终项目批文及双方在楼盘营销中心现场签署的买卖最终合同为准;本图文内容如无意中侵犯到某方权益,请联系我们将会及时处理。
声明:本文由入驻焦点开放平台的作者撰写,除焦点官方账号外,观点仅代表作者本人,不代表焦点立场。
