深圳光明科学公园旁【满京华金硕悦府】真实测评,优缺点扒光!总价344万起
扫描到手机,新闻随时看
扫一扫,用手机看文章
更加方便分享给朋友
满京华·金硕华府开盘入市了,考虑深圳西部、喜欢光明的环境、那我们这个盘确实是不错的选择。
◭满京华·金硕华府周边教育配套
除非你不买光明的房子,只要考虑光明,『满京华·金硕华府』就是绕不过的选项。
满京华·金硕华府预计推售1138套商品房,也可能分两次拿证,户型面积为89-139㎡三至四房,目前样板房已经开放,预计9月中旬左右开盘入市。
『满京华·金硕华府』的入市备案价格,很可能和去年日光的深业颐瑞府相当,并且还都是送简单装修交付,户型方面,满京华坚持生活品质,103㎡做到大三房,120㎡以上面积才做了四房。
这样做的好处就是,保证居家生活质量的同时,也给了家人更多的活动空间,不局促、不拥挤,面朝公园,惬意生活。
虽然深业颐瑞府105㎡做了“四房:,实则就是2+2户型,能日光更多的是因为其科学公园的豪华配置。
然而,今年入市的『满京华·金硕华府』比深业更近科学公园,更大的社区、更好的品质,满京华今年确实是光明最值得期待的那一个。
光明中心208万占地的『科学公园』,预计2024年完工总体工程的60%,并且同步开园一部分。
关于光明这个大公园,我认为是深圳未来做为粤港澳湾区引擎的核心建筑标志,多年后回头望,说一定还是一个时代的精神印记,下面详细介绍下,『满京华·金硕华府』一街之隔的科学公园。
截止到2022年,深圳“建成区绿化覆盖率”为45.08%,公园总数达921个,人均公园绿地为16.04平方米,全市建成绿道2400公里,公园超1000个。
深圳四季如春,不缺“绿色”,寸金寸土人口基数庞大,相比公园,深圳可能更需要“广厦万千”。
光明更不缺公园,人均公园绿地面积达16.85平方米,全市第一,你可以说光明“穷、偏、远”,但环境这方面,就没输过,相比公园,光明似乎更需要“高新技术、高端人才、企业”,以此来匹配“世界一流科学城”的身份。
然而,就是在需要『更多房子』的深圳,绿地最多的光明,又打造了占地208万平米的公园——科学公园。
看似无理,实则暗藏最优秀的顶层城市设计。
纵观城市进程,深圳每个时期都有一个代表了时代精神与城市愿景的『中心公园』。
代表制度创新、开放共享的深圳莲花山公园,代表科技创新、海纳人才的深圳人才公园,以及代表源头创新、科学强国的光明『科学公园』。
科学公园一期工程首期预计2024年完工,届时60%的园区设施可以使用,同时,二期同年同步动工。
科学公园占地面积约208万平方米,大小相当于两个深圳湾公园。北接公常路,南临光辉大道,西至楼环路,东临光明大道、光侨路。
生态环境得天独厚,囊括马鞍山、柴山及两山之间的山坳地,坐拥楼村水、新陂头河两条水系,打造有科学芯、日之湖、环湖岸线、林霄栈道等标志性景观。
公园拟建为集生态、科普、健康、娱乐、运动、休闲、游览等功能为一体的大型综合性城市公园,体现“科学+公园”主题。
科学公园——世界级湾区城市公园——深圳版“中央公园”,总投资超15亿,定位为深圳北部中心的“绿色核心”
一个约9.5万平方米的日之湖,形成约1.4千米的环湖岸线,是光明中心城区未来的城市山水客厅;
一幕全方位震撼人心的科技水秀盛宴,演绎着科技与艺术完美的结合;
一座融艺术与科技于一体的科学芯,是充满未来感的水下科技发布厅;
一条1.6千米的橙道隐现在马鞍山林间,供人群在树林间穿梭,带来立体的景观游览体验;
一座33米高、旋转升腾、绿色生态的科学智慧光之塔,是科学与艺术的共融,寓意着科学不断向上蓬勃发展;
一处极目抒怀向往光明的科学云顶,象征着科学的巅峰;
三条穿梭于公园内的水系,形成2千米长的生态自然水岸,1千米长的蝴蝶谷湿地;
一条连通南北的生态体验廊道,形成动物跨越地铁的便捷生态走廊。
作为科学城头排住宅,『满京华·金硕华府』可能是今年光明楼市少有的亮点之一。
光明中心地段、科学公园配套、近百万方级核大城,加之满京华本土品牌开发商精心打磨,建成后与科学环廊形成城市景观节点,绿色与自然、繁华与典雅,满满的北部中心豪宅范儿。
从区位来看,『满京华·金硕华府』地处光明核心中的核心——光明中心区。
光明中心,是集总部办公、科技服务、文化交流、生态休闲、交通枢纽于一体的区域性综合服务中心。
光明中心,引导空间结构,统筹三生格局。
光明中心,北有大科学装置集群、科研高校科学家,往南依托凤凰、玉塘、马田、公明等现状产业片区,推动产业空间集聚连片、产业集群生态完善,打造先进制造业集聚区。
简单点说,光明中心地位尊崇,最适宜居,光明未来价值最高的品质豪宅,就诞生在光明中心区。
光明中心区,即将入市的满京华·金硕华府,就是集万千宠爱于一身的天选红盘,是光明楼市的门面。

满京华·金硕华府前身为光明满京华狮山利益统筹项目,沿光辉大道从西设计,涵盖10块用地,总用地10.9万㎡,总建面约32.38万㎡,其中项目用地7块,返还用地1块,公共绿化用地2块,目前7个地块已动工。
首推地块05-10地块「金硕华府」,占地约22842㎡,计容建面约137050㎡,住宅121894㎡,商业6416㎡,菜市场1000㎡,幼儿园4200㎡,社区管理用房300㎡,便民服务站500㎡,警务室50㎡,社康中心2000㎡。
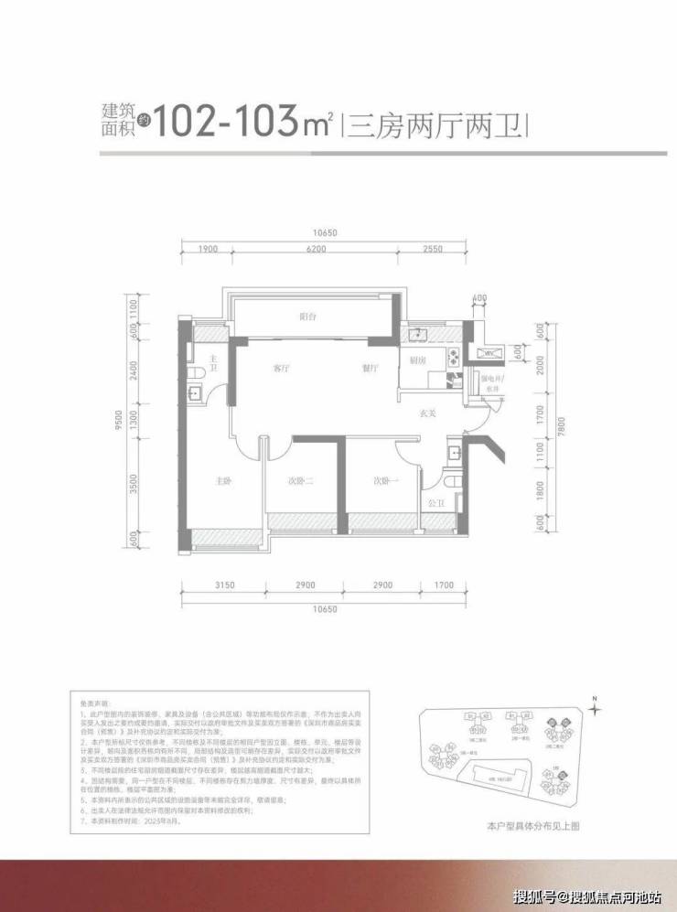
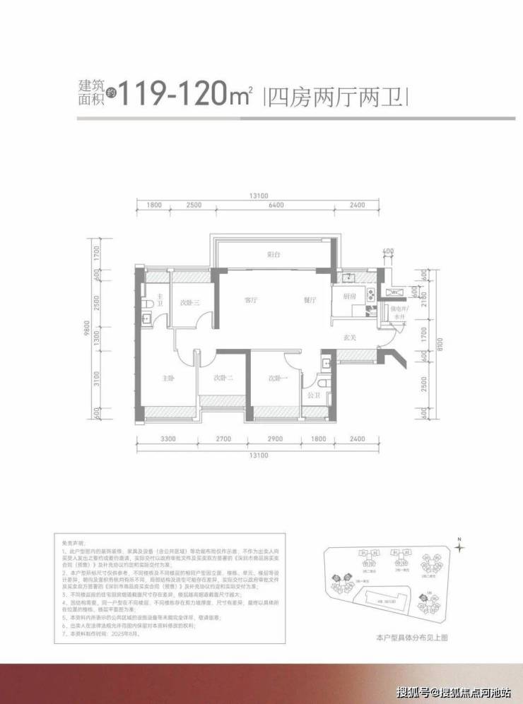
预计首推1138套 89-139㎡ 3-4房,其中89㎡ 3房1卫 132套,98㎡ 3房2卫 572套,103㎡ 3房2卫 132套,118㎡ 4房2卫 132套,139㎡ 4房2卫 176套。(网传数据,仅供参考,最终以开发商公布为准。)
交通方面,分布有地铁6号线的光明、科学公园和楼村三个站点,规划有另一条直达南山科技园的29号线,轨道交通便利。
学校方面,项目周边也分布有多所学校,包括有华师大附属星河小学、深实验光明学校、深圳小学等多所市属名校分校,很多小区隔壁就是学校。
开发商方面,满京华集团成立于1998年,历经近二十年的锐意革新和稳健发展,如今已是集产业投资、房地产开发、商用物业、创意文化、品牌汽车4S店以及国际贸易等为一体的综合型投资集团。
拥有地产总建面250万㎡,产业总建面200万㎡ ,商用物业50万㎡,储备用地300万㎡ 。
满京华在深圳先后开发过满京华喜悦里、满京华云著、满京华云晓公馆、满京华前海项目等;土地储备项目包括公明楼村第二工业区更新项目、满京华商业大厦、宝安水厂项目、观澜工业用地项目、大华酒店项目、29区单身宿舍项目等等。

满京华·金硕华府这个盘的体量和质数来看,将是挑战珈誉府当红地位的重量级选手,也是光明市场唯一的希望,地位甚至高于深房光明里。
💍目前,深圳光明|满京华·金硕华府项目【展示空间】已经开放,看房需要提前来电预约,开发商售楼处预约电话4008113080。
💎『约89 ㎡ 、约99 ㎡ 、约102 ㎡ 、约120 ㎡ 、约139 ㎡ 』三至四房,交楼样版及带软装样版全部开放展示,赶紧预约起来吧!
满京华·金硕华府户型图
以上就是关于深圳光明金硕华府这篇文章的详细介绍说明,看完以上介绍内容,如果您对我们楼盘还有任何疑问,欢迎联系满京华金硕华府开发商售楼处电话:400-811-3080(中介请勿扰)进行咨询,或者安排本楼盘现场销售在线为您一对一服务,现场销售人员会把楼盘的新资料、样板间图片视频、都发微信给您看、您不需要过来楼盘现场都能够熟悉个大概,还可以了解到本楼盘的优点缺点、房产政策、银行贷款政策、积分入学、都给您讲解的明明白白。

现场销售还可以为您对我们满京华金硕华府楼盘进行全面更详细的介绍,包含项目开盘详情、近期房价、楼层高低、户型朝向分析、最新折扣优惠活动等情况,而且还可以避免中介虚报价格,耽误您的时间和精力,中介所给的优惠我们全都可以给,让您买的放心,住的舒心!买房是大事,记得及时联系我们。
免责声明🔉:
以上所发布的关于深圳光明满京华·金硕华府楼盘相关介绍详情仅供您购房前参考,以上所有关于本楼盘的图文资料及说明请以最终项目批文及双方在楼盘营销中心现场签署的买卖最终合同为准;本图文内容如无意中侵犯到某方权益,请联系我们将会及时处理。
声明:本文由入驻焦点开放平台的作者撰写,除焦点官方账号外,观点仅代表作者本人,不代表焦点立场。
