花样年好时光(坪山)首页网站丨花样年好时光房价_户型图_花样年好时光平面图_详情
扫描到手机,新闻随时看
扫一扫,用手机看文章
更加方便分享给朋友
最新消息:加推A/B座新品,高性价比!
即将加推A/B座6-40层新品,建面约70-122㎡2-4房,其中95/100㎡竖厅3房2卫产品,备受市场青睐。总计约170余套稀缺房源,单价2.4万/m²起,还有少量特价房,抢到就是赚到!
经过一轮又一轮的降价调整,深圳东部坪山在售新房的价格基本在:单价2.4万左右
如果学校,地铁,商场都在小区附近,步行5分钟可以到,而且是实实在在已经交付的现房楼盘,只有花样年好时光一个。
如需了解本楼盘更多详情,欢迎来电咨询深圳花样年好时光开发商售楼处免费400咨询/预约电话:400-811-3080(已认证)中介请勿扰,因近期参观的人员太多,本项目营销中心暂不接受临时到访,为不耽误您的行程,过来楼盘现场参观样板房请务必记得提前来电预约,预约看房的话最终房价还能更加优惠,最终价格包您满意!
目前在售房源情况:
现楼单价2.4万起
在售面积:
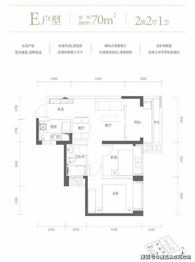
【70㎡2房】约182起
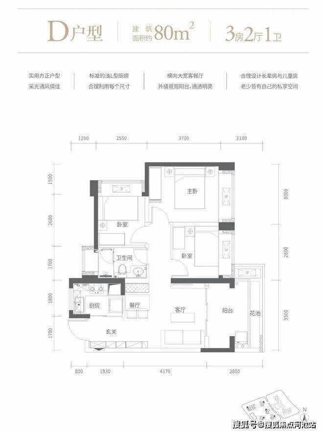
【80㎡3房】约220起
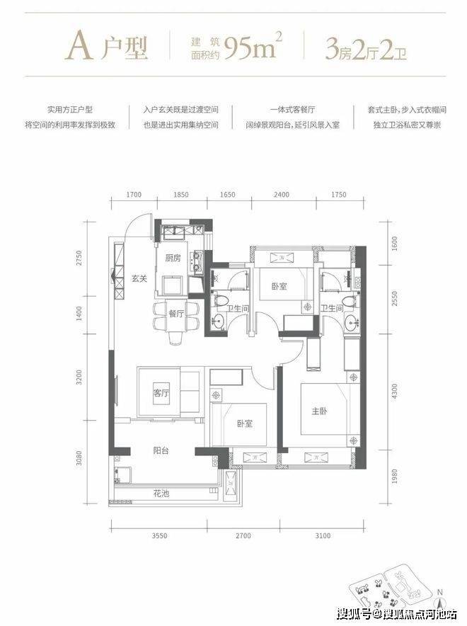
【95㎡3房】约235万起
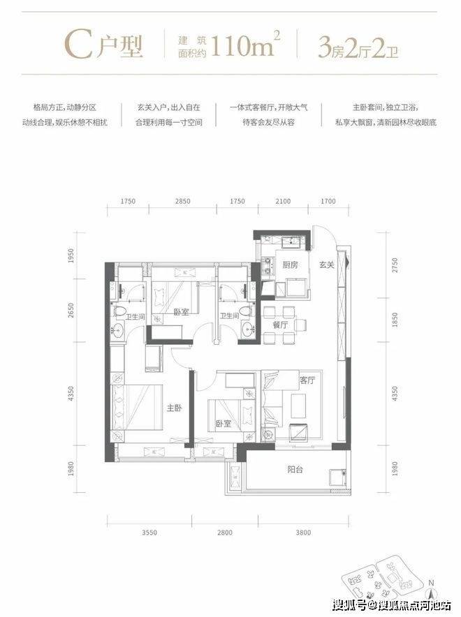
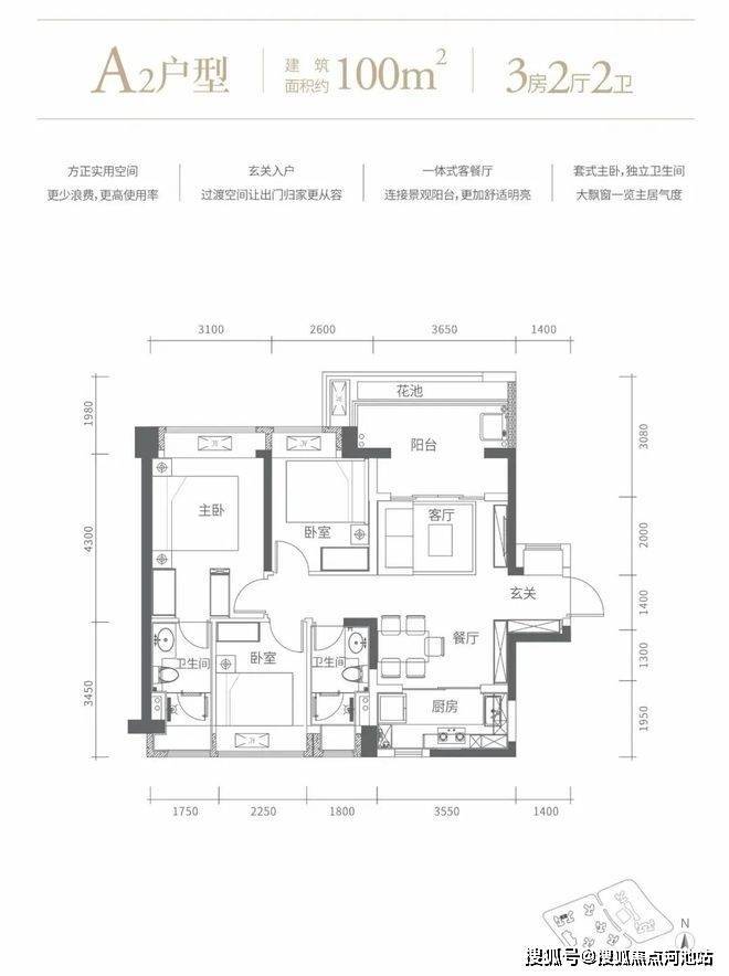
【100㎡3房】约240万起
【121㎡4房】约320起
项目基础信息:
楼盘名字:花样.年好时光
装修状况:带装修
产权年限:普通住宅:70年
开发 商:深圳市花样年房地产开发有限公司
开发商电话:400 811 3080
楼盘地址:坪山街道4号(14/16号线 坪山围站)旁
占地面积:22544.7平方米
建筑面积:134317.57平方米
绿化率:40%
楼栋总数:16栋
总户数:1728户
物业公司:深圳市花样年国际物业服务有限公司龙岗分公司
物业费:3.8元
交房时间:现房
备案价表如下
花样年好时光规划平面图:
交通配套
高铁:
坪山高铁站3km,坪山站--深圳北站(约20分钟)--福田站(约30分钟)--香港西九龙站(约1小时)
地铁:
14号线(2022年通车)坪山围站、16号线(2023年通车),19、21、23、33号线(规划中)
高速快速:
南坪快速(已通车)、东部过境高速、坪盐通道(已通车)、外环高速(一期到龙岗已通车)
云巴:
距离1km的位置未来将有云巴(一期在建中)落地,可实现坪山内便利出行。
教育配套
幼儿园:配套幼儿园(已招生)
小学:日新小学
中学:新合实验学校、中山中学
商业配套:
项目自带约4.5万㎡商业体坪山益田假日世界(约8.6万㎡)一路之隔周边配有泰禾广场、世茂广场、恒大城等合计商业体量超过200万
医疗配套:
坪山人民医院
生态配套:
坐拥约10万㎡坪山文化中心(简称六馆一城,包括:文化馆、图书馆、影城、演艺中心、展览馆、美术馆、书城)周边拥有一山两水八公园,坪山湿地公园、燕子岭、马峦山郊野公园等近4000公顷天然氧吧。
花样年好时光优点:
1,花样年.好时光从地段来说,好于坪山90%以上的楼盘,而且地铁14/16号线距离小区仅500米
2,坪山最大的商场在门口,又是现房。从居住的交付来讲目前这个楼盘就是坪山最好的。
3,而且现在价格非常便宜:单价2.4万起带装修的价格。
看完以上图文介绍,您如果想要了解更多关于我们深圳坪山花样年好时光楼盘最新消息、当前剩余房源、这几天楼盘现场折扣优惠活动、近期周边房价走势、银行相关利率政策等情况的话,欢迎来电咨询花样年好时光楼盘开发商售楼处免费400咨询/预约热线电话:400-811-3080(已认证)中介勿扰。
温馨提示:因本项目营销中心参观样板间采取预约制,为不耽误您的行程,过来营销中心现场看房前请务必记得提前来电预约,预约看房的话享受的优惠折扣比直接上门更多,最终成交价格也会更加划算,在此真诚感谢您对我们工作的支持和信赖,恭候您大驾光临。
免责声明:以上展示的关于坪山花样年好时光楼盘最新相关的最新图文资料可能部分来自网络,具体细节以最终签署的购房合同为准,如无意存在侵犯某方权益请及时联系我们处理。
声明:本文由入驻焦点开放平台的作者撰写,除焦点官方账号外,观点仅代表作者本人,不代表焦点立场。
