鸿荣源观城(售楼处)首页网站-鸿荣源观城-鸿荣源观城欢迎您-鸿荣源观城楼盘详情@售楼处
扫描到手机,新闻随时看
扫一扫,用手机看文章
更加方便分享给朋友
接最新通知:鸿荣源观城在继首推爆卖后基本所剩房源不多后,将于本周六7月12号开放新一栋样板,视野很开阔,170米楼间距,楼王位置!传出惊喜价,本次楼王位置,且带着非常诚意的价格!
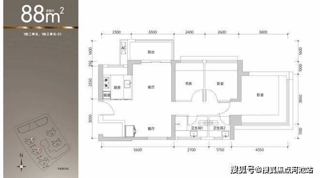
已经爆出折后价3.86万~4.21万!89㎡总价约344万起!99㎡约377万起!3栋1单元新品共计312套,约88㎡(3房2卫)约104套,约98㎡(3房2卫)约208套,且将于周六开始进行登记!且将于明年底可以进行精装付!
如需了解更多详情,欢迎咨询鸿荣源观城售楼处电话400 880 7297,过来我们营销中心看房提前来电预约价格还能更优惠。
【深圳鸿荣源观城开发商售楼处400免费咨询/预约电话:400-880-7297,中介勿扰】
温馨提示:过来营销中心参观样板间请记得提前拨打售楼处400热线预约,感谢您的配合!
鸿荣源观城-2025年深圳置业必看,「商业+公园+地铁」主题大城首发!龙华巨无霸旧改「鸿荣源观城」超级大城,无敌配套,首创高速直达地库,公园做到家楼下!!
王炸89㎡的3+1改四房户型!
最新户型图及平面图!
在深圳“北拓”战略的推动下,龙华观澜正成为城市发展的新引擎。作为鸿荣源集团继“壹成中心”后的又一巨作,鸿荣源观城以总建面超300万㎡的体量,打造集住宅、商业、办公、教育、文体于一体的超级综合体。项目首期产品即将入市,主推建面88-143㎡三至四房,以“全能配套+价格洼地”优势抢占市场焦点。
交通配套
双轨交汇:紧邻地铁4号线观澜站(步行约300米),10站直达深圳北站,16站至福田CBD;未来深大城际线开通后,可快速连接宝安机场及光明科学城。
深圳鸿荣源观城开发商售楼处电话 400-880-7297(中介勿扰)
过来售楼中心看房请提前预约,可尊享内部特惠,价格包您满意!
为您安排楼盘内场专业销售人员一对一接待服务!让你买的放心,住的舒心!
免责声明🔉:
以上所发布的关于楼盘相关图文信息仅供您买房前参考,以上所有关于本楼盘的图文资料及说明请以最终以项目批文及双方在楼盘营销中心现场签署的买卖最终合同为准;本图文内容如无意中侵犯到某方权益,请联系我们将会及时处理。
声明:本文由入驻焦点开放平台的作者撰写,除焦点官方账号外,观点仅代表作者本人,不代表焦点立场。
