独树阳光里(深圳)罗湖独树阳光里丨独树阳光里楼盘详情
扫描到手机,新闻随时看
扫一扫,用手机看文章
更加方便分享给朋友



独树阳光里项目基本介绍
开发商:深圳市独树房地产开发有限公司
总建面:约13万㎡
面积段:约73-158㎡2-4房住宅
推售户型:
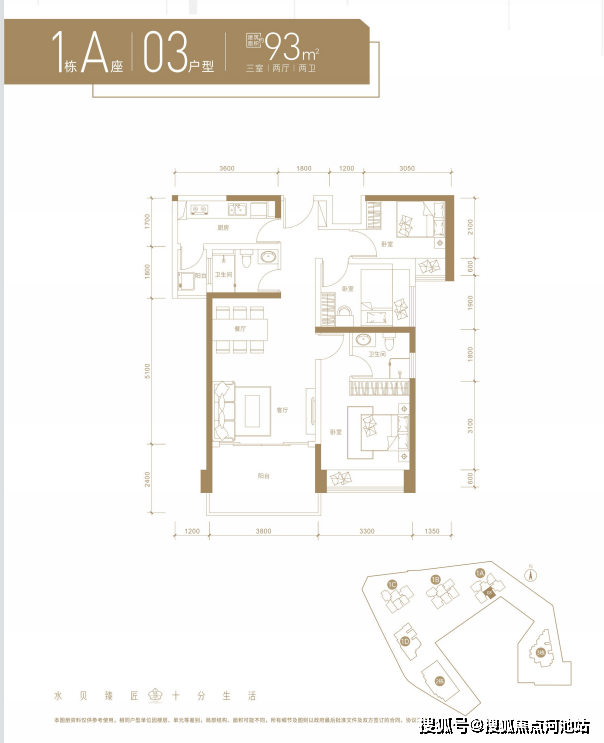
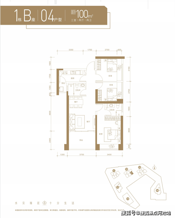
约73-74㎡ 2房2厅1卫
约91-100㎡ 3房2厅2卫
约116-121㎡ 4房2厅2卫
约158㎡ 4房2厅2卫
梯户比:A座2梯5户、B/C座3梯5户
开发商电话:400-811-3080
层高:约3米
产权年限:70年(2017-2087)
交付标准:毛坯
交楼时间:预计2023年12月31日
物业公司:深圳市光誉物业管理有限公司
物管费:6.3元(住宅)
车位数:约710个
关于开发商
项目的开发商为深圳市草莆独树实业股份合作公司, 公司位于布吉路与太白路交汇处,临近布吉农产品批发市场,西至布吉检查站,属罗湖区东晓办事处下属的一个自然村。2002年4月成立独树股份公司。

区域价值
区位未来项目位于罗湖布心业片区,西临清水河工业园区,东临围岭公园,南近水贝黄金珠宝产业聚集基地,区位优势明显。

经过五年探索罗湖通过城市更新为城区功能布局,民生服务、产业发展、环境品质等方面的可持续发展打下了坚实的基础!
一、构建城区总体新格局
高 起点、大手笔规划打造蔡屋围-湖贝深南总部经济廊道、笋岗-清水河重点片区、深港口岸经济带、笔架山河沿线更新及全域复明工程等四大千亿片区,涉及总范围约12平方公里,占建成区面积的35%, 将加速形成“一主两区三带”的发展新格局。
(一主两区三带示意图)
二、释放城市发展新空间
目前罗湖区登记在册项目 117个 ,列入更新计划项目 83个 ,完成规划审批 65个 ,已竣工项目 32个 ,在建项目 40个 ,实现土地供应 107.7公顷 ,规划建筑面积约 1 171万平方米 ,其中产业空间783万平方米,已建成建筑面积约317万平方米, 为再造一个新罗湖迈出了坚实一步 。【独树阳光里开发商售楼热线📞 400-811-3080(官方)中介勿扰!】

(罗湖区更新项目)
三、树立民生幸福新标杆
规划中小学 10所 ,幼儿园 19所 ,落实社区健康服务中心、党群服务中心等非独立占地的公共设施建筑面积 35.8万平方米 ,规划配建人才住房和保障性住房约 5682套 。
保障深汕高铁清水河站和赣深铁路笋岗动走线等2条高铁线、4条地铁线及春风隧道等重大项目建设,规划新建市政道路83条,公交首末站18座,变电站9座。

四、实现产业经济新增长
已初步建成水 贝-布心黄金珠宝产业集聚区 150公顷 ,完成大梧桐新兴产业带一期整备 31.6公顷 ,正在推进红岭创新金融产业带、清水河片区重点更新单元 102公顷 。 规划提供产业用房建筑面积 783万平方米 ,已建成产业用房 141万平方米 。
2016年以来罗湖区城市更新固定资产投资累计720亿元,年均占全区总额约60%。 试点以来,平均每年固定资产投资相当于改革前三年固定资产投资的总和。 城市更新土地收益连续多年全市第一, 为罗湖加快补齐民生短板、推动公共及市政配套设施建设提供了有力的保障。

五、塑造空间环境新品质
结合城市更新持续推进 笔架山河、布吉河、清水河 等水域的污染治理和岸线修复,落实暗渠复明。 已初步打造 笋岗艺展中心 等一批特色文化场所,并持续推动 东门老街、渔民村 等人文地标建设。

周边配套
周边配套
交通:水贝地铁站460米,步行6分钟。
主干道方面,布心路、文锦北路、丹平快速等交通路网邻近项目,通勤便利。

商业:项目自带社区底商,位于水贝的传统珠宝商圈内。
项目周边商业繁璀,IBC MALL、福安购物广场、喜荟城购物中心等,再远点还有老街商圈等。

教育:目前项目区域暂位于九年一贯制学校松泉中学,周边小学众多:东昌小学,东晓小学、翠茵小学、华丽小学等。
深圳市松泉中学创办于2002年7月,是一所全日制初级中学。占地面积20888.6平方米,建筑面积14000平方米。优雅的环境,一流的设施,和谐的氛围,文明的校风,严谨的学风,为学生的全面发展和茁壮成长提供了可靠保证。
近日深圳市松泉中学将总投资5.08亿元,用地面积20667.35平方米,总建筑面积60531平方米,办学规模由36班拓展至54班。
休闲:周边公园众多,围岭公园、洪湖公园、翠竹公园等。

























总结
独树阳光里的优点:
1、罗湖传统商圈——水贝珠宝圈,区位不错
2、地铁3号水贝站,周边主干道交错,交通便利
3、附近在建或已竣工的旧改较多,面貌焕然一新
4、围岭公园、洪湖公园休闲配套好
5、九年一贯制松泉中学,即将扩容,教育资源好
【独树阳光里开发商售楼处咨询/预约电话☎️ 400-811-3080(中介勿扰)】
✅ 本项目暂不接受临时到访,过来参观样板房请记得提前来电预约!
✅ 为您安排楼盘现场销售全程接待并讲解,给您更贴心的看房体验!
温馨提醒:我们楼盘售楼部400电话没有设置任何所谓的“分机号”,拨打前请仔细甄别,注意保护个人隐私!谨防上当!
免责声明🔉:
1、本宣传资料仅作为客户邀约邀请,不作为要约或者承诺,对本楼盘配套、交通、学校(建设)规划或者产品介绍,旨在提供相关信息,不意味着本公司对此作出承诺,相关内容不排除因政府相关规划、规定及开发商未能控制原因而发生变化,最终以政府相关部门审批文件为准。
2、以上所发布的独树阳光里户型图与样板间实拍图所示平面仅供参考,具体因楼栋、楼层的差别,局部结构、面积等存在不同,不构成要约内容。户型图与样板间内部实拍图所示家具和电器配置仅供参考,不作为交付标准,最终以买卖合同为准。
3、对于文中部分内容及图片,我们致力于保护原作者版权,转载或引用仅为传播更多信息为目的,部分源自互联网,无法核实首次出处,如涉及侵权,请联系我们并配合及时处理。
4、双方权利义务以双方最终签订的相关合同为准。
5、相关公共配套设施及规划条件以政府审批的文件为准。
声明:本文由入驻焦点开放平台的作者撰写,除焦点官方账号外,观点仅代表作者本人,不代表焦点立场。
