深圳南山【山樾湾】单价3.7万/㎡起,前海安居房首次试点面向轮候库外家庭!
扫描到手机,新闻随时看
扫一扫,用手机看文章
更加方便分享给朋友
最新消息:深圳南山山樾湾楼盘安居房已于10月24日正式对外开放,本次开盘推出建面约70㎡两房及90㎡三房,单价3.7万/平起!山樾湾项目计划2026年8月31号带装修交楼。如需了解本楼盘更多详情,欢迎来电咨询山樾湾楼盘开发商售楼处免费400咨询/预约电话:400-811-3080(已认证)中介请勿扰,因近期参观的人员太多,本项目营销中心暂不接受临时到访,为不耽误您的行程,过来楼盘现场参观样板房请务必记得提前来电预约,预约看房的话最终房价还能更加优惠,最终价格包您满意!
项目均价4.2万/㎡,总价区间:
两房:255万—316万
三房:341万—410万
山樾湾位于深圳市南山区前海路0005号,开发建设单位为深圳市新建投资发展有限公司。项目供应安居型商品房房源4900套,其中:两房户型房源3710套,建筑面积约70㎡;三房户型房源1190套,建筑面积约90㎡。
山樾湾花园(曾用名:“汉京花园”)安居型商品房位于深圳市南山区前海妈湾港片区,更是在前海自贸区的小南山北侧山脚下。
规划平面图
山樾湾项目二期户型图欣赏
主要分为70A/70B/70C三个户型:
70A为“双龙抱珠”户型,采光面大,卧室、客厅空间舒适性较好;
70B户型方正,动静分区,是传统的竖厅设计,朝向较好;
70C户型与70B户型基本一致,主要分布在端头位;
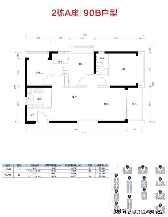
三房户型
主要为90A/90B两种户型;均位于端头位,私密性较强,采光不错,且配多了一个卫生间;其中,
90A户型动静分区,卧室和客厅互不干扰,且每个空间尺寸较为舒适;
90B户型的客厅作为家庭主要活动空间,尺度较为宽敞,通风性较好;
并且最高楼层仅为38层,对比现在动辄50-60层的超高层,居住安全性、得房率、采光方面都优异许多,不妨再来看看现场视频以及户型图展示。
山樾湾周边配套:
地铁和交通配套:
公交配套:目前项目最近的是"月亮湾公交总站“,距离项目约400米,且项目自带公交首末站,可解决基本交通需求。
地铁配套:走路约1.5公里可到5号南延线荔湾站,5号线与2号线在赤湾对接,因此可通过荔湾站轻松前往福田、宝安等核心区域;
而距离山樾湾花园最新的地铁站距离在建中的15号线西部物流站约722米,测距工具来源地图工具。
此外24年1月12日,“深圳地铁”微信公众号发布《15号线21个工点已开工建设!还有这些线路有进展!》.
15号线作为第五期建设规划中的首条地铁线路,也是串联前海、南山和宝安中心区的首条环线线路,线路起自 听海路站,止于 听海路站。
除了地铁,目前出门即是月亮湾大道和广深沿江高速,交通四通八达,市政道路已经成熟可靠。
休闲和商业配套
项目社区楼下自带近1万平底商,项目北边即是兴海湾肉菜市场,8分钟可到泛海城市广场商业,附近还有大润发购物广场,足够满足生活所需,且项目自带商业也能满足极大生活需求。
同时自然配套更不比多说,配套的休闲环境是山樾湾花园极大的亮点,百年荔林环绕,坐拥两山七公园(大、小南山公园、月亮湾公园、青青世界、荔林公园,兴海公园,赤湾公园)。奢享超500万平方米的自然氧吧,自然资源的稀缺和不可复制性让这里有着无可比拟的优越性。部分户型更就可以都可以远眺大小南山,清晨起来推开窗呼吸一口高纯度的负氧离子空气,为忙碌的生活充满活力。
学校配套
规自局GOV官网通告显示,项目东侧一路之隔的地块,配套设施调整为九年一贯制学校(45班)。
如果项目所在区的小学生,规划就读南山区月亮湾小学(全称:南二外(集团)前海创新教育集团月亮湾小学),项目出发距离约1公里,属于步行接送能接受的范围,且小学加入集团化办学,整体将提升教学质量。
集团化办学是推进教育优质均衡发展的重要举措,其中南山区第二外国语学校(集团)前海创新教育集团则由前海桂湾四单元、前湾十单元、妈湾十九单元的配套学校和前海港湾小学、月亮湾小学等学校组建而成。
南山区今后还将结合片区教育发展的实际情况和办学规律、教育规律,适时继续推进集团化办学覆盖面提升,不断提升集团的综合实力。
如果项目所在区的中学生,规划就读南山区第二外国语学校(集团)赤湾学校,项目出发距离约2公里,无论步行或自驾,都要经过月亮湾小学。
且刚好深大附中的招生范围,还就在山樾湾花园右边这条马路,所以等项目交付那会,再看教育局如何安排初中的学位了,不过两个学校都蛮不错,都属于南山区还不错的学校。
地理位置最近的高中就不用说了,深大附中(高中部)走路就几百米。
看完以上介绍,如需了解更多关于我们深圳南山山樾湾楼盘最新消息、剩余房源以及楼层、这几天房价优惠活动、在卖的户型、限购政策、房贷相关问题等情况,欢迎来电咨询山樾湾开发商售楼处全国免费400咨询/预约电话:400 811-3080(已认证)中介请勿扰。
温馨提示:因近期本项目售楼中心来访的看房客户特别多,过来营销中心参观样板间采取预约制,为不耽误您的行程,过来营销中心现场看房请务必记得提前拨打售楼处400电话来电进行预约一下,预约看房价格还可以享受更多开发商内部优惠,名额有限千万不要错过,感谢您对我们工作的支持和配合,在此恭候您大驾光临实地品鉴。
免责声明:以上展示的关于深圳南山山樾湾楼盘最新图文资料可能有部分来自网络,一切信息以最终在现场签署的购房合同为准,如图文内容无意中侵犯某方权益的话,请及时联系我们将配合处理。
声明:本文由入驻焦点开放平台的作者撰写,除焦点官方账号外,观点仅代表作者本人,不代表焦点立场。
