深圳光明《松茂御城2期》开盘去化165套,户型89㎡做正规4房!
扫描到手机,新闻随时看
扫一扫,用手机看文章
更加方便分享给朋友
最新消息:位于深圳光明区的新楼盘——松茂御城二期,已拿证,单价3.45万/㎡起,正式认筹,诚意登记即可锁定房号,享开盘98折,认筹交5万诚意金享开盘95折!松茂御城将于9月7日开盘选房!
【折后价格区间】预约看房更优惠!
81㎡三房两卫280-305万
89㎡四房两卫320-350万
109㎡四房两卫420-450万
137㎡五房两卫516-548万
下面是我们松茂御城楼盘营销中心实拍照片:
温馨提示:因近期参观的购房者较多,所以本楼盘采取预约制,过来营销中心现场参观样板间请记得提前拨打开发商售楼处400热线电话在线预约,预约看房价格更优惠,感谢您的配合!
项目效果图
楼盘基础信息
1、开发商:深圳市松茂房地产集团有限公司
2、物业公司:深圳市海天泰物业管理有限公司
3、物业管理费:3.8元/㎡
4、总占地面积:84.53万/㎡
5、总建筑面积:29.78万/㎡
6、开发商电话:400 880 7297
7、绿化率:40%
8、产权年限:2022年7月25日-2092年7月24日(70年)
9、总户数:2130户
10、总栋数及楼高:12栋,31-32F
11、梯户比:2梯4户/2梯5户/2梯6户
12、车位数:2321个
13、车位占比:1:1.09
14、交楼时间:一期现房,二期准现房
15、交楼标准:精装修交房
松茂御城究竟值不值得买?
豪宅范品质公区
尊贵与仪式感共存的归家体验
地面地库精装双大堂,回家的每一步都是荣耀之路;地面精装入户大堂,约4米挑高,约33-68㎡奢阔入户大堂,复刻高星级酒店般的尊崇归家体验;宽阔明亮精装电梯厅,以细腻材质与精湛工艺,礼呈豪宅般的归家礼遇。
精工准现楼
所见即所得,置业更安心
项目实景准现楼呈现,园林景观、建筑品质、户型格局、装修品质等所见即所得,置业省心无风险。
精工准现楼 家期不久候
约2万㎡全龄互动大园林
一座自然生长的“度假公园”
园林以“水岸绿洲”为蓝本,引水为邻诗意栖居。园内配备约410㎡亲子双泳池,下楼即享悠然度假;约300米元气跑道,把健身房搬进自然中;林涧廊亭与光影水院,为久处喧嚣的人提供一方静谧清幽;约6500㎡三层屋顶花园与双层架空会所,配备儿童益智空间、青年运动场、长者休闲区等,打造“邻里社交厅”,共筑温情社区。
松茂御城二期规划平面图
81平3房,赠送4个多平方的面积,可以改造为三房两卫,使用率约91.5-93.5%。
81m²的3+1房
89平4房2卫,竖厅格局,赠送面积约11.85-15.02㎡,加赠送后得房率约93-96.48%。
图源网络
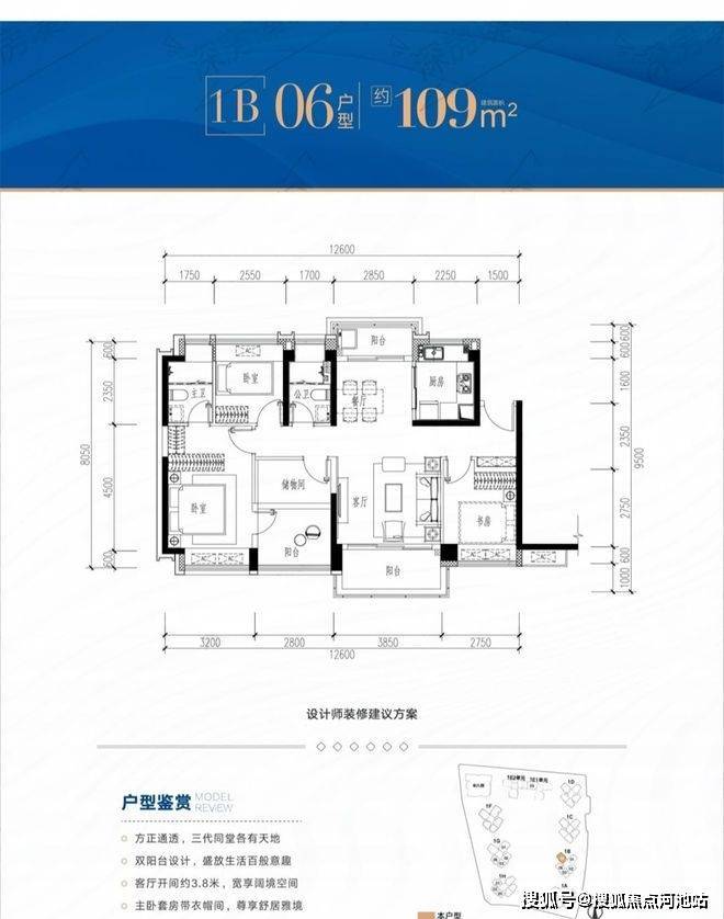
109平4房2卫,竖厅格局,南北通透/东南朝向,赠送面积14.41-16.43㎡,加赠送后得房率约92.82-94.67%。
135平5房2卫,南北通透双阳台,东南朝向看花园,赠送面积21.51-21.8㎡,加赠送得房率约95.56-95.78%。
松茂御城周边配套怎么样?
13号线双地铁站
1站凤凰城 9站进南山
近邻13号线(预计2025年底开通)月亮路站(在建)直线距离约600米,距将围站(在建)直线距离约800米,未来1站凤凰城,9站进南山,一线直达南山科技园、深圳湾 口岸。13号线正式进入列车调试阶段,向下一步通车试运营迈出了关键性一步。
*图片来自于网络,如有侵权请联系删除,以政府规划实施为准
全龄教育矩阵
从启蒙到高中的“一站式成长”
社区自建约2400㎡9班公立幼儿园(在建),家门口的快乐启蒙。距深实验光明明湖学校直线距离约800米,周边更有深圳市光明实验学校、深圳中学光明科学城学校、深大附属光明学校(玉塘学校)、深圳市光明区凤凰城实验学校等九年一贯制学校,护航孩子更好成长。
集优生活主场
一城精粹,畅享万千繁华
繁华商圈:同享约38万㎡醇熟商业
约1.75万㎡社区商业(在建)、约6万㎡13号线城市更新商业(在建),5公里内同享约15万㎡光明大仟里、约10万㎡蓝鲸世界、约6万㎡万达广场等醇熟商业。
公园为邻:约200万㎡城市公园绿意荟萃
约58万㎡明湖城市公园举步即达,更新单元内约60万㎡主题公园(在建)、约6.8km茅洲河生态长廊等绿意荟萃。
【松茂御城开发商售楼处咨询/预约热线电话☎️400-880-7297(已认证,中介勿扰)】
✅本楼盘样板房参观采取预约制,过来前请记得拨打开发商电话进行预约,预约看房价格更优惠,感谢您的配合!
✅我们将为您安排专业的楼盘内场销售人员全程为您接待, 给您提供更加贴心的看房以及购房服务体验!
特别注意:本楼盘开发商售楼部400电话没有设置任何所谓的“分机号”,拨打前请认真识别,注意保护个人隐私!谨防上当!
免责声明:
以上所发布的关于深圳光明松茂御城楼盘相关介绍详情仅供您购房前参考,以上所有关于本楼盘的图文资料及说明请以最终项目批文及双方在楼盘营销中心现场签署的买卖最终合同为准;本图文内容如无意中侵犯到某方权益,请联系我们将会及时处理。
声明:本文由入驻焦点开放平台的作者撰写,除焦点官方账号外,观点仅代表作者本人,不代表焦点立场。
