深圳坪山中心 东部置业首选【花样年好时光】品质装修·实景现楼!
扫描到手机,新闻随时看
扫一扫,用手机看文章
更加方便分享给朋友
花样年·好时光,是深圳东部坪山老城区域为数不多在售的新楼盘,而且是现房即买即住,一路之隔就是坪山最有名的益田假日广场,周边居住氛围浓厚,商业配套完善,14/16号双地铁线交汇坪山围地铁站。
如需了解本楼盘更多详情,欢迎来电咨询深圳坪山花样年好时光楼盘开发商售楼处免费400咨询/预约电话:400-811-3080(官方发布)中介请勿扰,因近期参观的人员太多,本项目营销中心暂不接受临时到访,为不耽误您的行程,过来楼盘现场参观样板房请务必记得提前来电预约,预约看房的话最终房价还能更加优惠,最终价格包您满意!
下面是我们花样年坪山项目营销中心实拍照片:
关于交楼:
花样年·好时光已经整体竣工入住,房屋品质实景可见,不必担心期房看不见的质量问题。带精装现楼销售,即买即住,不用担心项目会烂尾或延迟交楼,买的安心。相比购买预售期房需等待2-3年才能入住,节省了几十万的租房成本。
小区内部实景图:
一、项目介绍
花样年好时光,位于坪山区东纵路与金碧路交汇处,位居坪山区中心城区核心地段,毗邻地铁14/16号线换乘站坪山围站(步行约300米左右),是双地铁覆盖的TOD综合体项目。项目地处坪山“六馆一城”文化中心辐射范围,紧邻坪山大道、南坪快速等主干道,30分钟可直达福田中心区,1小时接驳香港西九龙站,形成“轨道交通+高速路网”的立体交通体系。
花样年好时光项目周边集聚坪山区重点发展的新能源汽车、生物医药、人工智能等战略性新兴产业。坪山区2024年规上工业总产值突破6000亿元,战略性新兴产业占比超九成,依托“6+3”产业集群政策,已形成千亿级先进制造业基地,项目邻近比亚迪总部、大工业区及坪山高新南等产业园区,与规划中的大运AI小镇(龙岗)形成产业联动,吸引高精尖人才聚集。
花样年好时光,由花样年集团打造,总占地面积约3.87万㎡,总建筑面积约33.44万㎡,计容建筑面积约23.95万㎡,容积率约6.18,绿化率约40%,分03/04两个地块开发,有连廊相连,共9栋住宅。
目前在售的是03地块,总占地面积约2.25万㎡,总建筑面积约18.61万㎡,计容建筑面积约13.31万㎡,容积率5.49,绿化率40%,共由6栋43-46层高的住宅组成,其中1栋A/B/E座住宅44F,1栋C座住宅46F,1栋D/F座住宅43F,2栋规划1所九班制幼儿园。
04地块,总占地面积约1.61万㎡,总建筑面积约14.81万㎡,计容建筑面积约10.64万㎡,容积率6.32,绿化率30%,共由3栋43层高的住宅组成,其中1栋A/B/C座住宅43F,1栋D座写字楼21F。
总规划1696户,其中商品房1289户,回迁房407户,1栋B座3梯4户,其它全部3梯5户设计,规划停车位2321个,其中可供业主使用车位1770个,车位占比约1:1.4。
二、项目基础数据
【开发商】深圳市花样年房地产开发有限公司
【开发商电话】400 811 3080(官方发布)
【占地面积】约3.87万㎡
【建筑面积】约33.44万㎡
【总户数】1696户(含可售商品房1289套)
【户型面积】约70-80-95-100-122㎡2-4房
【停车位】1770个
【物业及物业费】花样年国际物业,3.8元/㎡
【绿化率】40%
【容积率】5.49
【总层高】9栋,43-44-46层
【梯户比】1栋B座3梯4户,其它全部3梯5户
【交楼时间】现房,精装修交付
【产权年限】70年(2019.10-2089.10)
【项目位置】深圳市坪山中心区东纵路与金碧路交汇处
三、项目户型解析:
项目规划平面图
02项目户型介绍
70㎡的2房2厅1卫,设计的是竖厅格局,客厅3.45米开间,进门玄关,LDKB一体化设计,2个卧室分别做到了主卧13.2㎡/次卧8.64㎡(包含墙体飘窗),L型厨房,卫生间干湿分离,得房率72.47%(不含赠送),有朝东向或西向。
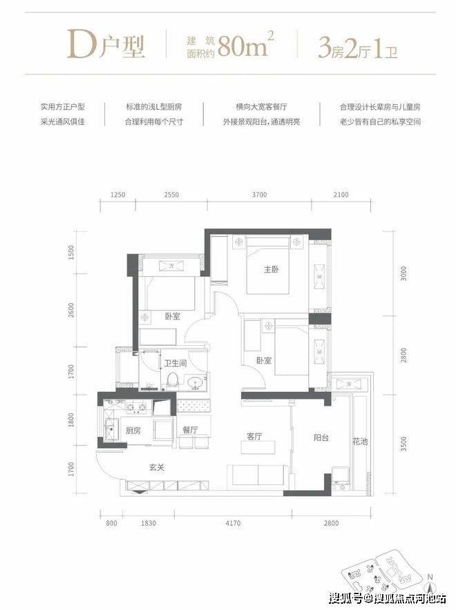
85㎡的3房2厅1卫,设计的是经典竖厅格局,客厅3.5米开间,进门玄关,LDKB一体化设计,动静分区,3个卧室分别做到了主卧12.9㎡/次卧8.96㎡/次卧8.16㎡(包含墙体飘窗),L型厨房,卫生间干湿分离,得房率72.48%(不含赠送),有朝东向或西向。
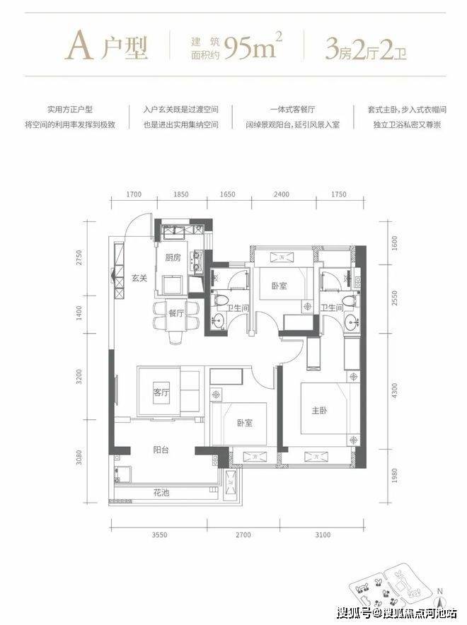
95㎡的3房2厅2卫,设计的是经典竖厅格局,客厅3.55米开间,进门玄关,LDKB一体化设计,动静分区,三开间朝南,3个卧室分别做到了主卧15.19㎡/次卧8.64㎡/次卧7.56㎡(包含墙体飘窗),L型厨房,卫生间干湿分离,得房率72.48%(不含赠送),有东南、西南或正南朝向。
100㎡的3房2厅2卫,A1户型,设计的是竖厅格局,客厅3.55米开间,进门玄关,LDKB一体化设计,动静分区,3个卧室分别做到了主卧15.19㎡/次卧8.64㎡/次卧7.93㎡(包含墙体飘窗),L型厨房,卫生间干湿分离,得房率72.63%(不含赠送),阳台主朝西北向。
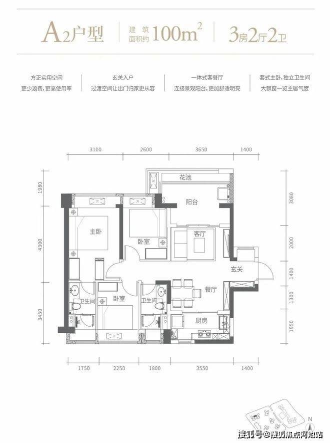
100㎡的3房2厅2卫,A2户型,设计的是竖厅格局,客厅3.65米开间,进门玄关,LDKB一体化设计,动静分区,3个卧室分别做到了主卧15.19㎡/次卧8.32㎡/次卧7.76㎡(包含墙体飘窗),L型厨房,卫生间干湿分离,得房率72.63%(不含赠送),阳台主朝东北向。
110㎡的3房2厅2卫,A2户型,设计的是经典竖厅格局,客厅3.8米开间,进门玄关,LDKB一体化设计,动静分区,三开间朝南,3个卧室分别做到了主卧17.57㎡/次卧9.26㎡/次卧8.96㎡(包含墙体飘窗),L型厨房,卫生间干湿分离,得房率73.97%(不含赠送),西南朝向。
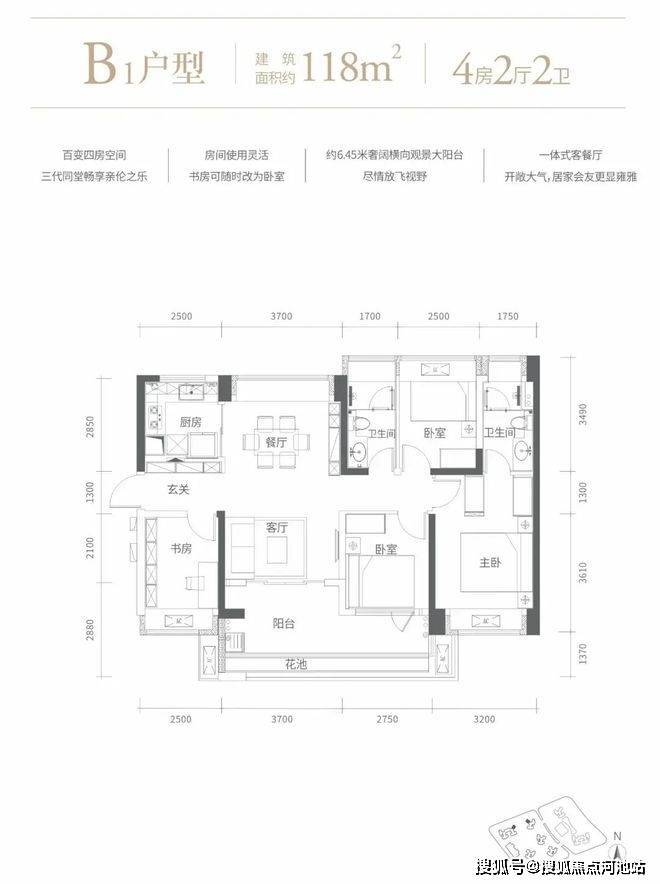
118㎡的4房2厅2卫,设计的是竖厅南北通透格局,客厅3.7米开间,进门玄关,四开间朝南,4个卧室分别做到了主卧15.71㎡/次卧9.02㎡/次卧8.72㎡/次卧8.27㎡(包含墙体飘窗),客厅连接次卧出6.45米长的大阳台,U型厨房,卫生间干湿分离,得房率73.44%(不含赠送),阳台主朝东南或西南向。
四、交通出行
高铁:坪山高铁站3KM,坪山站-深圳北站(20分钟)-福田站(30分钟)-香港西九龙站(1小时)。
地铁:14 号线(2022年通车),坪山围站-岗厦北站(40分钟)、16 号线(2023年通车),坪山围站-大运站站(20分钟)、19、21、23、33号线(规划中)。
4条高快速路:南坪快速(已通车)、东部过境高速、坪盐通道(建设中,预计2022年竣工,未来10分钟到盐田)、外环高速(一期到龙岗已通车),两横四纵高速路网干道,打造城市便捷交通网,通达湾区。
云巴:距离项目1公里的位置未来将有云巴(一期在建中)落地,可实现坪山内便利出行。
五、商业配套
楼盘规划自带4.5万方的商业体;项目周边的泰禾广场、世茂广场、恒大城的项目合计总商业配套达200万平米,未来整个坪山的核心商业资源将汇聚于此。
六、周边学校
初中学区为坪山中学与中山中学组成的大学区(实际以教育局等相关部门公布为准)。
项目小学学区范围示意图:日新小学、中山小学、锦龙小学、新合实验学校
项目初中学区范围示意图:新合实验学校、中山中学
七、休闲配套
项目周边拥有一山两水八公园,坪山河湿地公园、燕子岭、和拥有深圳最大瀑布的马峦山郊野公园等, 4000公顷天然大氧。
花样年好时光究竟值不值得买?
1、首先说下地段,花样年好时光所在的板块是坪山锦龙片区,也是坪山老中心地带,周边居住氛围浓厚,不过周边都是城中村居多,虽然多数都已经纳入了城市更新地块,但是因为近期的经济大环境影响,整体的旧改进度也比较缓慢,城市面貌需要长周期改善。
2、从买房必备3件套来分析,家门口的益田假日世界购物中心也是坪山最有名的商业,14/16号地铁线坪山围站距离仅400米,楼下的幼儿园跟日新小学也可以做到目送式教育,如果想读好点的初中也有深实验是在学区范围,总体评分还是不错的。
3、花样年好时光也是现房精装交付,即买即住,所见即所得,不用担心烂尾或者质量问题,也可以做到买哪套看哪套。
4、花样年好时光这次给到的优惠力度还是比较大的,是该楼盘有史以来的最低折扣跟价格,190万出头就可以上车2房,220万出头买3房,330万出头买4房,且都是精装现房。
看完以上图文介绍,您如果想要了解更多关于我们深圳坪山花样年好时光楼盘最新消息、当前剩余房源、这几天楼盘现场折扣优惠活动、近期周边房价走势、银行相关利率政策等情况的话,欢迎来电咨询花样年好时光楼盘开发商售楼处免费400咨询/预约热线电话:400 811 3080(官网发布)中介勿扰。
温馨提示:因本项目营销中心参观样板间采取预约制,为不耽误您的行程,过来营销中心现场看房前请务必记得提前来电预约,预约看房的话享受的优惠折扣比直接上门更多,最终成交价格也会更加划算,在此真诚感谢您对我们工作的支持和信赖,恭候您大驾光临。
免责声明:以上展示的关于深圳花样年好时光楼盘最新相关的最新图文资料可能部分来自网络,具体细节以最终签署的购房合同为准,如无意存在侵犯某方权益请及时联系我们处理。
声明:本文由入驻焦点开放平台的作者撰写,除焦点官方账号外,观点仅代表作者本人,不代表焦点立场。
