深圳【开云府】二期,单价5万/㎡上车南山住宅现楼!一站前海,三站深圳湾!
扫描到手机,新闻随时看
扫一扫,用手机看文章
更加方便分享给朋友
本项目位于南山蛇口赤湾片区,属蛇口招商街道,是南山区的西南海角,东临蛇口太子湾,西接前海自贸区。
国南山执笔,启幕赤湾时代,为蛇口造一座山海都会——开云府。41载中国南山集团,承担片区规划者和运营者角色,倾筑约3.2平方公里赤湾先发·城市双地铁综合体。地铁2/5号线接驳,海陆空轨链接世界。近享高密度历史人文资源,与国际化学校为邻,家门口享百万商圈繁华;大南山、小南山、赤湾山、伶仃洋三山一海环绕,毗邻深圳华英路樱花主题公园。建面约124-203㎡全生命周期天幕户型,360°采光通风,270°环景主卧,近1:1高梯户比,极目山海盛景,焕新奢居生活。
目前在售:
124㎡三房:约675-710万
129㎡三房:约700-760万
133㎡三房:约750-780万
203四房:约1100-1300万
这个价格比旁边人才房还便宜3000元,基本属于南山地板价了。
好消息:这几天我们推出几套一口价房源,单价4.9万起/平米!数量有限!预约看房还能更便宜!
如需了解本楼盘更多详情,欢迎来电咨询深圳南山赤湾开云府楼盘开发商售楼处免费400咨询/预约电话:400-811-3080(已认证)中介请勿扰,因近期参观的人员太多,本项目营销中心暂不接受临时到访,为不耽误您的行程,过来楼盘现场参观样板房请务必记得提前来电预约,预约看房的话最终房价还能更加优惠,最终价格包您满意!
下面是我们楼盘营销中心实拍照片:
项目基本信息
项目名称:开云府
开发商:深圳市海城锦实业发展有限公司
开发商电话:400 811 3080
占地面积:约3.4万㎡
总建筑面积:32万㎡
建筑类型:住宅、写字楼,五星国际酒店,商业裙楼
物业公司:赤湾物业
物业费:6.9/平/月
楼栋数:4栋(2栋可售住宅,1栋保障房,1栋酒店办公)
总户数:可售418户
产品面积段:约124-129㎡-133㎡-203㎡ 3-4房326㎡-677㎡顶复
梯户比:4梯4户(1梯1户) /4梯6户
容积率:7.0
绿化率:30%
使用率:71-76%
车位比:1346个1:1.1(地上460,地下886)
楼层高:49-54层
层高:3.1-3.2m
交楼时间:2025年6月
交付标准:精装
产权年限:50年(04-54年)
房屋用途:二类住宅
学位:南二外赤湾学校
实景图欣赏:
目前已经是现楼状态,2025年9月30日精装交楼的。
开云府二期户型图鉴赏:
户型为124-129-133㎡三房二卫和203㎡大四房三房,除了最小的124㎡其他都是多阳台设计。纵使这个三房的尺度感比如今市面上很多刚需三房二卫要宽敞不少,但整体来看使用率确实不高。
129㎡三房二卫A1:
A1有两条腿,分别1-1栋01/02,主朝向是西北向,双龙抱珠格局。
舒适大三房设计主卧都享有270度采光面,整体空间尺度感大且采光面充足,视野非常宽阔。
129㎡三房二卫A2:
A2有两条腿,分别1-1栋03/06,主朝向是东南向,双龙抱珠格局。这个户型是超阔大阳台,朝向优于A1,但公卫是个暗卫。
124㎡三房二卫A3:
A3也是两条腿,分别是1-1栋04/05,主朝向是东南向,双龙抱珠格局。客厅拥有超大观景阳台,缺点是公卫是个暗卫,小次卧和主卫也对天井外走廊,采光不足。
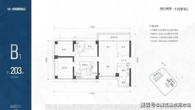
203㎡四房三卫B1:
位于1-2栋两条腿,设有电梯厅入户空间,隐私性拉满,这个空间约有面积6.27㎡,空间也可以很好利用。
整个户型设计是四房三卫南北通透,约有7.4米大阳台。双套房设置且270°景观面,主卧带独立衣帽间和大浴缸。
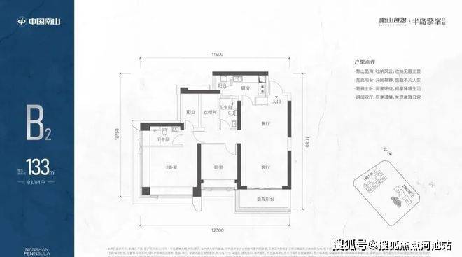
133㎡三房二卫B2:
B2有两条腿,分别1-2栋03/04,主朝向西南向,竖厅设计。
这个户型的所有卧室空间都比较平均,主卧两面采光,综合来看是个很完整的传统三房户型。
开云府样板房实拍照片:
楼下就是地铁口:
楼盘的具体位置在赤湾总部大厦旁,临近赤湾地铁站,是蛇口线(2号线)和环中线(5号线)的换乘站。
开云府周边配套情况说明:
交通配套
无缝接驳地铁2/5号线“赤湾站”,地铁12号线环绕,连接兴海大道、南海大道、望海路、妈湾跨海通道等多条城市主干道,畅达前海、太子湾、海上世界、后海等核心区,高效通达全城;紧邻太子湾邮轮母港,速抵深圳宝安国际机场,链接世界精彩。
教育配套
周边南二外赤湾学校、市三十高中(规划中)等学府环伺,与赤湾国际化学校、太子湾学校、科爱赛学校、深美国际化学校等国际化学校为邻,南山集团幼儿园、蓓蕾幼儿园等在旁。集萃国内教育+国际视野的全龄优质学府资源,为未来先行一步。
医疗配套
南山蛇口人民医院、南山区妇幼保健院、南山区中医院
商业配套
私享大型集中式商业赤湾汇购物中心,更享太子湾K11 (在建中)、香港兰桂坊LKF、前海世茂中心、桂湾商业中心、前海印里、华润万象前海、前海卓悦INTOWN、壹方汇等高端商业,荟萃太子湾、海上世界、前海万象三大国际商圈。约百万方璀璨繁华,纳世界潮流为生活日常。
生态配套
背靠大南山,肩倚小南山、赤湾山,相望伶仃洋,山海日常推窗可得;毗邻深圳华英路樱花主题公园,领略治愈时光的城市符号;更享赤湾公园、大/小南山公园等多所公园环绕,悠享生态鲜氧生活。
文体配套
赤湾,以获评“广东十大海上丝绸之路文化地理坐标”为契机,打造赤湾文博圈,天后博物馆(赤湾天后宫)、赤湾烟墩、左炮台等高密度历史人文资源集群。
作为南山区十四五示范工程——深圳湾文化走廊的重要组成部分,进一步传承历史文脉,成就大湾区海洋文化展示地。
开云府项目优势:
【赤湾先发山海都会超体】
3.2平方公里赤湾先发·城市双地铁综合体,集高端住宅、购物中心、总部办公、五星级酒店等复合业态于一体,筑就赤湾地标,焕新山海生活。
高端住宅:约6万㎡【开云府】高端臻邸,“山-海-城”云尚生活范本
购物中心:约4.6万㎡大型集中式商业-赤湾汇购物中心,与地铁无缝连接
总部办公:约4万㎡、约200米摩天地标甲级写字楼,定鼎总部门面形象
五星级酒店:约3.15万㎡五星级酒店,引进凯悦酒店品牌运营,打造国际化商务交流场所
【甄稀山海天幕府邸】
匠筑建面约124-203㎡全生命周期天幕户型,360°采光通风,270°环景主卧,山海日常推窗可得。背山面海,藏风聚气,家宅福泽之地。
生态园林:以“空中连廊+屋顶花园”打造垂直化多元生态系统,让自然、空间回归生活
全龄场景:搭建观景/室外聚会/游乐/成人活动等场景化空间,演绎高端富氧休闲体验
美学立面:精铸“海浪”风尚立面,呈现微波般浮雕感,采用浅蓝灰中空LOW-E玻璃幕墙
高梯户比:近1:1高配级别梯户比,出入尽享便捷,生活愈加舒适
阳光车库:罕见地上全阳光车库,车位配比超1:1.1,归家尊享从容泊车
项目优点总结:
位置:太子湾与前海的聚合点;
进度:项目已经全部封顶,交房有保障;
交通:临近地铁2号线/5号线/12号线;
商业:楼下便是商业中心;
特价:价格确实够低。
看完以上关于深圳南山赤湾开云府二期楼盘相关的图文介绍,如果您对我们楼盘感兴趣的话,建议您可以联系我们开发商售楼处全国免费400热线电话:400-811-3080(已认证)在线进行免费咨询或对接楼盘现场销售人员(中介请勿扰),我们可以为您安排本楼盘现场销售一对一在线服务,比如说把楼盘的最新图文资料、样板房视频、通过手机的方式发给您看一看、您不需要立即过来楼盘现场就能够对我们楼盘熟悉个大概,还可以告诉您关于我们开云府楼盘对比周边楼盘的优点缺点、楼盘这几天最新的优惠政策、银行政策以及LPR利率、积分入学,等相关购房方面的问题都给你讲解的明明白白,让您买房不踩坑,毕竟买房是大事。找现场销售咨询并不需要额外花钱,反而更省钱,而且可以避免一些中介虚报价格浪费你宝贵的时间和精力,我们会把额外认购优惠、按时签约优惠、房贷优惠、一次性付款的优惠都告诉您,希望您能通过这个平台,全面了解我们的楼盘信息并顺利、开心的完成购房流程。
免责声明:以上展示的关于深圳南山开云府楼盘最新相关图文资料可能有部分来自于网络,一切信息以最终在在我们楼盘现场签署的购房合同为准,如图文内容可能无意中侵犯某方权益的话,请及时联系我们将配合处理。
声明:本文由入驻焦点开放平台的作者撰写,除焦点官方账号外,观点仅代表作者本人,不代表焦点立场。
