天安云谷天安 1 号全明通透户型,飘窗 + 阳台多重赠送,户户朝南,二胎三代同堂全周期改善优选
扫描到手机,新闻随时看
扫一扫,用手机看文章
更加方便分享给朋友
最新消息:
位于龙岗坂田的新楼盘——天安云谷三期(天安1号)加推13栋住宅新品,户户朝南•简装交付,下面是推出的户型和房价说明(仅供参考,看房预约还有额外折扣优惠):
约98㎡ 3房2卫高能户型,单价区间:4.97-5.18万/㎡
约119㎡ 4房2卫高能户型,单价区间:5-5.29万/㎡
如果您还想了解更多关于我们龙岗天安云谷/天安1号楼盘最新消息,欢迎来电咨询天安云谷开发商售楼处全国唯一400官方服务电话:400 880 7297(官方认证·非中介),因本项目营销中心这几天过来现场参观的客户实在太多了,采取预约制,暂不接受临时到访,为不耽误您的行程,过来楼盘营销中心之前请提前来电进行在线预约,感谢您对我们工作的理解与配合,恭候您大驾光临!
天安云谷(推广名:天安1号)实际上是总建面约400万㎡大城天安云谷的三期住宅产品。这座大城摒弃传统大城居住为主的形态,集产业、商业、居住和多维配套于一体的产城融合综合体在过去十多年的打造中逐渐呈现,一、二期已醇熟运营多年,也由此带动区域的活力。
作为坂田北最大体量旧改项目,天安云谷位于坂田街道冲之大道和坂李大道的交汇处,毗邻地铁22号线岗头北站(建设中)。项目占地面积约13.14万㎡,由8个地块组成,建面约128万㎡,集产业、办公、居住、商业等于一体。其中,三期是天安云谷首个包含住宅的项目,建成后将有21栋住宅+2栋酒店+2栋公寓办公,预计提供住宅5886套,保障房640套。

下面是2025年12月份天安云谷里推出的1栋两个单元的备案价格表:
效果图
天安云谷项目整体规划鸟瞰效果图:
项目基本信息
开发商:深圳天安云城投资发展有限公司
开发商电话:400 880 7297(官方电话)
占地面积:约10571.33㎡
建筑面积:约100572.70㎡
容积率:6.55
绿化率:40%
总层高:44层
车位比:1:1.44
产权年限:70年
交楼时间:2027年06月30日前
梯户比:3梯6户
交付标准:简装修(绿建)
物业管理费:6.98元/㎡
物业:深圳市天安云谷物业服务有限公司
天安云谷三期这个楼盘到底值不值得买?
15分钟多维精配生活圈:
⛪️4名校:广东实验学校、深圳外国语湾区学校、三期自带公立学校/国际学校;
3地铁口:10号线岗头站(已开通)、22号线岗头北站、27号线岗头西站;
3城际线+超级枢纽站:深广中轴城际(规划中,途经地铁27号线岗头西站);
3+2城际枢纽五和站:深大/深惠城际/深广中轴(在建)、地铁5/10号线;
3家公立医院:香港中文大学、深圳市人民医院坂田院区、龙岗第二中医院;
2个文体中心:龙岗国际艺术中心、坂田街道文体中心;
六大城市公园:岗头科技公园(秋叶湖)、雪竹径公园、甘坑特色公园;
【天安云谷·园游价值点】
首创产城标杆:龙岗坂田天安云谷是集团脱离传统产业链、首创“产城社区”核心理念的标杆之作,代表了集团在中国大陆产业地产开发的最新一代产品序列。
产城社区标杆:天安云谷总规划占地面积约76万㎡,总建筑面积约400万㎡,总投资300亿人民币,是国内首个以“云计算、大数据”理念规划的智慧园区,聚集了云计算、物联网、移动互联网等信息技术产业及智能设备,机器人等产业,是深圳现代产城融合的标杆之作;
➡深圳地理几何中芯 · 坂雪岗科技城核心
龙岗坂田,位踞深圳版图的物理中芯,依托多维路网可便捷通达福田、罗湖、南山等CBD中央商务区,稳健擎领着深圳的枢纽经济脉搏。天安云谷里·园游,立序于坂田北CBD中轴之上,坐享坂雪岗科技城的发展大势。,汇聚多元行业精英人群,执掌世界的雄心。
强劲经济引擎与广阔前景
龙岗经济的核心引擎:
根据龙岗政府在线的公开数据,2023年坂田的地区生产总值近2300亿元,占据了全区总量的46%。而到了2025年,龙岗区全区GDP首次突破6000亿元大关(达6095.92亿元),并连续第八年位居全国工业百强区榜首。
全国活力街道TOP5:
凭借着强劲的产业基础和持续攀升的综合竞争力,坂田在“中国活力街道全国500强”的评选中,从2024年的全国第八名,成功跃升至2025年的全国第五名。这种高效的产出与创富能力,业界常常拿它与南山区的粤海街道作对比参考,因此坂田也常被外界誉为“深圳第二街道”。
跨境电商集群:
坂田是龙岗区两个主要跨境电商集聚区之一,已形成了11个较大规模的电商企业集聚园区;培育了14家规模以上跨境电商企业;辖区星河World园区被授牌“国家电子商务示范基地”。龙岗区2022年全区跨境电商交易规模达到1700亿元,坂田几乎占了一半。据不完全统计,坂田街道的跨境电商企业有1万家左右;保守估计营收总额达千亿元以上。
引领前沿科创生态:
2025年坂田加速布局AI与鸿蒙生态,天安云谷(三期)脱颖而出,成为深圳首批“鸿蒙工地试点”项目,印证其科创引领地位。
千亿级科技产业 · 高端人才聚集地
汇聚核心资源的产城高地:全球第三大万亿级电子信息产业集群承载区
三大科创板块交汇:在这片约28.51平方公里的土地上,汇聚了广深港创新走廊、梅观创新产业走廊以及坂雪岗科技城三大科创高地。
高精尖圈层聚落:毗邻华为总部基地,周边吸引了康冠、神舟等众多知名企业,培育了逾600家高新技术企业。作为全球第三大万亿级电子信息产业集群承载区,这里汇聚了庞大的高素质精英人群,区域发展前景较为广阔。
千亿智造生态:目前已初步形成颇具规模的千亿级智造产业生态,其创新与孵化能力在全国同类科创区中名列前茅,为片区提供了源源不断的人才与活力。
➡130万方大城配套,下楼即享繁华
多元无界社区:项目自带约1.71万㎡商业,自带幸福力中心约3万㎡的综合配套空间、自运营约20万㎡商业:天安云谷星耀,各类社区内容商店及帆书樊登书店+HIGH5超级社群生活基地+超级星期6社群文化IP+天安全球资源,为业主提供丰富的志趣社交场景。
立体商业动线:项目将社会公共交通系统、城市道路系统与社区道路系统相联街,结合自然生态河道、公建、商业,规划合理的人流动线布局,使得整个居住区与城市网连成一个整体,实现社区与城市的联系与互动。通过社区内地上和双层地下的三层立体商业设计,将地下部分做到了与地铁站贯通。为年轻人提供了下班出站即可用餐、购物、归家的一体化便捷生活。
(本项目沿街商业人视图)
天安云谷星耀
建面约10万㎡生态体验社交中心商业商业,坐拥200+品牌美食,打造24Hour户外+购物中心消费圈商业;1-5栋商业入驻率约95%,以餐饮业态与生活休闲业态为主,天玺海鲜酒家、79号渔船、海底捞、奈雪、大疆创新、联通、平安银行等入驻。
➡多元之城·全优社区
多元之城:打破传统居住习惯,将居住空间、自然空间、商业空间及休闲、社交空间进行叠加,7座主题公园、5大全龄配套、1条三重立体特色商街,以开放式胸怀融入与引领城市空间,实现城市、自然、社区、人与人的360无界生活体验,打开超越时代的城市人居想像。
其中体育中心了配置无边泳池,室内篮球馆、屋顶足球场等体育设施。
2所社康服务中心+1所长者服务中心+1所健康食堂+1批养老公寓+1间中医理疗中心+十余所康养文娱健康场所。
➡丰富教育资源汇聚,名校资源优配
4所幼儿园:天安芬芳比诺中英文幼儿园、领德双语幼儿学院、项目自带2所幼儿园,规划在建有1所90班的国际化学校(九年制公办),分54班公立班和36班国际班组成;
3所名校学区:广东实验中学深圳学校、深圳外国语学校、三期自带公立学校/国际学校;
3所图书馆:科技艺术图书馆、少儿图书馆、三期屋顶图书馆;
6大中心+2大领队:桃李未来/国际级少年科创/兴趣发展/体能/游乐中心及父母工作坊+学习/游玩领队。
周边重点学校简介:
广东实验中学深圳学校、深圳外国语学校、三期自带公立学校/国际学校。
根据2023年龙岗教育局学区划分,中小学学区划分在广东实验中学深圳学校,直线约800米,该校是由深圳市教育局与广东实验中学在深圳经济特区建立40周年之际合作创办的十二年一贯制学校,是直属于深圳市教育局的公办学校。采用"格新课程"体系(知新、求新、创新三级贯通),高中部设人工智能科技课程及"双导师制",小学初中阶段有院士大讲堂、航天专家讲座等特色活动。国际班与清华附中国际学校合作,提供美式K-12课程,外教占比高,注重跨文化教学。广东实验学校2025年中考最高分与深圳市状元仅差3分,2024年首届高考本科率高达98%,实力超群。
项目周边3公里内有56所幼儿园、6所小学、11所中学,包括广东省实验小学(距项目350米)、深圳外国语学校(集团)湾区学校等。
➡多维立体路网,高效通勤大湾区
已开通:地铁10号线岗头站C1约800米,4站到五和站,8站直达福田;
规划中:22号地铁线“岗头北站”(预计2028年年底开通),距离约600米,目前正在建设中,预计2028年建成,该线路起于福保南站,止于黎光站,其中一期工程止于福田上沙站,全线长34.2公里,共设21座。
27号线岗头西站(预计2028年年底开通)全线线路途经南山、龙华、龙岗三区,串联起前海、南山科技园、西丽高铁新城、龙华中心、坂雪岗科技城等重要片区。项目建成后将实现前海、南山中心与龙华中心45分钟快速通达;
3城际线+超级枢纽站:深广中轴城际规划中,连接深圳、东莞、广州,预计在地铁27号线岗头站设站点;
3+2城际枢纽站五和站:3城际:深大城际(在建)、深惠城际(在建)、深广中轴城际2地铁超级枢纽站:深圳地铁5、10号线
主干道:坂李大道、五和大道、坂雪岗大道
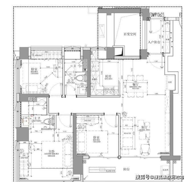
【天安云谷三期户型图赏析】
建面约98-255㎡精制3-4房,考究空间布局,产品朝向整体以南为主,户户方正实用。
看完以上内容介绍,如果您还有任何不明白的地方,我们深圳龙岗坂田天安云谷3期(天安1号)楼盘官方全国唯一直连热线电话通道已开启,坚决拒绝中介层层加价、虚假宣传,欢迎拨打天安云谷楼盘开发商售楼处免费咨询/预约热线电话:400 880 7297(官方认证·可查可验,中介或自媒体请勿扰)即可免费在线咨询。避免市场上一些中介虚报价格,耽误您的时间和精力,中介所给的优惠我们全都可以给,我们会给你精心安排楼盘现场金牌销售一对一在线服务,精准发送本楼盘全套图文资料、样板间细节,帮你精准测算购房成本、解读银行最新按揭政策及首付比例,专属权益(额外认购优惠、按时签约折扣、一次性付款补贴)仅直连用户可享,中介绝不会知道!【天安云谷开发商直连·无中介环节】现在立即拨打,帮你省钱、避坑,高效锁定心仪房源,每日前10名咨询,免费领取购房成本测算表!
声明:本文由入驻焦点开放平台的作者撰写,除焦点官方账号外,观点仅代表作者本人,不代表焦点立场。
