鸿荣源珈誉玖玺,收官加推,宝安沙井建面约105-137㎡改善户型,楼间距宽视野无遮挡
扫描到手机,新闻随时看
扫一扫,用手机看文章
更加方便分享给朋友
深圳宝安沙井【珈誉玖玺 】经典之上,超越经典!11栋王牌开年重磅献映!·今年买今年住,超配兑现,全景开放,品质眼见为实!·重新发明生活的时代好房,同等面积更大空间!2026年3月14日开盘选房!
最新消息:深圳宝安沙井【鸿荣源·珈誉玖玺】2026年3月7日正式加推11栋!
新加推11栋折后价(仅供参考)
01户型,总价420-438万,单价4.45-4.64万
02户型,总价363-379万,单价4.33-4.52万
03户型,总价403-420万,单价4.47-4.66万
05户型,总价367-383万,单价4.37-4.56万
06户型,总价365-381万,单价4.35-4.54万
07户型,总价361-376万,单价4.29-4.48万
08户型,总价359-379万,单价4.27-4.46万
如需了解本楼盘更多详情,欢迎来电咨询深圳宝安鸿荣源珈誉玖玺开发商售楼处免费400咨询/预约电话:400-880-7297(官方发布)中介请勿扰,因近期参观的人员太多,本项目营销中心暂不接受临时到访,为不耽误您的行程,过来楼盘现场参观样板房请务必记得提前来电预约,预约看房的话最终房价还能更加优惠,最终价格包您满意!
下面是我们楼盘营销中心实拍照片:
在售7栋超高性比价!看山/湖/海/商业/园林
约109㎡双龙抱珠四房,折后单价约5.1-5.28万/㎡,折后总价约557-576万
约98㎡南北通大横厅三房,折后单价约4.56-4.86万/㎡,折后总价约448-477万
约94㎡南向性价三房,折后单价约4.52-4.79万/㎡,折后总价约427-452万
【其余楼栋库存在售推荐户型】
77㎡3房1卫 实价346-370万
84㎡3房2卫 实价389-413万
90㎡3房2卫 实价411-435万
93㎡3房2卫 实价457-482万
137㎡4+1房2卫,实价711-750万
【11栋封藏户型鉴赏】
约84㎡三房两卫 | 全能户型标杆
【折后单价约4.27-4.56万,折后总价约359-383万】(仅限开盘当天)
• 大城绝版东南向双面看园林,看凤凰山、立新湖,仅此2条腿;
• 西南向看海,珈誉大城3房2卫中最低上车门槛,性价比之王!
样板房飘窗打了,不给拍视频,可参考文章最后也有84户型视频
约90㎡ 三房两卫 | 明星畅销藏品
【折后单价约4.47-4.66万,折后总价约403-420万】(仅限开盘当天)
• 花园里的房子,看园林全景,对望泳池,遇水则发;
• 90㎡能做到超百平米的空间享受,舒适度与性价比同享。
约94㎡三房两卫 | 奢阔横厅范本
【折后单价约4.45-4.64万,折后总价约420-438万】(仅限开盘当天)
• 独门独户,方正横厅,南北通透,对望泳池;
• 空间感远超新规,曾经开盘即售罄,珈誉大城最后43套,绝版!
基本信息:
【占地面积】:约4.8万㎡
【园林面积】:约2.9万㎡
【户型产品】:约75-98㎡三房;109-199㎡四房
【装修情况】:带装修交付
【开发商电话】400 880 7297
【产权年限】:70年(2022.5-2092.5)
【项目地址】:深圳·宝安大道和凤塘大道交汇(11号线塘尾站)
【超配生活兑现 | 今年买今年住】
2026年全景绽放,所见即所得,眼见为实——
自带约50万㎡湾区壹方商业,8000㎡亚洲级巨幕穹顶,全球最高45米室内鎏金飞瀑,全面兑现中!
门口11号线塘尾站,地铁C口连廊已开通,拉进生活距离,通达湾区!
家楼下深圳外国语宝安学校(集团)南校区,教学楼主体封顶在即,名校为邻,高地起步!
【约2.9万㎡艺术私家园林| 实景兑现】
打造三重归家礼序、五大泛会所和六大园林空间:
包含健身房、长者空间、瑜伽室、咖啡阅读吧、室内外联动儿童游乐场、全龄双泳池、花园会客厅、全龄体能中心、户外邻里剧场等,适配全年龄段的高端全能泛会所。
【誉满世界湾 | 巅峰销冠 · 唯此珈誉】
2023-2025年深圳楼市三冠王,2026年1-2月销售冠军,持续领跑!
近万户业主的共识之选,央视认证的置业风向标!
【鸿荣源 |城市地标缔造者,与城市共荣】
汇集鸿荣源35年匠心精铸,传承“玖”系精工品质,携超能标杆钜作,献礼湾区;
2015年至今,地产开发销售额累计逾1000亿,累计服务客户逾4万户 ;
打造了前海鸿荣源中心、壹方玖誉、壹成中心、香蜜湖熙园等标杆项目。
7栋青龙正位,3梯5户,户户绝美观景
南向内看花园全景、远眺湾区海景
南向外看凤凰山景、立新湖景
北向外看"湾区壹方"商业地标
【新品户型鉴赏】
约109㎡4房,绝版双龙抱珠
折后单价约5.1-5.28万/㎡,折后总价约557-576万,价格仅限加推当天
整个珈誉大城约8000套房中唯一的44套,首发即绝版,双龙抱珠,端头位独门独户,享玖玺最长景观视距。
360°全明采光,入户长飘窗,客厅及全部卧室均南向看园林,双主卧L型飘窗,全明采光+全览景观,风水上位,玖系王牌户型。
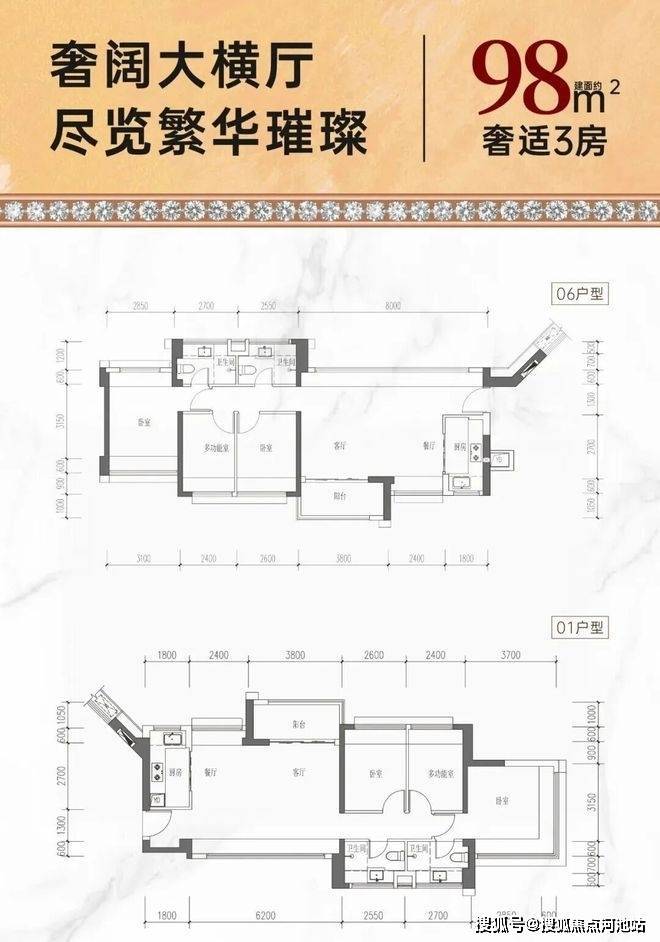
【新品户型鉴赏】
约98㎡3房,南北通大横厅 约93%实用率
折后单价约4.56-4.86万/㎡,折后总价约448-477万,价格仅限加推当天
06户型是整个珈誉大城约8000套房中唯一的44套,首发即绝版,超强双面采光,客餐厅约8米超长飘窗,6开间全朝南看园林全景,高区可看湾区海景、凤凰山景、立新湖景。
‼01户型是珈誉大城稀缺明星户型,全屋三朝向全明采光,完美动静分区,爆款户型应市限量补货。
【新品户型鉴赏】
约94㎡经典3房,南向高性价
折后单价约4.52-4.79万/㎡,折后总价约427-452万,价格仅限加推当天
经典3房2卫,东南朝向,户型实用,空间阔绰,超高性价比!主卧270°采光,西南向可看园林全景、湾区海景,东南向可看凤凰山景、立新湖景。
【热销户型鉴赏】建面约75㎡-199㎡全能3-4房
项目基本信息:
【占地面积】:约4.8万㎡
【园林面积】:约2.9万㎡
【户型产品】:约75-199㎡3-4房全面户型
【开发商电话】400 880 7297
【本次新品】:约109㎡双龙抱珠奢阔4房/
约98㎡南北通大横厅3房/约94㎡南向性价3房
【装修情况】:带装修交付
【产权年限】:70年(2022.5-2092.5)
【项目地址】:深圳·宝安大道和凤塘大道交汇(11号线塘尾站)
【玖畅·地铁直连 通达全城】
下楼即达地铁口:门口连廊直连地铁11号线(主体已建成),距离地铁口更近,畅享都市便捷生活 ;
家门口即11号线塘尾站:6站宝中、7站前海、9站后海、11站车公庙,便捷通达南山、福田核心片区。
【玖繁·百亿商业 咫尺繁华 】
下楼即享商业:百亿超级商圈,定鼎西部新中心 ,湾区最大穹顶“凤冠天幕”结构已完成,外立面已显现。
鸿荣源打造又一【湾区城市级购物中心】
约50万㎡“湾区壹方”商业,沿用壹方商业大师级运营团队自持运营!
城市超级奥莱定位,对标国际知名奥莱Mills,定义湾区城市级商业新模式!
【玖文·翰墨书香伴成长】
项目一路之隔深圳外国语宝安学校(集团)南校区(加速建设中);
项目周边还有深圳市宝安区桥头学校、塘尾万里小学、立新湖学校等名校环伺。
(*最终的学区划分、入学条件、招生计划等均以教育主管部门颁布的政策和学校的通知为准)
【玖汇·全维配套集萃】
周边环绕万丰湖湿地公园、立新湖公园、凤凰山森林公园等,悠然享受城市森意;
近新桥文体中心、沙井文体中心(建设中),高标人文配置,悦享品质生活。
【玖遇·围合式艺术大园林】
约2.9万㎡舒居艺术大园林,围合式布局,最大楼间距约161米;
以西班牙著名画家《记忆的永恒》为灵感,打造超现实主义花园,多重梦境空间。
【玖享·全龄双泳池 礼遇归家礼仪轴线】
配备全龄子母双泳池、亲子乐园、交流花园,构建全龄活动功能配套,主出入口列阵式礼仪轴线,体现归家仪式感,品质尊崇感。
【玖铸·实力房企 品牌保障】
鸿荣源,城市地标缔造者,与城市共荣;
汇集鸿荣源34年匠心精铸,传承“玖”系精工品质,携超能标杆钜作,献礼湾区;
2015年至今,地产开发销售额累计逾1000亿,累计服务客户逾4万户 ;
打造了前海鸿荣源中心、壹方玖誉、壹成中心、香蜜湖熙园等标杆项目。
【玖品·高端物业 共筑美好生活】
鸿荣源物业,国家物业管理一级资质企业,致力于做中国高端物业专属服务的先行者,实现客户对美好生活的向往,中国物业服务品牌100强,粤港澳大湾区物业服务综合实力50强。
结尾:以上就是关于深圳宝安沙井鸿荣源·珈誉玖玺楼盘最新图文详细介绍和说明,在此感谢您的认真阅读,希望为您的购房置业选择上提供帮助。如果您还想咨询了解鸿荣源·珈誉玖玺认购优惠、按时签约优惠、贷款优惠、一次性优惠、团购折扣等信息,欢迎联系深圳鸿荣源·珈誉玖玺楼盘开发商售楼处全国400免费服务热线电话Tel:400-880-7297(中介或自媒体请勿扰),另外温馨提醒一下,因近期营销中心看房人数较多,参观样板间采取预约制,为了不影响您的行程,过来楼盘实地看房之前请记得拨打开发商400热线进行预约,预约看房的话还可以尊享楼盘内部额外优惠,最终价格包您满意!
声明:本文由入驻焦点开放平台的作者撰写,除焦点官方账号外,观点仅代表作者本人,不代表焦点立场。
