单价12.7万/㎡起「后海招商玺」推出面积197-235㎡,首批推出40套!
扫描到手机,新闻随时看
扫一扫,用手机看文章
更加方便分享给朋友
深圳南山蛇口,后海招商玺将在2025年12月份取证入市,本次首推1栋1单元,仅42套房源,面积有197-237㎡的4房2厅3卫户型各21套,板楼一梯一户,专梯入户设计,层高3.3米,价格方面可以参考深圳湾雲玺,现在已经有吹风价爆出,209平户型总价3000-3400万/套,269平户型总价4100-4600万/套,总体单价在14.35-17.1万/平,这次后海玺花园也是带精装交付,预计实际开盘起步门槛不会低于2500万/套。
下面是我们楼盘营销中心实拍:
温馨提示:因近期参观的购房者较多,所以本楼盘采取预约制,过来营销中心现场参观样板间请记得提前拨打开发商售楼处400热线电话在线预约,预约看房价格更优惠,感谢您的配合!
深圳南山区豪宅压抑了太久,这次难得集中供应,可谓百花争艳,4大豪宅楼盘同期入市,分别是深圳湾的中信元湾府、蛇口的后海招商玺家园、后海的深圳湾雲玺、以及前海的深铁前海时代3期59栋大户型,这4个盘加起来入市总量有1355套。
尤其是在这几年很多同行“花式划水”的交标衬托下,招商玺的交标更显得诚意十足、难能可贵了,有不止一家媒体直呼招商玺是“深圳楼盘交付的天花板”。
近期招商蛇口在南山后海又一顶豪新盘,同样是“玺”系列产品,名为后海玺家园,未来也将是一高品质产品。
「后海招商玺」车行大门做了殿堂级落客区,设有天幕和水景,非常具备归家仪式感。
每栋设有独立入户大堂,风格与大门相呼应。
小区同样是新晋豪宅的配方,通过抬高与城市界面做了区隔,整体豪宅的这种私密性就出来了。花园采用立体园林设计,利用架空层打造会所功能空间,这里不是简单的空间叠加,而是一场关于“如何生活”的持续迭代。
△招商后海玺家园初步效果图
最新消息,后海招商玺已在深圳湾一号莱佛士酒店开放城市展厅,预计2025年底入市,首批将推售1栋建面约197-235㎡的大平层产品,仅42套。
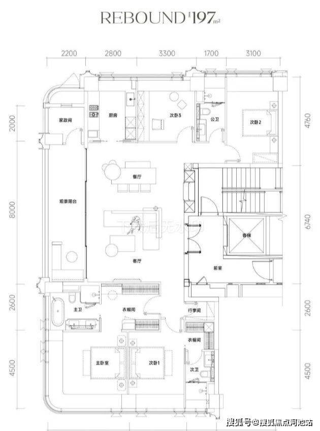
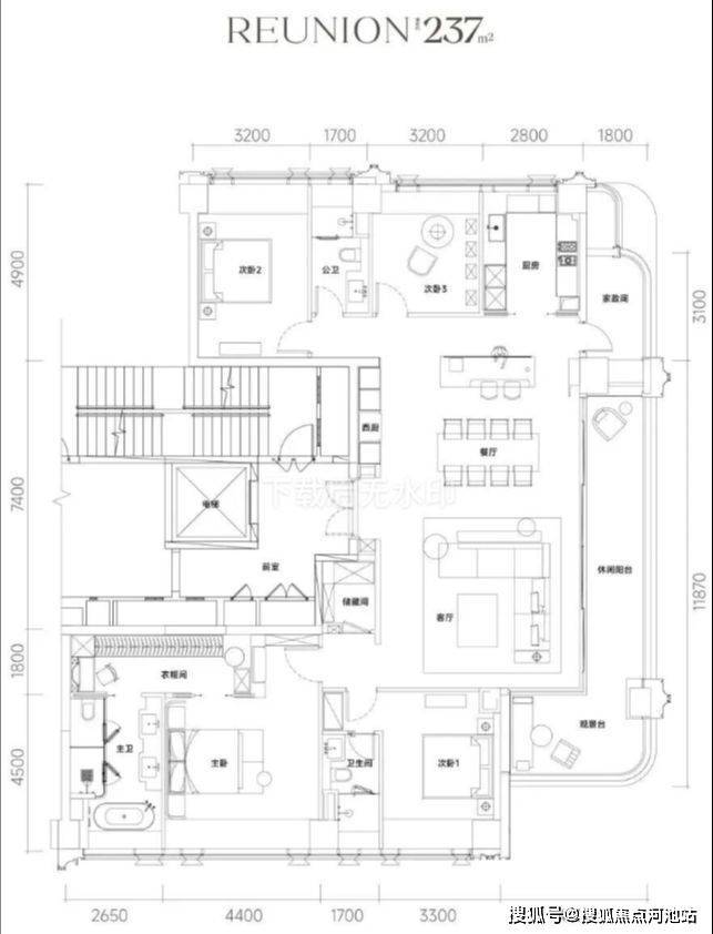
后海招商玺户型图分析:
197㎡的4房2厅3卫,设计的是竖厅双龙抱珠格局,一梯一户,专梯入户设计,赠送私用电梯厅,客餐厅7.95米开间,LDKB一体化设计,四开间朝南,分别做到了主卧28.2㎡/次卧套间18.3㎡/次卧14.87㎡/次卧11.71㎡(包含墙体飘窗),客厅连接餐厅出10米长的超大观景阳台约22平,U型厨房,卫生间干湿分离,得房率约100%(包含赠送),西南朝向。
237㎡的4房2厅3卫,设计的是竖厅双龙抱珠格局,一梯一户,专梯入户设计,赠送私用电梯厅,客餐厅8.7米开间,LDKB一体化设计,分别做到了主卧35.3㎡/次卧套间15.93㎡/次卧16.51㎡/次卧12.34㎡(包含墙体飘窗),客厅连接餐厅出8.7米长的超大观景阳台约15.66平,另外东南向还有个观景阳台约10.08平,西厨位置有6.66平生活阳台,U型厨房另设西厨岛台,卫生间干湿分离,得房率约100%(包含赠送),东北朝向。
去年12月28日上午,位于深圳招商街道的原联合饼干厂地块迎来其发展历程中的重要时刻,招商蛇口在此隆重举行了招商街道原联合饼干厂城市更新单元美好焕新启动仪式。
这一仪式的顺利举行,标志着原联合饼干厂这一承载着深圳这座城市集体记忆的老旧厂区即将迎来华丽转身,焕发全新的生机与活力。
原联合饼干厂位于南山区招商街道,紧邻后海大道,项目距离轨道2号线海月站和湾厦站分别约为600m。
占据后海-蛇口双心区位,既可享受深圳湾的配套,又能体验蛇口的精致慢生活。
项目最大亮点是毗邻育才二小二中(南山一梯队学区),同时以“浮岛甲板”设计理念打造新一代隐奢豪宅。
温馨提醒:我们楼盘开发商售楼处400电话没有设置任何所谓的“分机号”,拨打前请仔细甄别,注意保护个人隐私!谨防上当!
免责声明:
以上所发布的关于深圳后海招商玺楼盘相关介绍详情仅供您购房前参考,以上所有关于本楼盘的图文资料及说明请以最终项目批文及双方在楼盘营销中心现场签署的买卖最终合同为准;本图文内容如无意中侵犯到某方权益,请联系我们将会及时处理。
声明:本文由入驻焦点开放平台的作者撰写,除焦点官方账号外,观点仅代表作者本人,不代表焦点立场。
