翰熙典居(翰熙典居)官方网站丨翰熙典居楼盘详情_房价_户型_详情
扫描到手机,新闻随时看
扫一扫,用手机看文章
更加方便分享给朋友
粤海街道新盘【翰熙典居】共计销售238套,总推售334套,去化率71%,这个数据如果全面属实的话,成绩可以说非常优秀!
如需了解更多详情,欢迎咨询翰熙典居售楼处电话400 880 7297,过来我们营销中心看房提前来电预约价格还能更优惠。
【翰熙典居开发商售楼处400免费咨询/预约电话:400-880-7297,官方热线】
温馨提示:过来营销中心参观样板间请记得提前拨打售楼处400热线预约,感谢您的配合!
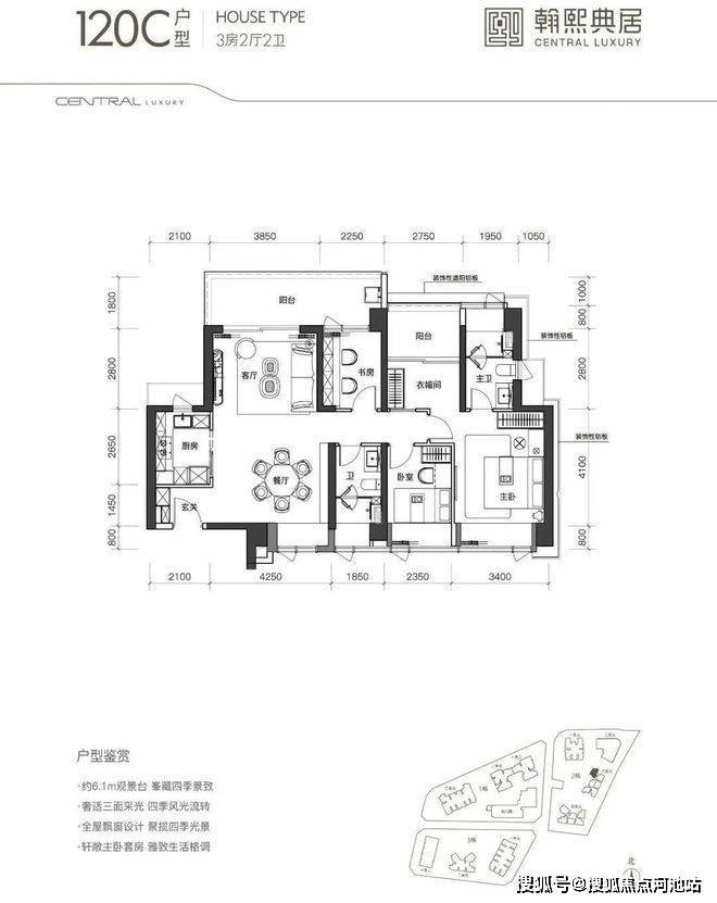
翰熙典居是南山粤海板块唯一在售的新盘,原是桂庙新村城市更新单元,9/15号地铁线“深大南站”就在家楼下,有学府一小+学府中学加持,步行800多米到海岸城高端商业区,关注此盘的买家较多。
项目区位
「翰熙典居」原为桂庙新村城市更新单元项目,位于南山区粤海街道白石路与学府路交叉口西北侧,东临白石路,西近南海大道,南临学府路,北面与深圳大学毗邻。周边集聚了腾讯滨海大厦、软件产业基地等写字楼,地理位置优越。
交通配套
距离9号线深大站不到500米,未来周边还有15号线(在建中)经过,且靠近南海大道、滨海大道,不管是地铁或是驾车出行都十分方便。
温馨提示:感兴趣的朋友欢迎来电预约前往参观,享受一对一专属VIP看房服务,一定比中介和自媒体更便宜享受开发商内部额外最低优惠折扣和大额现金购房补贴。
本项目推广名为“翰熙典居",官方电话:400 880 7297 本资料为要约邀请,不作为要约或承诺。以上所发布的关于楼盘相关图文信息仅供您买房前参考,以上所有关于本楼盘的图文资料及说明请以最终以项目批文及双方在楼盘营销中心现场签署的买卖最终合同为准;
声明:本文由入驻焦点开放平台的作者撰写,除焦点官方账号外,观点仅代表作者本人,不代表焦点立场。
