金光华龙岸君粼(金光华龙岸君粼)官方网站丨金光华龙岸君粼楼盘详情_房价_户型_详情
扫描到手机,新闻随时看
扫一扫,用手机看文章
更加方便分享给朋友
复式叠墅总价约14**-2000万
(毛坯现楼)折后价格区间:(底叠1/2:18**-2000万)
❗最后一套❗(中叠3/4:14**-1650万)
❗最后三套❗(上叠5/6:15**-1602万)
❗最后两套❗(顶叠7/8:售罄❗)
三期高层住宅总价区间
(含8000/m²国际一线豪装)
⭐86平折后:5**-650万
⭐112平折后:7**-850万
⭐137平折后:9**-1080万
二期高层住宅(大六房)
建面约164平折后:1**9-1210万
看完以上介绍,如需了解更多关于我们深圳金光华·龙岸君粼楼盘最新消息、剩余房源以及楼层、这几天房价优惠活动、在卖的户型、限购政策、房贷相关问题等情况,欢迎来电咨询深圳龙岸君粼开发商售楼处全国免费400咨询/预约电话:400 880 7297(官方认证)中介请勿扰。
下面是我们楼盘营销中心实拍照片:
金光华圳央墅区项目介绍
【项目指标】
【开发商】:深圳市金光华地产开发有限公司
【用地面积】:99046.5㎡
【开发商电话】400 880 7297
【容积率】:约1.99
【绿化率】:60%
【层数】:高层住宅:32层 / 叠墅:8层
【梯户比】:高层住宅:2梯3户/2梯4户
叠墅:专梯入户
【别墅产品】:约206-258㎡(售罄❗)
【叠墅产品】:约178㎡(毛坯现楼)
【高层产品】:三期约86-137㎡(精装现楼)
二期约165㎡(精装现楼)
【项目地址】:龙华区雅园路与华南路交汇处
【品牌观·宽厚】27载金光华·实力有信心·置业无忧
金光华集团——与城市共生长,所筑皆封面
立足于深圳,27载韶光,致力于成为粤港澳大湾区高品质城市综合运营商。十余年稳健发展,集团土地储备建面超1000万㎡,布局4大核心区域多颗希望种子。
10年缓酿墅区
超150万㎡人居版图,深圳中轴天然湖山+多个低密豪宅规划, 金光华领衔大区域开发,觉醒平方公里级城市理想,各大产业总部齐聚。
【城市观·通达】国际匠师之作·规划更用心·美好渐呈
•鼎立湾区核心 ,深圳主城烫金之作
福田中心、深圳北站商务中心双CBD 1+1>2,占城市黄金地脉;势起大区域开发,鼎立深圳主城板块,成就大城都会封面生活。
•赋能版块进阶,扛鼎区域价值升级
① 占地60万㎡,总建面不低于250万㎡的深国际·华南数字谷,与香蜜湖新金融中心规划同等城市站位,赋予片区巨大价值。
② 约37万㎡民悦公园(规划中),总投资约1.5亿元,成就城市生态人居高地。
③ 约160万㎡星河WORLD,约2800万㎡华为总部基地带动区域创新,板块含金量飙升。
•双枢纽+五轨道交通,城央一脉通达
①双枢纽(深圳北站+五和站),1小时无缝对接大湾区;五和站城际枢纽,5/10号线及规划中的深大、深惠、深广中轴城际。
②双地铁口(光雅园站+南坑站),五轨道(22号线在建中),5号线3站南山、10号线2站福田,约15mins高效通达深圳各区,城市脉搏咫尺把握。
③民乐路2024年即将全面通车完成验收,开通后将大大缩短至梅观高速车程,畅达福田。
•内外双循环配套,聚合多维资源
①产业配套:梅林-彩田新一代信息科技总部基地 | 深国际华南物流园 | 星河WORLD | 坂雪岗科技城-华为总部基地
②旗舰商业:COCO Park,8号仓 | 高配山姆会员店、costco | 红山/福田双CBD商圈
③TOP文教:潜龙学校附属龙岸幼儿园 | 万科双语学校(私立) | 华南实验学校(小、初中部) | 72班九年一贯制学校(在建中),24班小学,18班小学( 规划中)
④优质医疗:市第二人民医院 | 新华医院 | 深圳第二儿童医院
⑤双CBD人文:红山展览馆、演艺馆、图书馆、美术馆 | 福田深圳音乐厅、图书馆、市少年宫、博物馆等
【资源观·从容】外拥四湖一山·内享龙栖湖·低密墅区
•天赋湖山大境,约6万㎡湖畔园林美学
君粼近享银湖山、塘朗山两大山脉,揽民治、民乐、雅宝、南坑四大湖泊;
内揽约5300㎡龙栖湖、约6万㎡园林景观,内外围合,开启城市美学生活。
•台地园林:复式叠墅享相对独立的组团花园,3800m²欧式风格台地园林
台地园林错落有致,打造首层私属定制的花园式入户、四大主题性共享庭院、格调精致的植物搭配,每栋首层拥有独立入户路径,花园层层叠进,建筑高低错落有致,推窗即见景也保障居住私密性与舒适性。
•奢想墅院:实景现楼,双层专属一户,高赠送,超低梯户比
叠墅采用新古典立面风格,上下两层叠拼为一户,一户独占两层,上下皆有度。一栋仅4户,专属舒适。层高3.3米,1梯2户超低梯户比,首层赠送入户花园,顶层赠送实用阁楼,多阳台、多露台,超高使用率,独立专属电梯厅入户,玄关带阳台,于此拥有从墅院生活到独揽天地的完满体验。
金光华·龙岸君粼86-258平胜过新规湖景小洋房!2026团购特价房火热报名中↓另有别墅清盘特惠价
•约2.0低密舒居,“林、风、山、云”四大主题园林
高达60%绿化率,最大约350m阔绰楼间距,目光所至珍藏隽秀波澜;三期园林“静、悠、轻、想”的匠心,规划独立私属归家景观带,步履间享格调流淌。
宽阔的不仅是约2.0超低容积率,更是步步皆植被,生态进家园的约60%绿化率。

以时代之匠心,致敬世界湾区之辉煌
①接驳连廊设计,连通不同楼栋,关怀业主日常出行,悉心照拂归家脚步。
②归家+休闲双动线,入户双重尊贵归家之道,规划阳光景观车库,诠释高门礼序。
③全龄交互乐享空间,打造主题全龄泛会所,专配生日轰趴馆、贵宾宴会厅。
•名家执笔雕琢,擘画高端人居品质
室内设计由全球酒店室内设计排行第一的CCD执笔打造;社区园林经由山水比德景观设计机构再执笔规划与升级。
【著作观·考究】精工匠造好房·精妆更放心·奢适品质
精工筑家,豪宅级空间规划,关怀凝练细节;台地园景,“歌剧院式”规划布局,循地势南北高,中间低,形成自然起伏呈“聚气藏风”之势,推窗即见景也保障居住私密性与舒适性。
①高阔奢享:建面约86-176㎡墅境宽宅,改善型大四房,全南向户型天然舒适;两梯三户低梯户比,多阳台露台设计,悦享阔绰居住空间;方正户型结构搭载更多半开放设计,高阔空间实用率与灵活性大幅提升。
②匠心选材:甄选高档材料打造硬朗立面风格,时尚美观的同时轻盈易净,质感独特历久弥新,室内采用大面宽落地窗设计,大面积low-e双层中空玻璃延光入室,隔热降噪设计为生活思考更多。
③三期奢配生活:甄选全球Top级品牌甄装,德系精工、Miele精品系再展生活质感,墅境美学标准叠加国际空间标准,点睛都心风尚人居。
【圈层观·远见】高阶身份象征·社交更优雅·眼界共鸣
圈层进阶,读懂圈层人物的向往。纵观全球,环湖法则随经典不断流传,渐成高净值人居圭臬。君粼深谙自然的美好无价,悉心于墅境之上、旖旎湖畔再著雅奢宽宅,重筑跨越时光的经典品味,为深圳艺术湖居生活再呈佳作。
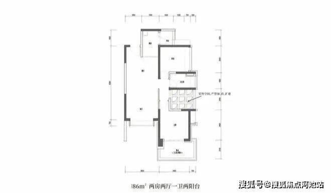
【三期平层户型图】
【二期平层户型图】
【二期叠墅户型图】
看完以上关于深圳龙华龙岸君粼楼盘相关的图文介绍,如果您对我们楼盘感兴趣的话,建议您可以联系我们开发商售楼处全国免费400热线电话:400-880-7297(官方发布)在线进行免费咨询或对接楼盘现场销售人员(中介请勿扰),我们可以为您安排本楼盘现场销售一对一在线服务,比如说把楼盘的最新图文资料、样板房视频、通过手机的方式发给您看一看、您不需要立即过来楼盘现场就能够对我们楼盘熟悉个大概,还可以告诉您关于我们龙岸君粼楼盘对比周边楼盘的优点缺点、楼盘这几天最新的优惠政策、银行政策以及LPR利率、积分入学,等相关购房方面的问题都给你讲解的明明白白,让您买房不踩坑,毕竟买房是大事。找现场销售咨询并不需要额外花钱,反而更省钱,而且可以避免一些中介虚报价格浪费你宝贵的时间和精力,我们会把额外认购优惠、按时签约优惠、房贷优惠、一次性付款的优惠都告诉您,希望您能通过这个平台,全面了解我们的楼盘信息并顺利、开心的完成购房流程。
免责声明:以上展示的关于深圳龙华龙岸君粼楼盘最新相关图文资料可能有部分来自于网络,一切信息以最终在在我们楼盘现场签署的购房合同为准,如图文内容可能无意中侵犯某方权益的话,请及时联系我们将配合处理。
声明:本文由入驻焦点开放平台的作者撰写,除焦点官方账号外,观点仅代表作者本人,不代表焦点立场。
