【卓能雅苑】低密小高层现房!总价430万起,建面约102-131平3-5房
扫描到手机,新闻随时看
扫一扫,用手机看文章
更加方便分享给朋友
卓能雅苑,项目位于深圳龙华区,2023年5月底推出最后一波现房,已经全部交楼,共316套住宅产品,面积段约102-106-109-112-130㎡;预计价格区间5.5-6万,过来现场看房提前预约价格会更优惠,更多最新详情欢迎咨询卓能雅苑开发商售楼处电话:400 811 3080,中介勿扰。
本项目原名卓能OPUS,2015年首期产品拿证正式入市,首期住宅售价4.5万/平,主推77-130平户型,并于2017年售罄,正式交楼入伙。


到了2019年年初,卓能OPUS更名卓能雅苑,开售二期现楼,售价5.5万/平,并且部分房源是已经出租状态,直到2020年7 月,售楼处关闭到现在又要重新开放,
项目基础信息:

【项目位置】龙华布龙路与油松路交界处(西北角)
【开发商】雄伟房地产开发(深圳)有限公司
【占地面积】51323.79㎡
【建筑面积】119831.78㎡
【产品信息】102-131m² 3~5房
【交付时间】已现房
【产权年限】70年
【园林面积】2.2万㎡(其中泳池1300㎡)
【开发商电话】4000 811 3080
【户型使用率】83%
【总户数】1085
【待售房源】316
【总车位】1054
【梯户比】1~6栋两梯四户、7栋两梯三户
【物业费】3.5 元/平方米/月
【容积率】2.3
【绿化率】44%
楼栋分布图如下:
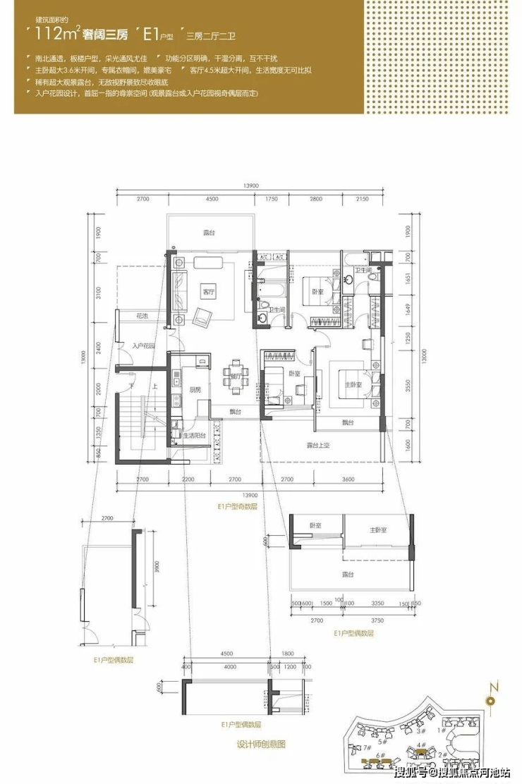
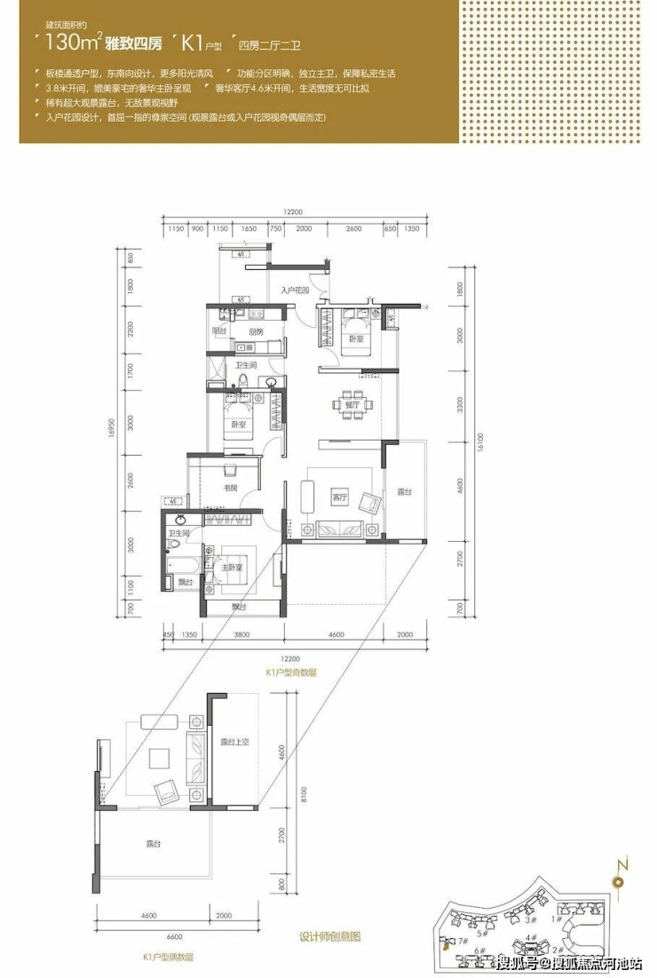
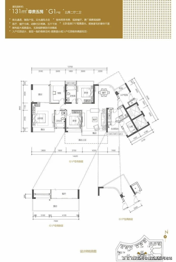
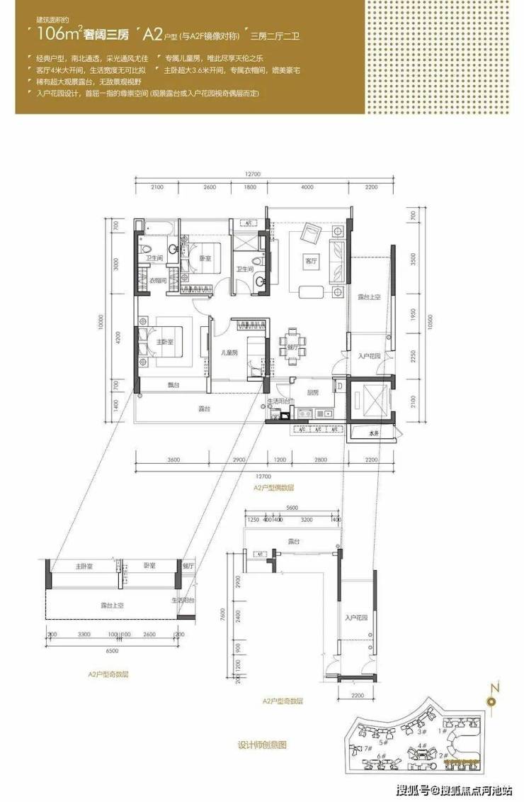
卓能雅苑户型分布图如下:
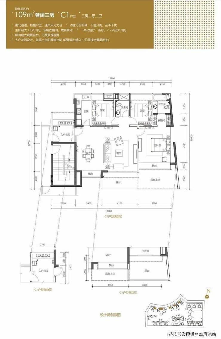
卓能雅苑户型图欣赏:



卓能雅苑配套情况:

交通配套:500米范围内有33号线深大城际(建设中)、22号线(地铁五期规划中)民治北站;紧邻布龙路,梅观快速可快速通往各区域;
教育配套:楼下自带幼儿园,学区范围是行知小学和民治中学,更有多个私立学校展华实验学校,牛栏前学校;

商业配套:自带4800㎡商业,周边5.5万㎡佐阾香颂购物中心、60万㎡壹方天地等高端商圈;

卓能雅苑优点总结:
处于龙华区民治街道生活配套较为成熟,在建地铁33号线民治北站以及规划中的22号线高德导航实测步行约600多米,用时约10分钟。陆路交通出门可通过布龙路上梅观高速到达福田。
小学中学在龙华区均属于第一梯队,对口学区划分为小学行知小学(位置在锦绣江南四期1和2栋楼下邻)口碑较好,多项竞技排名靠前。中学为民治中学(位置在德逸公园邻居),该学校成四大录取绩稳居龙华区前四。
容积率较低只有2.3,并非超高层,套内使用率较高。游泳池网球场等一应俱全。
价格上若以5.5万来PK,西面邻居万福花园6万多的均价肯定不是对手,对比本小区二手也有一定优势(政府参考价5.32万)。
【卓能雅苑售楼处咨询/预约电话☎️ 400-811-3080(中介勿扰)】
✅ 本项目暂不接受临时到访,过来参观样板房请记得提前拨打开发商400电话在线预约!预约看房价格更优惠!
✅ 为您安排楼盘现场销售全程接待并讲解,给您更贴心的看房体验!
温馨提醒:我们卓能楼盘开发商售楼部400电话没有设置任何所谓的“分机号”,拨打前请仔细甄别,注意保护个人隐私!谨防上当!
免责声明🔉:
以上所发布的关于深圳卓能雅苑楼盘信息仅供参考,所有图文资料及说明请以最终批文及双方在楼盘营销中心现场签署的买卖合同为准;本图文内容如无意中侵犯某方权益,请联系我们将会及时处理。
声明:本文由入驻焦点开放平台的作者撰写,除焦点官方账号外,观点仅代表作者本人,不代表焦点立场。
