8.8 万㎡总建面!会展湾云岸,1.66 低容积率宜居

搜狐焦点河池站 2026-01-04 13:12:51
用手机看
扫描到手机,新闻随时看

扫一扫,用手机看文章
更加方便分享给朋友

深圳【会展湾·云岸】河畔行政公寓2.5万/㎡起花园式生态办公2.3万/㎡起一线河景,滨水生活会展湾·云岸粤港澳大湾区门户,会展芯著岸系新品,再续新篇建面约33-63㎡、72-92㎡滨水公寓好消息:我们

深圳【会展湾·云岸】

河畔行政公寓2.5万/㎡起

花园式生态办公2.3万/㎡起

一线河景,滨水生活

粤港澳大湾区门户,会展芯著岸系新品,再续新篇建面约33-63㎡、72-92㎡ 滨水公寓

好消息:我们会展湾云岸/里岸项目这几天推出几套工抵房,历史新低,零售价低于打包价!数量有限,先到先得!详情可以咨询售楼处400热线了解更多信息!

如需了解本楼盘更多详情,欢迎来电咨询会展湾云岸开发商售楼处免费400咨询/预约电话:400-800-9113(已认证)中介请勿扰,因近期参观的人员太多,本项目营销中心暂不接受临时到访,为不耽误您的行程,过来楼盘现场参观样板房请务必记得提前来电预约,预约看房的话最终房价还能更加优惠,最终价格包您满意!

下面是售楼处照片:

项目介绍

项目基本信息

【项目地址】:深圳宝安区展云路与重庆路交汇处

【总占地】:约5.3万㎡

【总建面】:约8.8万㎡

【产权年限】 :40年

【容积率】:1.66

【商务公寓】 :约35016㎡

【商业】 :约10316㎡

【办公】:约42500㎡

【停车位】:773个

【物业公司】:深圳华侨城湾区发展有限公司

【开发商电话】400 800 9113

【物业费】:7元/㎡

【交付时间】:2022年10月31日

会展湾云岸七大价值亮点:

立足湾区核心,多重战略区位叠加,深圳经济增长极

全球第一大会展综合体,鼎立湾区门户

全球最大会展中心,深圳面向全球的窗口

9倍会展经济带动效应,深圳经济加速器350万会展经济圈

融创冰雪文旅城,世界级文旅配套

两大央企华侨城&招商联袂,品牌保障实力护航

湾区五维立体交通,构建跨越时区的交通网

五大必买理由 一个核心—粤港澳之核、大湾区之心

29平方公里会展新城—珠三角广深港发展走廊核心,由“三城一港”构成—国际会展城、海洋新城、会展田园城和综合港区,打造深圳在全球科技创新和海洋中心城市的重要战略之称

国际会展城—全球会展产业发展高地,形成“会展+科创”的世界会展产业示范区

海陆空铁轨、湾区1小时经济圈

地铁:20号线地铁国展南站园区上盖,1站可达国际机场,预计年底通车。12号线途经南山和宝安两个行政区,无缝衔接11号线和6号线,预计2022年年底通车,未来将实现20分钟抵达市中心区

轨道:穗莞深城际已开通,迅速链接市内各区及珠三角城市

陆路:现有4条快速干道(沿江,广深,外环,京港澳),在建深中通道,滨江大道规划中,即将全面构建大湾区交通网络

✈ 航空:深圳宝安国际机场T3航站楼已启用,T4航站楼与机场第三跑道在建,未来可实现多条航线直飞全球超120个城市

超300万方深圳会展湾 拉动区域经济引擎约160万㎡深圳会展中心,约154万㎡会展综合配套,形成包含城市地标、产业总部、商业中心、国际酒店群、产业展馆、精品公寓、生态公园、交通枢纽等复合功能物业群,构建集全球信息交流和消费体验于一体的会展商务平台 会展中心经济带动产业1:9,深圳经济增长级 2021年展会排期超60场,预计总展览面积超280万㎡、参展人数预计将超300万人,无限拉动周边区域配套收入,会展湾酒店供不应求,缺口巨大,公寓价值凸显

户型鉴赏(主力户型) 【A1户型:33㎡】房型:酒店式公寓朝向:E1、E2(东南、西北)户型优势:户型方案、3.6米开间、独立阳台

【B2户型:63㎡】房型:两房一厅一卫朝向:E1、E2(西南、东南)户型优势:端头位、双面采光、无敌景观

【B1户型:72㎡】房型:2+1房一厅一卫朝向:E1、E2(西北、东南)

户型优势:户型方正、多功能房、无敌景观

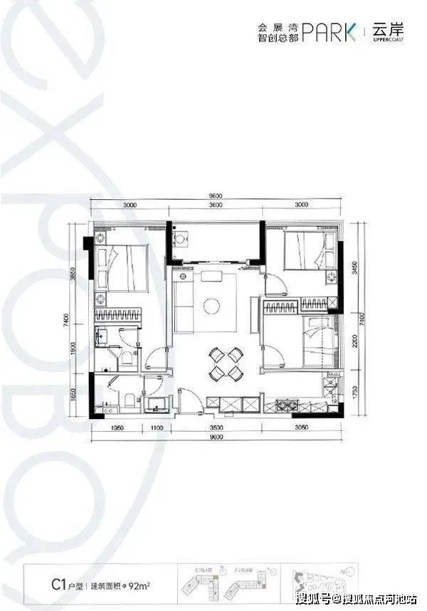
【C1户型:92㎡】房型:三房两厅两卫朝向:T5、T6(正南)户型优势:端头位、双面采光、主客分区、无敌景观 (瞰河)

看完以上介绍,如需了解更多关于我们深圳会展湾楼盘最新消息、剩余房源以及楼层、这几天房价优惠活动、在卖的户型、限购政策、房贷相关问题等情况,欢迎来电咨询会展湾云岸楼盘开发商售楼处全国免费400咨询/预约电话:400 800 9113(已认证)中介请勿扰。

温馨提示:因近期本项目售楼中心来访的看房客户特别多,过来营销中心参观样板间采取预约制,为不耽误您的行程,过来营销中心现场看房请务必记得提前拨打售楼处400电话来电进行预约一下,预约看房价格还可以享受更多开发商内部优惠,名额有限千万不要错过,感谢您对我们工作的支持和配合,在此恭候您大驾光临实地品鉴。

免责声明:以上展示的关于深圳宝安沙井会展湾云岸楼盘最新图文资料可能有部分来自网络,一切信息以最终在现场签署的购房合同为准,如图文内容无意中侵犯某方权益的话,请及时联系我们将配合处理。

声明:本文由入驻焦点开放平台的作者撰写,除焦点官方账号外,观点仅代表作者本人,不代表焦点立场。