深圳西部销冠【鸿荣源珈誉玖玺/珈誉府】新品加推!便宜4000每平,单万、总价346万起,买77-199平精装3-4房
扫描到手机,新闻随时看
扫一扫,用手机看文章
更加方便分享给朋友
最新消息:深圳宝安沙井鸿荣源珈誉玖玺计划在今年10月中旬取证入市,也是鸿荣源珈誉府的收官之作!将首推6栋/12栋,共254套房源,面积有124-137㎡的4房2厅2卫,169-199㎡的4房3卫户型,价格可以参考鸿荣源珈誉府2期,折后均价4.95万/㎡,不过大户型产品普遍单价会比较高,应该实际落地会在5.5万/㎡左右的均价,总价大概在660万起!营销中心跟实体样板房将在10月1日国庆节双开,提醒一下,如果过来营销中心现场看房,务必记得提前拨打沙井鸿荣源开发商售楼部免费400热线电话:400-880-7297(已认证)进行在线预约,预约看房开盘尊享内部折扣优惠,价格包您满意!
可以说大户型住宅在宝安沙井是非常畅销的,鸿荣源珈誉府1期在2023年6月30日拿证推出有153-181㎡的4-5房,160套全部售罄,万丰海岸城在2024年3月21日取证加推6栋,143-189㎡的4房户型,129套全部售罄,鸿荣源珈誉府2期在2024年3月1日取证推出120㎡的4房,85套也是基本售罄。
项目平面图
项目户型介绍
124㎡的4房2厅2卫,设计的是经典竖厅格局,进门入户玄关,LDKB一体化设计,客餐厅位都设计了飘窗,就是为了争取更多的赠送,动静分区,四开间朝南,主卧270°观景飘窗,L型厨房,公卫三段式分离,得房率约88%(包含赠送),东南朝向。
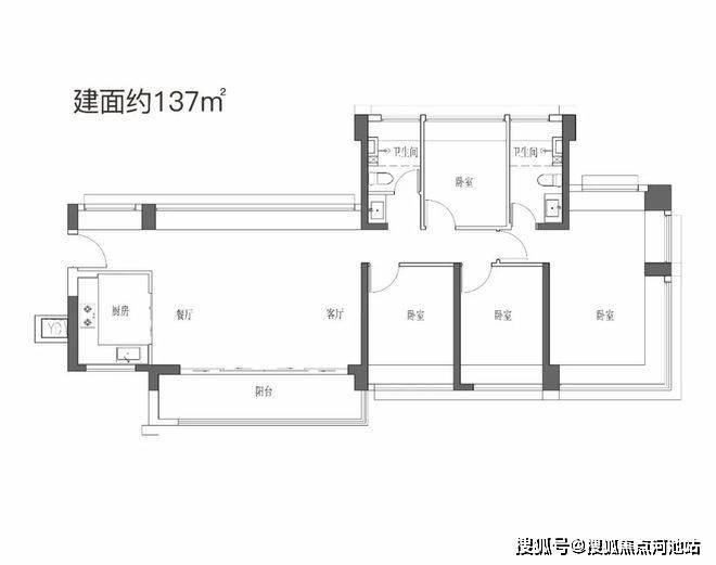
137㎡的4房2厅2卫,设计的是横厅南北通透格局,进门入户玄关,LDKB一体化设计,超宽展面,动静分区,五开间朝南,主卧三面观景飘窗,L型厨房,公卫三段式分离,得房率约90%(包含赠送),阳台主朝东南向。
169㎡的4房2厅3卫,设计的是竖厅格局,2梯2户,专梯入户,独立入户玄关,LDKB一体化设计,四开间朝南,双主卧套间,客厅连接次卧出大阳台看花园全貌景观,二字型厨房带1个生活阳台,公卫三段式分离,得房率约95%(包含赠送),正南朝向。
199㎡的4房2厅3卫,设计的是竖厅格局,2梯2户,专梯入户,独立入户玄关,LDKB一体化设计,客厅超大开间,四开间朝南,双主卧套间,客厅超大阳台看花园全貌景观,二字型厨房带1个生活阳台,公卫三段式分离,得房率约95%(包含赠送),正南朝向。
户型图欣赏
项目区域及楼盘介绍
鸿荣源珈誉府,位于宝安大道于凤塘大道交汇处东南侧,该项目原是"塘尾片区城市更新单元“,由鸿荣源集团一手打造,也号称是第二个壹城中心升级版,地处沙井核心板块,周边1公里内涵盖3个重量级商业(万丰海岸城购物中心+鸿荣源壹方奥特莱斯+华强购物中心),11号地铁线”桥头站“距离约300米。
鸿荣源珈誉府,总建面约248万㎡,将打造近8000套住宅,其中住宅面积70万㎡,商业面积50万㎡,共分4期开发,是鸿荣源集团全新开发的地标级综合体大盘,涵盖高端住宅、商业办公、星级酒店、优质教育、大型购物中心等业态。
而本次壹方奥莱商业中心,也是鸿荣源”奥特莱斯“产品线的首个项目,商业中心通过空中绿道与塘尾地铁站相连,现代感十足,也是鸿荣源继前海壹方城,龙华壹方天地之后开发的第3个超大商住综合体项目。
鸿荣源珈誉府3期,总占地面积约4.79万㎡,总建筑面积约40.53万㎡,计容建筑面积约27.63万㎡,容积率5.42,绿化率40%,共由10栋总高31-48F住宅组成,其中6栋1/2单元住宅44F,7栋/8栋住宅48F,9栋1单元住宅46F,9栋2单元住宅45F,10栋1单元住宅47F,10栋2单元住宅31F,11栋住宅46F,12栋/13栋住宅48F。
总规划2479户,地下室有3层,规划停车位2795个,车位占比约1:1.127。
开发商:深圳市鸿荣源控股(集团)有限公司
物业公司:深圳市鸿荣源物业服务有限公司
物业管理费:5.9元/㎡
总占地面积:约4.79万㎡
总建筑面积:约40.53万㎡
容积率:5.42
绿化率:40%
产权年限:2022.5-2092.5年(70年)
总户数:2479户
总栋数及楼高:10栋,31-44-45-46-47-48层。
梯户比:2梯2户/3梯5户/3梯7户
停车位:2795个
开发商电话:400-880-7297(官方)
交房时间:待定
交付标准:精装修
鸿荣源珈誉玖玺采用围合式布局,约2.9万㎡艺术大园林,采用世界名画“记忆的永恒”为灵感打造,最大楼间距约161米,全龄段子母双泳池。
鸿荣源珈誉玖玺6栋采用纯板楼设计,2梯2户,外立面采用部分铝板设计,单元入户大堂采用大理石地面及花纹石材墙面,奢阔3.15米层高。
项目周边配套
商业配套:鸿荣源珈誉府,自带50万㎡奥特莱斯商业,汇集了壹方+奥莱的商业模式,在项目北侧还有万丰海岸城近18万㎡的购物中心,这个片区以后也将会是整个沙井最高端最集中的商业购物中心。
学校配套:鸿荣源珈誉府旁边,所规划的2个教育用地,已经正式出了红头文件,为深圳外国语宝安学校(集团)南校区,分别为1所63班九年一贯制学校,1所为27班九年一贯制学校(珈誉玖玺旁边),另外根据宝安区2024年最新的学区划分:
小学学区划分在桥头学校小学部、塘尾万里学校小学部、滨海小学(集团)福桥小学、立新湖学校小学部、凤凰学校小学部、滨海小学(集团)文昌小学;
初中学区划分在桥头学校初中部、塘尾万里学校初中部、立新湖学校初中部、福永中学、新安中学(集团)第二外国语学校(初中部)、航星学校初中部、凤凰学校初中部。
虽然同为宝安鸿荣源珈誉府项目,但是因为社区不同,学区划分是有明显区别的,旁边规划的深圳外国语宝安学校南校区仅27个班,后期录取积分应该会非常紧张,另外距离约900米的立新湖学校,在2024年小一的录取积分是86.8分,初一的录取积分是81分,塘尾万里学校在2024年的小一录取积分是100.5分,初一录取积分是94.2分;
按照宝安区教育局公布的积分政策,只要是深圳户籍(其它区)+学区内商品房,基础分100分,深圳宝安户籍+学区内商品房,基础分105分。
地铁配套:鸿荣源珈誉玖玺家门口就是宝安大道及凤塘大道等交通主干道,11号地铁线“塘尾站”,距离约300米,4站到宝安机场,6站到宝中,7站到前海湾,8站到南山,11站到车公庙。鸿荣源珈誉玖玺家门口就是宝安大道及凤塘大道等交通主干道,
以上就是关于深圳宝安沙井鸿荣源珈誉玖玺楼盘的详细介绍说明,看完以上介绍内容,如果您对我们楼盘还有任何疑问,欢迎联系鸿荣源珈誉玖玺开发商售楼处电话:400-880-7297(中介请勿扰)进行咨询或者安排本楼盘现场销售在线为您一对一服务,现场销售人员会把楼盘的新资料、样板间图片视频、都发微信给您看、您不需要过来楼盘现场都能够熟悉个大概,还可以了解到本楼盘的优点缺点、房产政策、银行政策、积分入学、都给您讲解的明明白白。现场销售还可以为您对我们楼盘进行全面更详细的介绍,包含项目开盘详情、近期房价、楼层高低、户型朝向分析、最新折扣优惠活动等情况,而且还可以避免中介虚报价格,耽误您的时间和精力,中介所给的优惠我们全都可以给,让您买的放心,住的舒心!买房是大事,记得及时联系我们。
免责声明:以上展示的关于深圳宝安沙井鸿荣源楼盘最新相关的图文资料可能有部分来自于网络,一切信息以最终在现场签署的购房合同为准,如图文内容无意中侵犯某方权益的话,请及时联系我们将配合处理。
声明:本文由入驻焦点开放平台的作者撰写,除焦点官方账号外,观点仅代表作者本人,不代表焦点立场。
