总价170万起!财富城·育德苑即将取证!单价低至2.5万!坪山C位核心配套!财富城最新图文解析!
扫描到手机,新闻随时看
扫一扫,用手机看文章
更加方便分享给朋友
最新消息:坪山中心区住宅新盘——财富城 2期育德苑将于2025年在11月底取证入市,折后单价2.5万起。已开放交标样板房,本次会首推1栋B座,面积有68m²的2房2厅1卫,84m²的3房2厅1卫户型,共110套房源,其中68m²的2房户型整个小区仅有35套!折后均价2.6万/m²,折后单价2.5-2.65万/m²,2房总价170万起!3房总价210万起,过来看房提前预约价格还可以更便宜!关于交楼时间,合同约定在2026年11月份简装交房。
68㎡的2房2厅1卫,折后总价170-180万,折后单价2.5-2.65万/m²。
84㎡的3房2厅1卫,折后总价210-220万,折后单价2.5-2.6万/m²。
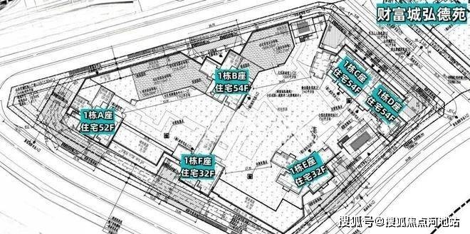
户型朝向航拍示意图
如需了解本楼盘更多详情,欢迎来电咨询深圳坪山财富城楼盘开发商售楼处免费400咨询/预约电话:400-811-3080(已认证)中介请勿扰,因近期参观的人员太多,本项目营销中心暂不接受临时到访,为不耽误您的行程,过来楼盘现场参观样板房请务必记得提前来电预约,预约看房的话最终房价还能更加优惠,最终价格包您满意!
下面是我们楼盘营销中心现场实拍照片:
财富城2期所在的区位是整个坪山最核心的地段,汇聚了高铁+14/16号线双地铁+坪山实验学校+坪山中心公园+坪山天虹商场+坪山区政府+坪山体育中心+坪山图书馆,文艺馆等等,所有的市政配套基本都集中在这里,并且财富城2期也是该核心区域内唯一在售的新盘。
财富城2期,总占地面积约4.54万㎡,总建筑面积约35.8万㎡,共分为3个地块开发,分别为财富城弘德苑,财富城明德苑,财富城育德苑,共由9栋13座住宅组成,总规划2538户,其中商品房2222套(包含回迁房,具体套数暂不明确),保障性住房316套,停车位2654个,车位占比1:1.04。
本次推售的财富城育德苑,总占地面积约1.2万㎡,总建筑面积约7.8万㎡,计容建筑面积约5.48万㎡,容积率4.72,绿化率35%,共规划2栋3座26-48层高的住宅,其中1栋A座住宅48F,1栋B座住宅42F,2栋住宅26F,规划有3000㎡商业。
总规划649户,其中商品房333套,保障性住房316套,1栋A座3梯6户,1栋B座3梯7户,2栋2梯5户设计,地下2层,规划停车位564个。
楼盘基础信息
1、开发商:深圳市财富城投资有限公司
2、物业公司:深圳市财富物业管理有限公司
3、物业管理费:3.9元/㎡
4、总占地面积:1.2万/㎡
5、总建筑面积:7.8万/㎡
6、开发商电话:400 811 3080
7、绿化率:35%
8、产权年限:2022年6月12日-2092年6月11日(70年)
9、总户数:649户,其中商品房333套。
10、总栋数及楼高:3栋,分别26-42-48层
11、梯户比:2梯5户/3梯6户/3梯7户
12、车位数:564个
13、车位占比:1:0.87
14、交楼时间:2026年11月
15、交楼标准:简装修
财富城弘德苑,总占地面积约2.16万㎡,总建筑面积约18.1万㎡,计容建筑面积约14.2万㎡,容积率6.58,绿化率35%,共规划5栋6座32-54层高的住宅,其中1栋A座住宅52F,1栋B/C/D座住宅54F,1栋E/F座住宅32F,规划有7050㎡商业。
总规划1207户,其中可售商品房613套,回迁房594套,1栋A/B/C座都是3梯5户,1栋D座3梯4户,1栋E座2梯4户,1栋F座2梯5户设计,地下2层,规划停车位1268个,车位占比1:1.05。
平面图及户型图
68㎡的2房2厅1卫,设计的是竖厅格局,客厅3.4米开间,LDKB一体化设计,动静分区,L型厨房带1个生活阳台,卫生间三段式干湿分离,得房率约79%(不含赠送),西南朝向。
84㎡的3房2厅1卫,A户型,设计的是经典竖厅格局,客厅3.4米开间,LDKB一体化设计,动静分区,L型厨房还带1个生活阳台,卫生间三段式干湿分离,得房率约79%(不含赠送),东北朝向。
84㎡的3房2厅1卫,1栋A座C户型/1栋B座G户型,设计的是竖厅南北通透格局,客厅3.4米开间,客餐厅双阳台分离化设计,U型厨房,卫生间干湿分离,得房率约79%(不含赠送),客厅阳台主朝东北向。
财富城项目周边配套
学校配套:根据2024年坪山教育局最新的学区划分,财富城2期所属片区,小初学区属于坪山实验学校+东北师范大学深圳坪山实验学校的大学区范围内,采取学位类型、后积分,再按平行志愿录取方法。
坪山实验学校在近年来一直都是属于坪山NO.1的学校,该校成立于2010年,如今已经有北、南、东三个校区,是一所九年一贯制学校,在2023年秋季总开设163个教学班,在校生有7600多人,并在2022年8月份正式成立教育集团。
东北师范大学深圳坪山实验学校,该校于2021年9月正式开学,是东北师范大学与深圳市坪山区政府携手打造的九年一贯制公办学校,规划招收114个教学班,提供5400个学位,目前已有1-5年级34个教学班,7-9年级18个教学班,学生合计人数2267名。
交通配套:财富城周边的交通网络极为方便,14/16/19号共3条地铁线环绕,还有坪山云巴、深惠城际大鹏支线、深大城际包括高铁线路,其中最近的19号地铁线“坪山剧院站”距离约230米。
14号地铁线“坪山广场站”距离约400米,该线路设计时速120公里,6站到龙岗大运,11站到布吉,12站到罗湖,14站到福田岗厦北,从坪山广场站-福田岗夏北车程50分钟;
16号地铁线“新和站”距离约650米,该线路是通往龙岗大运的普线,设计时速80公里;
坪山云巴1号线“站前路东站”距离约700米,该线路是从坪山比亚迪开往坪山高铁站的一条内部线,目前已经开通运营。
坪山高铁站距离约1.8公里,设计时速250公里,20分钟直达深圳北站,1个小时直达香港西九龙。
深大城际(深圳段)起自深圳市宝安机场T4站,途经宝安区、龙华区、龙岗区,终至坪山区聚龙站,线路全长约69.2km。线路设计时速为160km/h。
全线设地下站11座,分别为:机场T4、机场东、黄麻布、石岩中心、龙胜、民治北、五和、白泥坑、大运、坪山、聚龙。
深惠城际大鹏支线起自深圳龙岗区龙城站,途经龙岗、坪山,止于大鹏新区新大站,线路全长约 39.4 km。线路设计速度为 160 km/h,预计 2026 年建成通车。全线设 6 座车站,龙城、坪山、燕子湖、葵涌、大鹏、新大。设新大存车场。作为粤港澳大湾区城际铁路网络的重要组成部分,大鹏支线也是深圳“东进战略”的强力支撑。
商业配套:项目自带有1.5万㎡底商,相隔200米的财富城1期有天虹商场购物中心,约700米有坪山首座万象城(在建),也是深圳第三座万象城,总占地面积30公顷,规划商业规模超12万平方米,其中集中商业9万平方米,街区商业3万平方米,该项目建成后将成为集购物,娱乐,文化,餐饮和社交于一体的城市综合体。
财富城项目优劣势
1、财富城2期,所处的位置是整个坪山区最核心的区域,地段极其优越。
2、财富城2期,买房3件套(地铁+学校+商业)全占了,并且都是坪山区域最顶尖的配套,坪山实验学校+14/16号地铁线/高铁线汇聚+万象城商业/天虹购物中心。
3、周边还有坪山最集中的人文配套,图书馆、美术馆、文化聚落、游泳馆、体育中心、坪山中心公园、大剧院,无一不证明这个片区是坪山目前最宜居的。
4、财富城育德苑这次推售的价格非常给力,要知道前面推售的弘德苑折后均价3.55万/m²,最低单价都要2.78万/平起步,这次育德苑直接均价2.6万,对比均价下调了整整9000元/平,起步价2.5万/平,并且也有68平的2房新产品,总价门槛只要170万起步。
5、财富城育德苑居住人群相对没这么纯粹,总共规划649户,其中商品房333套,公租房316套,公租房占比48.69%,都是集中分布在1栋A/B座,其中A座分布3条腿,B座分布4条腿。
6、财富城育德苑的车位不够,总共规划649户,车位有564个,车位占比1:0.87,不过因为商品房只有333套,前面商品房业主肯定是先入住的,物业方面保证业主们1:1的车位比应该是没问题的。
看完以上图文介绍,您如果想要了解更多关于我们深圳财富城二期楼盘最新消息、当前剩余房源、这几天楼盘现场折扣优惠活动、近期周边房价走势、银行相关利率政策等情况的话,欢迎来电咨询财富城楼盘开发商售楼处免费400咨询/预约热线电话:400-811-3080(已认证)中介勿扰。
温馨提示:因本项目营销中心参观样板间采取预约制,为不耽误您的行程,过来营销中心现场看房前请务必记得提前来电预约,预约看房的话享受的优惠折扣比直接上门更多,最终成交价格也会更加划算,在此真诚感谢您对我们工作的支持和信赖,恭候您大驾光临。
免责声明:以上展示的关于深圳坪山财富城二期楼盘最新相关的最新图文资料可能部分来自网络,具体细节以最终签署的购房合同为准,如无意存在侵犯某方权益请及时联系我们处理。
声明:本文由入驻焦点开放平台的作者撰写,除焦点官方账号外,观点仅代表作者本人,不代表焦点立场。
