南山华侨城【深业世纪山谷】 公寓 唯一新房精装现楼
扫描到手机,新闻随时看
扫一扫,用手机看文章
更加方便分享给朋友
我们项目住宅共342套,3A栋和3B栋233/280/386平三至四房和420--1080平云端复式户型,住宅已于2024年11月28号开盘,342套房源目前卖了约169套、去化49%,目前剩下约176套住宅,样板房开放中,看房需预约并现场验资。
项目规划总占地4.2万㎡,容积率6.63,分为两期不同地块。一期为1栋A座为150米高公寓+酒店、1栋B座为92米高保障房、2栋A/B座位为138米回迁住宅。
二期共三栋塔楼,住宅两栋即世家,一栋公寓已在售,3栋A/B座250米69层住宅,面积为233-280-386㎡3到4房,小区3栋C座公寓面积为131-153-190㎡2到3房,8T3户。
小面积公寓特别火爆这几天,70年产权,民水民电,通燃气,3.3米层高,全屋一线品牌精装交付,户户带阳台!
67-71㎡一房:320-355万 月租金1-1.2万
83-87㎡两房:377-496万 月租金1.2-1.4万
起售楼层29-42层
温馨提示:因近期参观的购房者较多,所以本楼盘采取预约制,并且现场需要验资,过来营销中心现场参观样板间请记得提前拨打开发商售楼处400热线电话在线预约,预约看房价格更优惠,感谢您的配合!

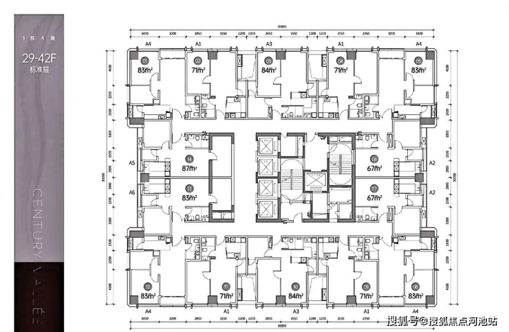
深业世纪山谷公寓户型图鉴赏(目前还有少量公寓在卖,看房需要验资,详情可联系我们400电话咨询。)
【产品】建面约67-87㎡1-2房,百米之上,天赋臻寓
70年产权,户户带阳台,拥有约3.3㎡超舒适层高,
5梯14户,高定奢装,世纪山谷首发之选。

A1户型--建面约71㎡一房

A2户型--建面约67㎡一房

A3户型--建面约84㎡两房

A4户型--建面约83㎡两房

A5户型--建面约87㎡两房

A6户型--建面约83㎡两房

项目简介
◆项目名称:深业世纪山谷
◆项目地址:深圳市南山区沙河东路
◆物业公司:深业物业集团有限公司
◆开发商:深业沙河世纪山谷(深圳)投资有限公司
◆总占地面积:约4.2万㎡(一期17153.5㎡,二期24991.2㎡)
◆总建筑面积:约39万㎡(一期219933.6㎡,二期168652.16㎡)
开发商电话:400 811 3080
◆规划套数:共1627套,(一期1036套,二期591套)
◆产权年限:70年(2019年-2089年)
◆交楼时间:
◆停车位:总2135个,车位比:1:1.25
◆绿化率:约35%
◆容积率:约5.78
◆管理费:6.8元/㎡/月

【深业世纪山谷】是一座位于深圳的城市综合体,位于南山区沙河东路218号,占地面积约4.2万㎡,总建筑面积约39万㎡,一期容积率5.78、二期容积率6.63。该综合体集住宅、公寓、酒店、商业和办公等多种功能于一体,具备了完善的生活配套和商业服务。
整个项目分两期开发建设,其中:项目一期东地块包含1栋酒店+商务公寓、1栋保障房、2栋包含一、二单元的住宅;西地块包含2栋高约250米的超高层住宅,另有1栋约50层高的商务公寓。
深业世纪山谷规划平面图:

01:深湾走廊,汇集一湾所向,于此深藏所有
总部长廊-四大超级总部环绕
北有留仙洞总部基地,西有深圳湾高新区总部基地、后海总部基地,南接深圳湾超级总部基地,四大超核引擎环绕。
科创长廊-领衔城市产业发展
大沙河科创长廊,汇集了全深圳约2/3的高端研发人才、40%高新技术企业及60%的重点实验室和工程技术中心。
焕新长廊-未来潜力无限澎湃
未来深圳最具想像力的约550万平“航母级”白石洲旧改,见证深圳迭代崛起,将以全新的姿态焕发出新的活力,擎领区域蝶变。
生态绿廊-城市中心翡翠项链
13.7KM绵延不息的大沙河生态长廊,勾勒出城市最靓丽的风景线,成就水、岸、城和谐共融的美好。

未来中心 重序沙河
果岭首排|脉连世界|商圈层叠|人文底蕴
02:五重复合自然景观,约200万㎡果岭首排
坐拥有山/河/海/园/湿地五重自然景观资源,项目北望塘朗山、南向深圳湾、西临约200万㎡一线果岭,俯瞰约13.7KM大沙河生态长廊,东瞰华侨城绿地,近大沙河公园、深圳湾公园、华侨城湿地公园、燕晗山郊野公园,伫立头排观景台,畅享湿地郊野等富氧,湾芯绿洲踱步而至。

03:立体多维交通体系 与世界无缝接轨
六轨四横三纵多枢纽:项目毗邻沙河东路,950米达深南大道;驾车1.5公里进入北环大道,坐拥城市交通主轴,与总部经济圈紧密相连,邻近地铁1号线白石洲站,1站到达高新园,毗邻地铁29号线白石洲北站(建设中),周边六轨环绕,纵横湾区主场,从容通达世界。

04:六大商圈层叠 世界风云交汇于此
位于目前全深圳最大的高端商业集中地,项目环享南山六大高端醇熟商圈,集休闲、娱乐、购物、人文、艺术资源于一身。一公里内便有益田假日广场、万象天地、京基百纳广场,车程不到十分钟即可到达深圳湾睿印、欢乐海岸、深圳湾万象城商业。

05:国际人文艺术交融 演绎峯层品位生活
与名商商尔夫、沙河高尔夫隔路相望,区域内拥有深圳最具代表性的人文艺术名片,一公里内可体验国际人文艺术交融,临窗可观世界之窗烟花盛宴,三大国家级景区举步即可抵达,果岭挥杆的乐趣下楼即可体验

3大国家级5A景区:
世界之窗、欢乐谷、锦绣中华
5大文化艺术馆和2大体育馆
何香凝美术馆、华美术馆、华侨城创意文化园、OCT当代艺术中心、深圳epc艺术文化中心
华侨城体育文化中心、深圳湾体育馆

深圳塔标 传世沙河
深圳塔标|世界大师|归家礼序|私享绿洲
06:深圳沙河十年沉淀 约39万㎡塔标综合体
深业沙河集团
历时十年,构筑传世塔标综合体;项目总建面约39万㎡,是集南山核心区大平层住宅、高端商务公寓、国际商业等多元化业态于一体的城市塔标综合体项目。

07:约250米摩天地标 退而高耸进而精细
约250米深圳塔标天际住宅,世纪山谷是深业沙河对城市的最高敬仰,也是深圳人层峯生活的迭代进阶,更是这座伟大城市专为世界前沿人物打造的多元化生活方式目的地。

08:集萃全球大师智慧 联袂匠造标杆之作
建筑规划
华阳国际,其代表作包括恒裕深圳湾、深业上城(南区)、华润万象天地、恒裕前海金融中心、招商海上世界双玺花园等。
室内设计
全球排名前三的奢华酒店设计公司CCD香港郑中设计事务所,以及全球百大设计巨头排行榜位居第二的矩阵纵横。
园林设计
奥雅团队,北京首创天玺、上海阳光城檀悦101的同款设计单位

09:“流动的绿洲”艺术花园 四维尊崇入户
以“流动的绿洲”作为园林景观的设计概念,延续大沙河生态长廊的绿意,打造了艺术花园;奢华车库入户大堂、首层迎宾入户大堂、园林迎宾入户序厅、梯户归家前厅四维尊崇入户,定制您归家入户的每一步。

10:高定奢装小户型公寓,世纪山谷首发传世藏品
推售约67-87㎡1-2房,百米之上,天赋臻寓,均位于29层以上的高区,70年产权,户户带阳台,拥有3.3m超高舒适层高;由亚洲排名第一的CCD设计师事务所,为每个户型定制了专属的装修风格。


深业世纪山谷大平层住宅介绍:
项目推出8梯三户建面约233/280/386㎡世纪大宅420-1080㎡云端复式拥有头排高尔夫景观,是区域内稀缺的景观大平层住宅产品,值得高净值人群的青睐与关注。
深湾-世家大面积住宅,8梯3户,深业世纪山谷交房时间预计2026年12月精装交付(装修另计8000元/平)
233㎡ 3+1房
280㎡ 4+1房
386㎡ 4房
420-1080㎡云端奢居复式/毛坯交付
深业世纪山谷住宅户型鉴赏




【深业世纪山谷开发商售楼处咨询/预约电话☎️ 400-811-3080(中介勿扰)】
✅ 本项目暂不接受临时到访,过来参观样板房记得提前来电预约,并且现场需要验资,请知悉!
✅ 来电预约,我们会为您安排楼盘现场销售全程一对一在线解答,给您更贴心的体验!
温馨提醒:我们楼盘开发商售楼处400电话没有设置任何所谓的“分机号”,拨打前请仔细甄别,注意保护个人隐私!谨防上当!
免责声明🔉:
以上所发布的关于深圳南山华侨城深业世纪山谷楼盘相关介绍详情仅供您购房前参考,以上所有关于本楼盘的图文资料及说明请以最终项目批文及双方在楼盘营销中心现场签署的买卖最终合同为准;本图文内容如无意中侵犯到某方权益,请联系我们将会及时处理。
声明:本文由入驻焦点开放平台的作者撰写,除焦点官方账号外,观点仅代表作者本人,不代表焦点立场。
