卓越缦悦-深圳福田住宅新房-卓越缦悦打造高端品牌标杆之作
扫描到手机,新闻随时看
扫一扫,用手机看文章
更加方便分享给朋友
最新消息:福田区住宅新盘【皇熙悦府】推广名【卓越缦悦】即将开盘入市!2025年10月份取证入市!作为皇岗村旧改一期项目,它的登场自带高光。本次我们项目将会推售1栋五单元(首推)、45层,共计232套建面约:91-173㎡3-4房,新规产品,销售使用率90%+,近1:1梯户比,大户型双电梯独立电梯厅入户,北区2梯2户,双电梯独立电梯厅入户,南区3梯4户。
下面是我们楼盘营销中心现场实拍照片
温馨提示:因近期参观的购房者较多,所以本楼盘采取预约制,过来营销中心现场参观样板间请记得提前拨打开发商售楼处400热线电话在线预约,预约看房价格更优惠,感谢您的配合!
卓越缦悦推出的住宅属于新规产品,销售使用率90%+,近1:1梯户比,大户型双电梯独立电梯厅入户,北区2梯2户,双电梯独立电梯厅入户,南区3梯4户。
项目区位
皇岗村改造项目,位于福田福民路与皇岗二街交汇处西北角,紧邻深圳地铁7号线皇岗村站,地处深圳中心的核心腹地。
皇岗村旧改2024年正式开工,中间隔了十四年,停滞多年后得以重启,大概率是由于旧改规模庞大,加上牵涉多方利益分配,旧改难度相当高。如今卓越突围开建,相当于为深圳高净值人士在中心区高端置业提供了极佳的机会。
而且,在深圳地段如此核心、配套如此齐全、资源如此丰富的中心区,新房项目本来少之又少,此时卓越把筹备多年的重磅级项目推出市场,有种给深圳土豪送福利的感觉。
项目介绍
皇岗村旧改总建设用地达31.40万平,预计总建面约200万平,含住宅、酒店、商业、办公、公寓等多物业形态其中住宅仅占70万平,而回迁房占了63万平,目前可售住宅仅7万平左右。
卓越缦悦为皇岗村旧改的一期工程,也分两期建设。
首推一期1栋5单元(45层),91-173㎡3-4房,共232套,以122-175平米4房为主,占比83%,还有两套257平顶复产品。173/257平大户型双电梯独立电梯厅入户,南区91-125平户型3梯4户。
一期建设用地面积约3.1万平,总建面约22.5万平,容积率5.07,计容建面约15.9万平,一二期共用规划停车位1266辆。其中,住宅约10.2万平,商业约4.1万平(地上+地下)。5栋建筑,其中4栋为回迁物业。
二期总建面约3.3万平,容积率1.05,计容建面约3.3万平,其中,住宅约3.1万平。
本期基础数据:
推广名:卓越缦悦
占地面积:约3.14万㎡
总建面:约27.3万㎡
住宅建面:约10.2万㎡
商业建面:约4.1万㎡
容积率:约5.07
开发商:卓越+皇岗实业
开发商电话:400 811 3080
物业公司:卓越商企服务物业
房源:91-173㎡3-4房
可售住宅总数:232户
总层高:45F/47F
梯户比:北区大户型2T2,南区3T4
车位:一/二期共1987
交付标准:精装修
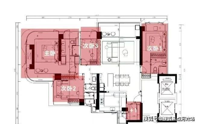
卓越缦悦平面图及户型图
卓越缦悦户型图欣赏
105㎡3+1房
125㎡4房
173㎡4+1房+3卫
【卓越缦悦开发商售楼处咨询/预约电话☎️ 400-811-3080(中介勿扰)】
✅ 本项目暂不接受临时到访,过来参观样板房请记得提前来电预约!
✅ 为您安排楼盘现场销售全程一对一在线解答,给您更贴心的体验!
温馨提醒:我们楼盘开发商售楼处400电话没有设置任何所谓的“分机号”,拨打前请仔细甄别,注意保护个人隐私!谨防上当!
免责声明:
以上所发布的关于深圳福田卓越缦悦楼盘相关介绍详情仅供您购房前参考,以上所有关于本楼盘的图文资料及说明请以最终项目批文及双方在楼盘营销中心现场签署的买卖最终合同为准;本图文内容如无意中侵犯到某方权益,请联系我们将会及时处理。
声明:本文由入驻焦点开放平台的作者撰写,除焦点官方账号外,观点仅代表作者本人,不代表焦点立场。
