翰熙典居|南山区粤海核心住宅新房|楼盘最新图文介绍
扫描到手机,新闻随时看
扫一扫,用手机看文章
更加方便分享给朋友
翰熙典居是深圳市南山区粤海板块唯一在售的新盘,原是桂庙新村城市更新单元,9/15号地铁线“深大南站”就在家楼下,有学府一小+学府中学加持,步行800多米到海岸城高端商业区。项目位置、交通、学区都占优,是一个比较好值得购买的项目。
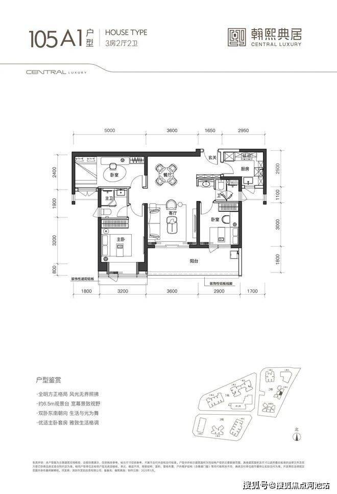
翰熙典居本次首推02地块的2栋3/4单元,共328套房源,面积有104-105-117㎡的3房2卫,120-135㎡的4房2卫户型,预计在2027年带精装修交房。
下面是工地实拍照片:
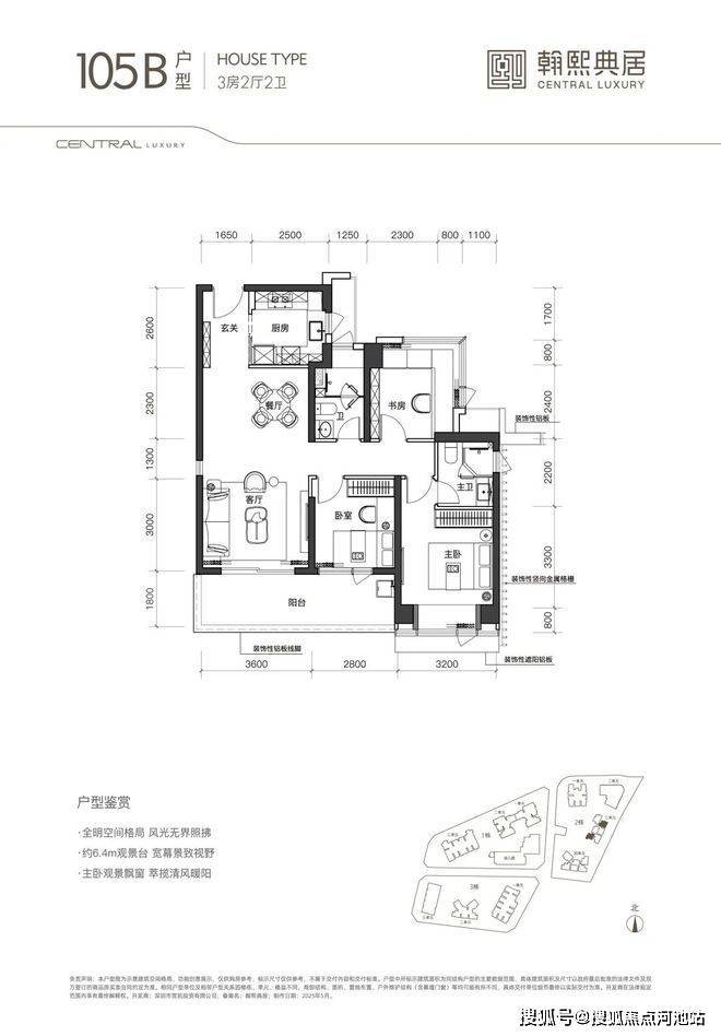
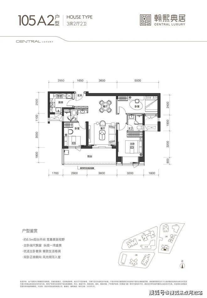
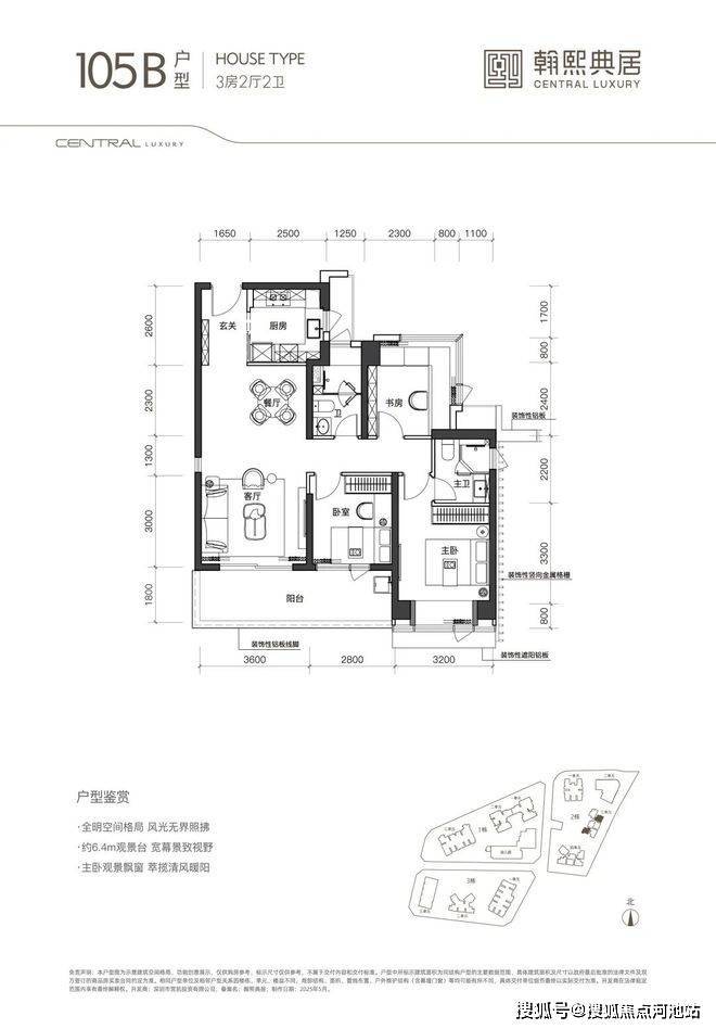
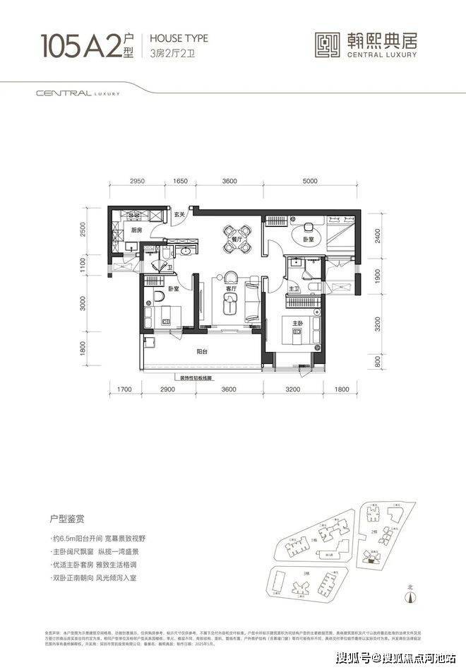
户型以及折后价(仅供参考,过来看房提前预约价格还可以更便宜)
105A:约1017-1107万,9.7-10.5万/㎡
105B:约894-1068万,8.6-10.1万/㎡
120B:约1144-1271万,9.1-10.8万/㎡
120C:约1039-1115万,8.5-9.1万/㎡
140 :约1457-1570万,10.5-11.1万/㎡
温馨提示:因近期参观的购房者较多,所以本楼盘采取预约制,过来营销中心现场参观样板间请记得提前拨打开发商售楼处400热线电话在线预约,预约看房价格更优惠,感谢您的配合!
下面是营销中心实拍照片:
项目信息
总建设用地面积:约41659㎡
总建筑面积:约516339㎡
首推主力户型:新规后建面约105-140㎡奢雅空间
项目地址:深圳·粤海·白石路3888号
开发商电话:400 880 7297
开发商:深圳市贯凯投资有限公司
翰熙典居这个楼盘究竟值不值得买?
科创中心丨擎领世界的粤海雄心
世界四大湾区唯有粤港澳大湾区和旧金山湾有全球科创中心的发展定位。粤海作为粤港澳大湾区核心引擎,依托于重点院校、科创孵化、世界领军企业,成为对标阿瑟顿镇的深圳至臻人居价值版图。
粤海集萃腾讯、大疆等世界五百强企业,汇聚1600余家国家高新技术企业、百余家上市公司,驱动逾千亿年产值,2024年GDP约4500亿元。
矜贵恒产丨问鼎全球的人居高地
粤港澳大湾区——粤海街道,以科技南及后海、深圳湾片区为代表,代言湾区时代地标封面,问鼎深圳至臻人居价值版图
•深圳湾1号(二手房价约20-32万/㎡)
•华润深圳湾悦府(约19-20万/㎡)
•华润城润玺二期(约16-18万/㎡)
枢纽中心丨双地铁上盖TOD
无缝接驳地铁9号线、15号线(在建中)交汇深大南站。核心区罕有TOD项目。
四横:滨海大道、深南大道、北环大道、学府路
三纵:南海大道、后海大道、白石路
(以上所有交通规划最终通车时间以政府最新工程进度落实为准)
5重生态丨山/湖/园/海/湾 聚揽城市一湾风华
1山1湖:深圳大学杜鹃山、文山湖
4公园:荔香公园、文心公园、科技公园、深圳人才公园
1深大后花园
1海湾:约15公里深圳湾滨海长廊
(项目规划连廊直通深大,中国十大最美校园之一。该天桥为方便深大师生进出而设置,后期具体人员进出管理以深圳大学有关规定为准)
百万商业丨湾区繁华潮向 臻藏生活万象
咫尺海岸城商圈,近距离可达深圳湾万象城、万象天地、鹏润达广场、后海汇、来福士广场
9大文体丨城市峯层配套 擘画都心生活闲情逸趣
保利剧院、南山书城、南头古城、南山图书馆、南山文体中心、南山博物馆、深圳湾体育中心、深圳湾文化广场(在建中)、粤海文体中心(在建中)
优教护航丨全龄教育环伺 赋写下一代美好未来
幼儿园:项目自带1所12班制幼儿园
小学:西侧规划有1所30班小学(地块红线外)、南二外学府一小
中学:南二外学府中学、深圳南山中加学校
大学:深圳大学,全国十大最美校园
(周边教育设施如有变动,以南山区教育局最新颁布政策为准)
翰熙典居丨逾50万㎡地标级奢居综合体
集住宅、商业、办公、酒店等业态于一体。项目自带约1.9万㎡精奢时尚酒店、约5.7万㎡未来潮流街区(以后期实际运营为准)、约1.26万㎡公共配套,多维配套迭新粤海人居想象。
质匠高定丨集聚一流大师 匠造雅质奢宅
翰熙典居联袂华汇设计、迈丘设计、CCD(香港郑中设计事务所)等国际国内大师,匠制三重归家礼序,打造美学园林及品质公区,成就卓尔不凡的超感生活。
盛世翰韵 | 新东方都市风格园林
度假式无边际泳池,樱花大道、无界人文街区
奢阔空间丨中心极境 礼献粤海
翰熙典居,粤海十年之后再上新,全新奢居综合体礼献峯层。可售主力户型新规后建面约105-140㎡奢雅空间,全明方正户型将空间奢阔感与生活舒适度完美契合。明星户型超6米阳台开间,全维度巨幕景观视野,尽揽湾心万千风景。
枫叶集团丨深耕核心区 专注城市更新与运营
枫叶集团,聚焦地产开发、资产运营、物业服务三大核心业务。秉承“以心筑新,至臻至善”发展理念,以深圳南山、宝安等核心区为原点,致力于深圳核心的城市更新与运营。已开发地产物业逾百万方,待开发土地储备逾百万方。
翰熙典居,逾50万㎡地标级奢居综合体,2025年深圳市重大建设项目之一。项目三个地块一次性整体开发,彰显枫叶集团雄厚实力,及打造中心人文奢宅、城市地标之作的恢弘之志。
温馨提醒:我们楼盘开发商售楼处400电话没有设置任何所谓的“分机号”,拨打前请仔细甄别,注意保护个人隐私!谨防上当!
免责声明:
以上所发布的关于深圳南山翰熙典居楼盘相关介绍详情仅供您购房前参考,以上所有关于本楼盘的图文资料及说明请以最终项目批文及双方在楼盘营销中心现场签署的买卖最终合同为准;本图文内容如无意中侵犯到某方权益,请联系我们将会及时处理。
声明:本文由入驻焦点开放平台的作者撰写,除焦点官方账号外,观点仅代表作者本人,不代表焦点立场。
