2025光明玉塘,深物业御棠上府工抵房,单价2.75万/㎡起,82㎡三房总价226万。
扫描到手机,新闻随时看
扫一扫,用手机看文章
更加方便分享给朋友

『 项 目 信 息 』

开发商:深圳市光明物合置业有限公司
开发商电话:400-811-3080
占地面积:约1.49万㎡
停车位:1050个
可售套数:872套
项目户型:建面约82-115㎡三至四房
物业管理:深圳市国贸物业管理有限公司

争做世界⼀流科学城 深圳北部中心
光明区以建设大湾区综合性国家科学中⼼先⾏启动区为总牵引,锚定世界⼀流科学城和深圳北部中⼼奋⽃⽬标,打造原始创新策源地、科研经济先⾏地、创新⼈才集聚地。2022年全年光明GDP突破1427亿元,同比增长6.5%,分季度实现逐季稳步提升。(来源:光明区政府在线、深圳光明)

光明南门户 价值崛起的玉塘
光明玉塘拥有“山、水、林、田、湖、温泉”等丰盛生态资源,提供生态休闲、温泉旅游、文旅度假、综合服务等优质服务功能,打造独具特色宜居宜业宜游的“光明南大门”。2021年玉塘GDP总量为351.9亿元,全区排名第一,连续3年蝉联,“国高”及规上企业引进数量居全区第一;2022年,玉塘完成规模以上工业总产值1103.5亿元,规模以上工业增加值296.2亿元,占光明区的32.1%,总量连续4年排名全区第一。腾飞之地,大有可为。(来源:光明区政府在线、光明新闻)

高效出行 畅达湾区
1高铁枢纽、3高速、2地铁线
1高铁枢纽
项⽬经光侨路向东达光明城站,畅达广州、⾹港、东莞等大湾区城市。
3高速
项⽬经光侨路衔接龙大⾼速,通达龙华、福田;经光明⼤道,上南光⾼速直达南⼭,并衔接深圳外环⾼速,速达各区。
2地铁线
项⽬可享6号线⻓圳站(距本项⽬直线距离约2.4公⾥),通达深圳北、福⽥,1站换乘13号线(在建中)畅达南⼭,地铁出⾏,⾼效畅达全城。(信息来源:百度地图、深圳政府在线公众号i深圳)

丰盈配套 汇聚于旁
【左右繁华商圈】:项⽬周边可享光明勤诚达K+⼴场、光明蓝鲸世界、万达⼴场、星河COCO City(在建中)、九鸿世纪⼴场等缤纷购物商圈,悦享繁华都市万象。(来源:百度地图、光明区政府在线)

【5所优教学校】:项⽬周边有⽥寮⼩学、在建中的深圳技术⼤学附属学校(光明),光侨路旁集聚华中师范⼤学附属光明勤诚达学校、⽟律学校、⻓圳学校三所九年⼀贯制学校。(来源:百度地图、光明区教育局)

【7大公园大境】:项⽬周边(百度直线距离约3公⾥范围内)集聚甲⼦塘城市公园、⽟⻰湾公园、⽥寮党建公园、明湖城市公园、⻁地⼭公园;畅享⽯岩湖湿地公园、五指耙公园等公园配套,公园旁的美好家,⽣活更添精彩。

【5大文体配套环伺】:光明⼗⼤⽂体配套中5个在项⽬周边( 百度直线测距约5公⾥范围内):⽟塘⽂体中⼼(在建中)、光侨游泳跳⽔和⽂化活动中⼼(规划中)、凤凰⽂体公园(规划中)、光明区⺠间博物馆(规划中)、光明区⽻⽑球运动中⼼(规划中)。

【千年玉律温泉 百万方文旅度假区】:玉塘街道正在规划建设百万平方米级的玉律温泉⽂旅度假区,并已申报纳⼊区“十四五”规划纲要,将打造集温泉康养、⽂化旅游、森林运动、禅修度假、健康田园等为⼀体的标志性⽂旅度假区,打造“深圳玉温泉”。

国匠精著 优居品质
深物业御棠上府,秉承“品质物业,精彩生活”匠⼼理念,承袭40载精工积淀,打造总建⾯约12.5万㎡品质精著,以全南向蝶形布局,呈现通⻛采光、景观视野、私密性俱佳的建⾯约82-115㎡优居空间。

世界500强控股国企 40载国企深物业
深物业集团是世界500强深投控旗下国有控股上市公司,主导开发运营的国贸⼤厦有幸成为名震寰宇的“南⽅谈话”重要历史现场。40载稳健前⾏,总资产增⻓近300倍,涉⾜产城空间开发、物业管理服务、产业⽣态运营、主业⽣态投资等多元领域,致⼒于成为中国领先的产城空间智慧运营商。

36载国贸物业 2022中国物业服务企业综合实力100强
深圳市国贸物业管理有限公司是⾸批国家物业管理⼀级资质企业,服务遍及深圳、成都、厦⻔等13个省市,管理⾯积超过3200万㎡,业态涵盖高端住宅、企事业、科技园区、政府机关等⼴泛领域,每天有超过100万⼈体验着国贸物业的服务。

户型鉴赏【82-115m²】
A/B座02户型-建面约82m² 三房两厅一卫

A/B座05户型-建面约82m² 三房两厅一卫

A/B座04户型—建面约93m² 三房两厅两卫

A/B座03户型—建面约93m² 三房两厅两卫

A座01户型-建面约94m² 三房两厅两卫

B座06户型-建面约94m² 三房两厅两卫

A座06户型-建面约114m² 四房两厅两卫

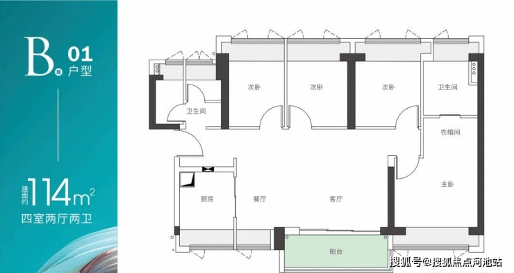
B座01户型-建面约114m² 四房两厅两卫


深物业御棠上府开发商售楼处电话 400-811-3080(中介勿扰)
过来售楼中心看房请提前预约,可尊享内部特惠,价格包您满意!
为您安排楼盘内场专业销售人员一对一接待服务!让你买的放心,住的舒心!
免责声明🔉:
以上所发布的关于楼盘相关图文信息仅供您买房前参考,以上所有关于本楼盘的图文资料及说明请以最终以项目批文及双方在楼盘营销中心现场签署的买卖最终合同为准;本图文内容如无意中侵犯到某方权益,请联系我们将会及时处理。
声明:本文由入驻焦点开放平台的作者撰写,除焦点官方账号外,观点仅代表作者本人,不代表焦点立场。
