【后海招商玺】深圳湾低门槛打入豪宅圈,首推1栋197-235㎡大平层,展厅已开放,预计12月入市
扫描到手机,新闻随时看
扫一扫,用手机看文章
更加方便分享给朋友
后海招商玺在2025年12月份取证入市,本次开盘首推1栋1单元,仅42套房源,面积有197-237㎡的4房2厅3卫户型各21套,板楼一梯一户,专梯入户设计,层高3.3米。

「后海招商玺」前身是原联合饼干厂城市更新单元,位于南山区招商街道后海大道以西、工业七路以北。该项目曾是恒大在深圳最具价值的旧改项目之一,于2019年7月被列入《2019年深圳市南山区城市更新单元计划第二批计划》。
恒大危机后,该项目一度搁置。直到2022年由招商蛇口接手,并成立合资公司推进开发。2025年2月,深圳招商蛇口华湾地产开发有限公司正式成为项目实施主体,项目推进速度显著加快。
温馨提示:因近期参观的购房者较多,所以本楼盘采取预约制,过来营销中心现场参观样板间请记得提前拨打开发商售楼处400热线电话在线预约,感谢您的配合!

楼盘基础信息
1、开发商:招商蛇口华湾地产开发有限公司
2、物业公司:招商积余
3、物业管理费:待定
4、总占地面积:1.49万㎡
5、总建筑面积:15.08万㎡
6、开发商电话:400 880 7297
7、绿化率:30%
8、产权年限:住宅70年,2025年6月-2095年6月
9、总户数:548户,其中可售商品房约258户
10、总栋数及楼高:4栋,21-46层
11、层高:3.3米
12、梯户比:1栋1单元2梯2户,2/3单元3梯3户
13、车位数:700个
14、车位占比:1:1.28
15、交房时间:期房待定,预计在2028年底
16、交房标准:精装修交楼
项目地段

后海招商玺位于后海大道与工业七路交汇处,紧邻地铁2号线海月站和湾厦站,2站可达后海站并换乘11/13号线,10分钟直达市民中心站。陆路交通方面,下楼就是后海大道,通达深圳多条主干道如望海路、东滨路、滨海大道及白石路,15分钟可达南山科技园,20分钟覆盖前海、福田、宝中。特殊交通方面,太子湾邮轮母港提供跨境水上航线,可停靠22万吨级世界最大邮轮,30分钟直达香港机场。
项目周边配套
1、学校配套:后海招商玺当前对口南山区优质公立学校,根据南山区教育局2025年学区划分地图,项目属于育才二小+育才二中学区范围,这两所学校均属南山第一梯队学区。育才二小是南山区重点公立小学,育才二中为区属优质中学,教育质量稳定可靠。

项目自身规划配建一所幼儿园和一所九年一贯制学校(占地1.5万㎡),周边3公里内还有北师大南山附属学校(小学部和初中部)、育才三中等优质学校,形成多层次教育网络。此外,周边还有深圳贝赛思国际学校、蛇口国际学校等国际教育资源,满足不同家庭的教育需求。

2、商业配套:后海招商玺周边3公里内商业配套极为丰富,最近的大型商场为宝能太古城,2公里范围内覆盖深圳湾万象城、海岸城、天利名城、来福士广场、蛇口招商花园城等多个大型购物中心,3公里有K11购物艺术中心。



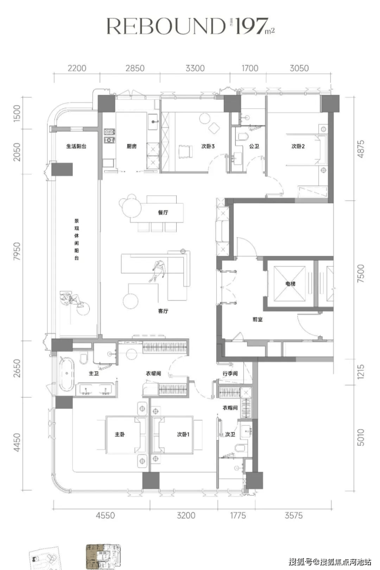
后海招商玺户型图及平面图
建面约197㎡户型,含电梯厅综合赠送后使用率可达93-95%。
户型方正,三面采光,是主次卧以餐客厅分隔的双龙抱珠布局,实现动静分区,保障大家庭起居的私密性。
一体化餐客厅进深约6米,开间约8米,连接观景阳台,面积高达约48㎡,塑造休闲会客的尺度感。超大阳台做了景观、家政功能的双区分,阳台总面积约22㎡,休闲与晾晒互不干扰。

建面约237㎡户型,含电梯厅综合赠送后使用率可达93-95%。
也是三面采光设计,双龙抱珠,主次卧分布餐客厅两侧,实现动静分区。
餐客厅空间尺度很大,面积约60㎡,夸张点说,在里面打羽毛球都不嫌挤,且配置了西厨功能区。
阳台总面积约31㎡,长约18.9米,观景与生活功能区分。L型拐角,可设置为休闲观景区,270°瞰景,还增加“X”百变空间(约10㎡,最宽进深约2.4米)。

设计方面,后海招商玺利用浮岛甲板设计进一步拓展了生活维度。
四栋住宅矗立于浮岛甲板之上,上方是抬升式的立体庭院花园,规划人在自然中的洄游动线。

总结
后海招商玺地处后海 - 蛇口双核心板块,隶属于南山区招商街道,名校加持,区位优势显著。对于不想离开后海核心、追求 “居住舒适度 + 资产稳定性+ 生活丰富度” 的豪宅客群而言,后海招商玺可以重点考虑看看。

【后海招商玺开发商售楼处咨询/预约电话☎️ 400-880-7297(中介勿扰)】
✅ 本项目暂不接受临时到访,过来参观样板房请记得提前来电预约!
✅ 为您安排楼盘现场销售全程一对一在线解答,给您更贴心的体验!
温馨提醒:我们楼盘开发商售楼处400电话没有设置任何所谓的“分机号”,拨打前请仔细甄别,注意保护个人隐私!谨防上当!
免责声明🔉:
以上所发布的关于深圳后海招商玺花园楼盘相关介绍详情仅供您购房前参考,以上所有关于本楼盘的图文资料及说明请以最终项目批文及双方在楼盘营销中心现场签署的买卖最终合同为准;本图文内容如无意中侵犯到某方权益,请联系我们将会及时处理。
声明:本文由入驻焦点开放平台的作者撰写,除焦点官方账号外,观点仅代表作者本人,不代表焦点立场。
