【润宏城·润臻园】低门槛上车光明:深实验+深中书包!总价240万起!买凤凰城3房
扫描到手机,新闻随时看
扫一扫,用手机看文章
更加方便分享给朋友
最新消息:已i深圳登记中!光明润宏城二期——润臻园,本次带着诚意满满的价格来了!备案均价为40350元/㎡,本次开发商给出惊喜开盘折扣!为认筹9.5折,开盘认购9.3折,叠加完后综合88折,5月16号下午2点已经启动认筹!折后均价只要35700元/㎡。
如需了解本楼盘更多详情,欢迎来电咨询光明润宏城·润臻园开发商售楼处免费400咨询/预约电话:400-811-3080(已认证)中介请勿扰,因近期参观的人员太多,本项目营销中心暂不接受临时到访,为不耽误您的行程,过来楼盘现场参观样板房请务必记得提前来电预约,预约看房的话最终房价还能更加优惠,包您满意!
开盘价格如下:
约87㎡横厅三房:约105%使用率,5.6m开间,最具性价比!
折后总价约288-310万
约89㎡竖厅三房:南向四开间爆款户型,开阔视野,光明独有!
折后总价约297-330万
约108㎡四房:约117m视距,无敌园景,6m宽阔阳台!
折后总价约392-415万
项目节点
i深圳截止:5月21日18:00
冻资截止:5月21日19:00
公证摇号:5月23日10:00
开盘时间:5月24日10:00
冻资金额:5万元
本次折后的户型价格区间为:
01三房户型:折后区间293-310万
02三房户型:折后区间298-317万
03三房户型:折后区间302-320万
04三房户型:折后区间313-330万
05四房户型:折后区间392-415万
06三房户型:折后区间288-307万
备案价格表:
润臻园属于润宏城二期住宅开发项目,位于东明大道和松白路西北侧,规划建筑面积约29万㎡,由7栋总高26-57层高的住宅组成,其中1栋住宅26层,2栋住宅7层, 3栋住宅52层,5栋住宅52层,6栋1单元/2单元住宅52层,7栋住宅57层,4栋规划1所9班制幼儿园。
户型介绍
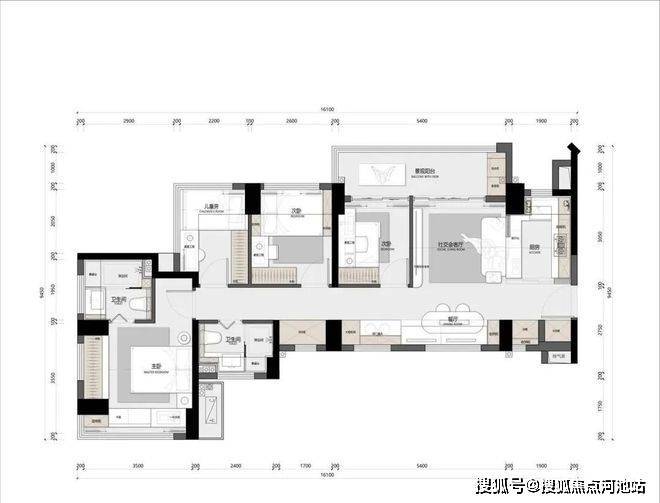
89㎡的3房2厅2卫,C2户型,设计的是竖厅格局,进门入户玄关,客厅3.5米开间,LDKB一体化,S墙设计预留冰箱卡槽位,四开间朝南,动静分区,主卧南北双飘窗,全屋7面飘窗,3个卧室分别做到了主卧16.6㎡/次卧9.18㎡/次卧8.16㎡(包含墙体飘窗),U型厨房,卫生间干湿分离,得房率约:96.4%(包含赠送),东南或西南朝向。
户型介绍:
89㎡的3房2厅2卫,E户型,设计的是横厅南北通透格局,进门入户玄关,客餐厅5.6米开间,LDKB一体化设计,客餐厅出11㎡的大阳台,主卧+1个次卧双飘窗设计,全屋12面飘窗,3个卧室分别做到了主卧15.1㎡/次卧7.83㎡/次卧6.96㎡(包含墙体飘窗),L型灵动式厨房,卫生间干湿分离,得房率约:96.4%(包含赠送),阳台主朝西北或东北向。
改好4房的格局:
108㎡的4房2厅2卫,A户型,设计的是竖厅格局,进门入户玄关,客厅3.45米开间,LDKB一体化,S墙设计预留冰箱卡槽位,四开间朝南,动静分区,主卧+1个次卧270度大飘窗,客厅连接次卧出6米长大阳台,4个卧室分别做到了主卧16.4㎡/次卧11.2㎡/次卧7.84㎡/次卧6.25㎡(包含墙体飘窗),U型厨房,卫生间干湿分离,得房率约:105%(包含赠送),东南朝向。
润宏城·润臻园项目由华润置地与宏发集团联合打造,位于轨道13号线车辆段片区重点城市更新单元内,占地2平方公里。
根据定位,润宏城所在片区更新单元,总建面约382.5万㎡超大体量,集轨道交通、优质教育、城市公园、创新产业、品质居住于一体,打造“宜居、宜业、宜游”之城,引领深圳光明城市迭代。
其中,润宏城·润臻园(2-12地块)位于东明大道和松白路西北侧,规划建筑面积约29万㎡,由7栋(26-57层高)高层住宅围合组成。
此次首推的1栋约89-108㎡3-4房,产品十足,不同户型的实际使用率加赠送面积有约95-105%,在光明确实少见,其中89E户型表现最突出。
华润润臻园,由华润集团打造,总占地面积约2.98万㎡,总建筑面积约28.6万㎡,计容建筑面积约21.45万㎡,容积率7.19,绿化率30.01%,共由7栋总高26-57层高的住宅组成,也是光明区域内最高的天际住宅,其中1栋住宅26层,2栋住宅47层, 3栋住宅52层,5栋住宅52层,6栋1单元/2单元住宅52层,7栋住宅57层,4栋规划1所9班制幼儿园。
总规划1836套,全部是商品房,内置有公交首末站,文化活动室,社区老年人日常照料中心,社康服务中心,地下室有3层,规划停车位2062个,车位占比约1:12。
一、楼盘基础信息
1、开发商:深圳市润宏房地产开发有限公司
2、物业公司:华润物业
3、物业管理费:4.5元/㎡
4、总占地面积:2.98万/㎡
5、总建筑面积:28.6万/㎡
6、开发商电话:400 811 3080(官方认证)
7、绿化率:30.01%
8、产权年限:2022年12月30日-2092年12月29日(70年)
9、总户数:1836户
10、总栋数及楼高:7栋,26-57层
11、梯户比:首推的1栋,3梯6户
12、车位数:2062个
13、车位占比:1:1.2
14、交楼时间:2028年3月
15、交楼标准:精装
二、润宏城·润臻园四大核心优势价值:
优势1 品牌保障:华润置地&宏发集团 迭新深圳人居高度
【华润置地】深耕鹏城20余载,开创片区统筹规划、开发、建设、运营的“南山模式”,并继罗湖万象城、大冲华润城、后海华润深圳湾之后,将片区统筹开发模式引入光明,驱动深圳北部中心升级。
【宏发集团】初创于1981年,深圳地产开发实力企业。集团秉持“以产促城,以城兴产”的核心理念,以产业服务为根基,多业态融合布局,综合产业运营服务商,筑就城市发展蓝图。
华润置地携手宏发集团,实力打造华润置地深圳首个新规项目——润宏城·润臻园,以人为本,邻里共享,打造创新型商业街区,高浓度生活社区。优势2 黄金地段:位于光明凤凰街道,繁华触手可及项目位于光明区凤凰街道,光明作为世界一流科学城、北部中心,是国家级的战略规划,而凤凰街道则是目前光明区发展最为成熟的街道。
拥有高铁、地铁、轨道交通多线汇集,是光明发展的引领者。无论是从财政实力还是GDP增速,凤凰街道都拥有强大的兑现能力与发展潜力。
优势3 醇熟大城:配套持续兑现 坐享城市升维发展润宏城,建面约320万㎡地铁上盖 公园优教大城,集轨道交通、优质教育、城市公园、创新产业、品质居住于一体,打造“宜居、宜业、宜游”之城,引领深圳光明城市迭代。润宏城·润臻园属于润宏城二期住宅开发项目。
润宏城整体自2023年动工建设以来,2年时间大城雏形已现,一期学校深圳市深实验明湖学校在建中、茅洲河示范段已在升级中、东明大道已开通等取得显著进展,正加速兑现中。两年时间里,润宏城兑现了2大住宅项目,获得超3200批业主的认可,2025年年底开始陆续交楼入住。
立体交通:轨道交通直线距离约600m到达地铁13号线月亮路站(建设中),1站凤凰城,9站到南山,2025年将推动13号线二期(北延)建成通车(信息来源:宝安日报)。
项目近享3纵4横公路网,咫尺松白路/东明大道双城市干道,东明大道2025年已通车,从项目至凤凰城地铁站开车仅5分钟车程。
优质教育:社区内配置幼儿园,西北侧地块为九年一贯制学校(规划中),与项目一路之隔。
大城规划3所九年一贯制学校、其中一期学校深圳实验光明明湖学校(暂定名)建设中,项目3公里范围内涵盖深圳中学光明科学城学校、深圳市光明实验学校等。
城市公园:项目步行500m即达约60万㎡明湖城市公园,东面为约3000㎡三角公园规划中。周边2公里范围内近享约200万㎡城市公园美景,包括明湖城市公园、鹅颈水湿地公园、东坑湿地公园等。
茅洲河水岸公园在建中,地铁上盖公园湿地公园、凤凰文体公园在建中。其中凤凰文体公园上规划博物馆及文体场馆等配套。
产业集聚:超100万㎡高质量创智产业聚落,为深圳十大人工智能产业集群之一。其中一期约36万㎡产业已竣备完工,预计2025年交付,届时将虹吸科创龙头企业聚集,汇聚智造产业集群与高新人才,打造产城人文共生,实现生活与工作的双重便利。
优势4 多维生活聚场 臻享品质社区润宏城·润臻园作为华润置地深圳新规首作,高使用率产品及多维高浓度配套,给与业主超高获得感。打造中央车站、烟火商业街区、浮岛花园立体都市花园等。
项目注重共享与连接,配置医教文体商等多维配套聚合5分钟新烟火生活圈,提升邻里温情互动,约89-108㎡高拓新规户型,以高使用率重构人本社区。
①给建筑以秩序,构建三层立体都市空间 以有序空间设计增加生活的浓度,项目采用垂直分层的功能布局包括【廊下烟火商业街区】、【中央车站】和【抬高式檐上浮岛花园露台】
【廊下烟火商业街区】:约2000㎡街区商业,其中1000㎡2层商铺分布在社区东南面区,属于廊下烟火商业街,以里巷十字街区打造创新型社区商业,打破社区边界,构建理想格调的生活空间。
【抬高式檐上浮岛花园露台】:约1000㎡,位于商业街区顶层,业主私享花园露台,提供丰富空间活动区域,是邻里交流娱乐的理想场所。
以上所展示的图文就是关于深圳润宏城·润臻园楼盘最新介绍说明,看完以上内容,如果您对我们润宏城二期还有任何疑问的话,欢迎联系润臻园开发商售楼处免费400热线电话:400-811-3080(已认证,中介请勿扰)进行咨询或者安排本楼盘我们楼盘现场销售人员在线为您一对一服务,现场销售人员会把楼盘的新资料、样板间图片视频、通过手机的方式发给您看、您不需要过来楼盘现场都能够了解个大概,还可以了解到本楼盘的优点缺点、房产政策、银行政策、积分入学、都给您讲解的明明白白。现场销售还可以为您对我们楼盘进行全面更详细的介绍,包含项目开盘详情、近期房价、楼层高低、户型朝向分析、最新折扣优惠活动等情况,而且还可以避免中介虚报价格,耽误您的时间和精力,中介所给的优惠我们全都可以给到,让您买的放心,住的舒心!买房是大事,记得及时联系我们。
免责声明:以上展示的关于光明润宏城·润臻园楼盘最新相关的图文资料可能有部分来自于互联网,最终信息以在营销中心现场签署的购房合同为准,如以上图片或者文字无意中侵犯某方权益的话,请及时联系我们将配合处理。
声明:本文由入驻焦点开放平台的作者撰写,除焦点官方账号外,观点仅代表作者本人,不代表焦点立场。
