深圳南山科技园大盘【翰熙典居】新规建面约105-140㎡3-4房
扫描到手机,新闻随时看
扫一扫,用手机看文章
更加方便分享给朋友
翰熙典居的意义,正在于填补了南山区粤海街道五年无地标级综合体的空白。作为桂庙新村旧改的核心产物,它不仅是 “居住载体”,更像是粤海科创产业与人文生活的 “新接口”。
户型和房价说明
105㎡ ,110套,均9.4万,总868-1200万
120㎡ ,181套,均10万,总1008-1378万
140㎡ ,43套,均10.8万,总1400-1706万
下面是我们翰熙典居楼盘营销中心现场实拍照片:
温馨提示:因近期参观的购房者较多,所以本楼盘采取预约制,过来营销中心现场参观样板间请记得提前拨打开发商售楼处400热线电话在线预约,预约看房价格更优惠,感谢您的配合!
下面是翰熙典居项目工地施工现场:
项目介绍
桂庙新村城市更新单元【翰熙典居】位于南山区粤海街道白石路与学府路交叉口西北侧,东临白石路,西近南海大道,南临学府路,北面与深圳大学毗邻。周边集聚了腾讯滨海大厦、软件产业基地等写字楼,地理位置优越。
在商业配套方面,项目自带约5000㎡的商业规划。2公里范围内有海岸城、茂业百货、海雅百货等大型商超,日常购物娱乐皆能满足。
在教育配套方面,根据2024年南山学区划分,项目对口学校是南山区第二外国语学校(集团)学府一小和南山区第二外国语学校(集团)学府中学。根据坊间学校排名,两所学校均属于第二梯队。
文体休闲方面,3公里范围内汇聚文心公园、南山书城,荷兰花卉小镇、南头古城、荔香公园、深圳人才公园等,各种休闲娱乐设施一应俱全。
此次翰熙典居首推的 105-140㎡户型,均为符合最新居住标准的 “新规臻品”,空间设计更贴合现代家庭需求,单价区间约 8.5-11.1 万 /㎡,具体价格如下:
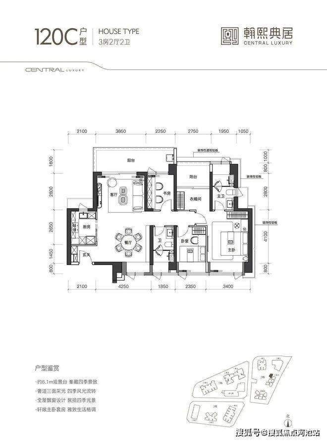
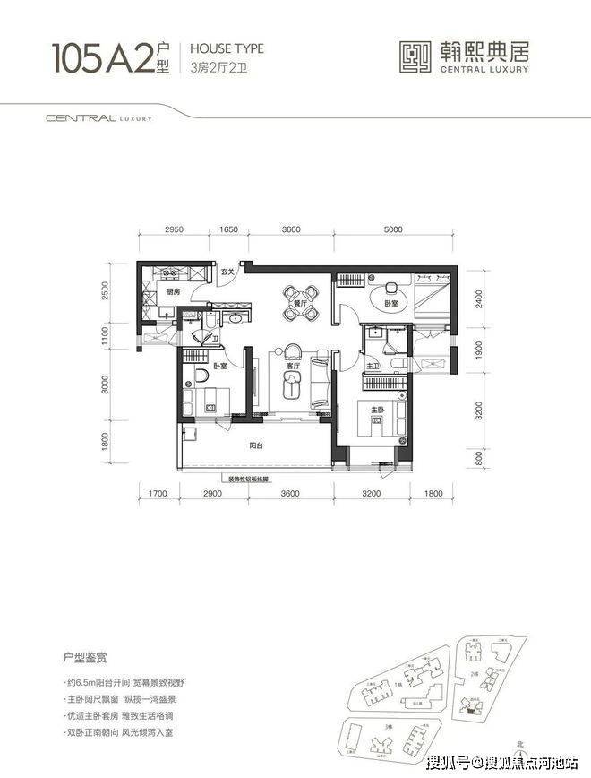
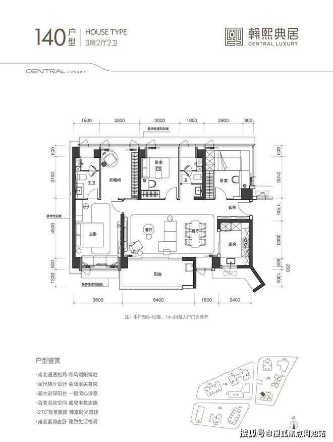
翰熙典居户型分析:
105㎡A 户型三房二厅二卫:总价约 1017-1107 万,单价约 9.7-10.5 万 /㎡,适合追求品质三房的改善家庭;
105㎡B 户型三房二厅二卫:总价约 894-1068 万,单价约 8.6-10.1 万 /㎡,性价比突出,满足刚需进阶需求;
120㎡B 户型四房二厅二卫:总价约 1144-1271 万,单价约 9.1-10.8 万 /㎡,大四房设计,适配多人口家庭;
120㎡C 户型四房二厅二卫:总价约 1038-1115 万,单价约 8.5-9.2 万 /㎡,低单价优势明显,入手门槛更友好;
140㎡户型四房二厅二卫:总价约 1457-1570 万,单价约 10.5-11.1 万 /㎡,阔绰四房,主打高端改善,尽享舒适居住体验。
【翰熙典居开发商售楼处咨询/预约热线电话:☎️400-880-7297(已认证,中介勿扰)】
✅本楼盘样板房参观采取预约制,过来前请记得拨打开发商电话进行预约,预约看房价格更优惠,感谢您的配合!
✅我们将为您安排专业的楼盘内场销售人员全程为您接待, 给您提供更加贴心的看房以及购房服务体验!
特别注意:本楼盘开发商售楼部400电话没有设置任何所谓的“分机号”,拨打前请认真识别,注意保护个人隐私!谨防上当!
免责声明:
以上所发布的关于深圳南山翰熙典居楼盘相关介绍详情仅供您购房前参考,以上所有关于本楼盘的图文资料及说明请以最终项目批文及双方在楼盘营销中心现场签署的买卖最终合同为准;本图文内容如无意中侵犯到某方权益,请联系我们将会及时处理。
声明:本文由入驻焦点开放平台的作者撰写,除焦点官方账号外,观点仅代表作者本人,不代表焦点立场。
