深业颐樾府,仅2.5容积率+16层小高层!69㎡做3房!龙华新国标住宅!
扫描到手机,新闻随时看
扫一扫,用手机看文章
更加方便分享给朋友
近期推出几套一口价房源(因不定期更新房源销控情况,欢迎来电咨询最新户型楼层)!
最新消息:龙华红山最后的大花园社区准现房新盘——深业颐樾府,最近推出了部分一口价房源,单价6.6万/平起!如需了解本楼盘更多详情,欢迎来电咨询深业颐樾府楼盘开发商售楼处免费400咨询/预约电话:400-811-3080(官方发布)中介请勿扰,因近期参观的人员太多,本项目营销中心暂不接受临时到访,为不耽误您的行程,过来楼盘现场参观样板房请务必记得提前来电预约,预约看房的话最终房价还能更加优惠,最终价格包您满意!
航拍照片:
深业颐樾府位于龙华民治街道民塘路和上塘路交汇处南面的红山核心区,属龙华CBD红山片区,是目前整个龙华城市面貌最好,配套最完善的片区,居住舒适度很高。
小区实景图
【项目基本信息】
开发商:深圳市深业华居地产有限公司
占地面积:约26114.02㎡
建筑面积:约195960.00㎡
物业类型:70年
物业公司:深业置地(深圳)物业管理有限公司
开发商电话:400 811 3080(官方发布)
绿化率:约40%
容积率:5.2
车位数:1400个
本期套数:246套
主力户型:建面约99-116㎡3-4房
产权:70年
交付标准:一期精装,二期5栋简装/6栋精装
交付时间:一期2025年9月 二期2026年9月
在售户型和房价说明(仅供参考)
一期(2/3栋)少量
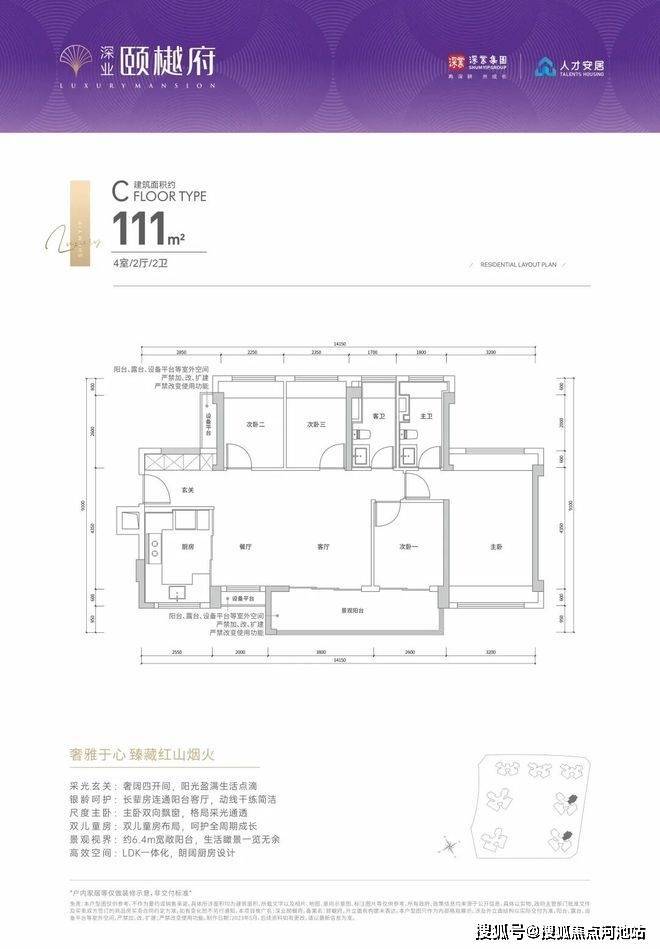
111-125㎡ 四房二厅两卫总价718万起
二期三期(5/6栋)
99㎡ 三房两厅二卫 总价665万起
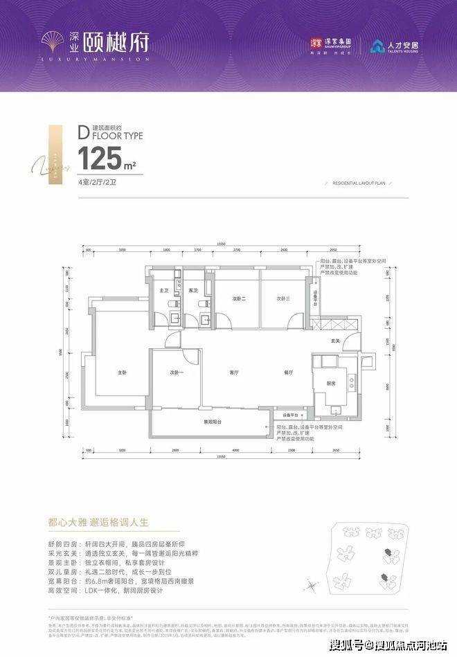
116㎡ 四房二厅两卫 总价812万起
楼盘价格
6.4万/平米起!
付款方式
首付1.5成起 分期1~30年
项目楼下就是龙华实验学校,仅一路之隔。
项目价值点
【樾·地段】 龙华登顶领峯红山
深圳中心看龙华,龙华中心看红山,红山真中芯,唯此颐樾府。2021年深圳“十四五”规划官宣,明确龙华中心纳入都市核心区,约960万m²深圳北站总部基地,商务总量比肩福田南山,红山正芯作为龙华中心的高定中央生活区,几乎无可开发地块,入主红山正席难得。
【樾级*中芯】 醇熟正芯只此终藏
红山真中芯,唯此颐樾府。深业颐樾府所处红山核心片区,坐落红山主轴C位,傲揽2平方公里繁华顶粹,是片区内为数不多的住宅用地。居于此,掌印圳芯生活,加冕封面人生。
【樾·交通】一站深圳北站多维交通
地铁交通:双地铁(地铁4号线上塘站、4/6号线交汇站-红山站);1站抵达深圳北站,快速换乘5号线;7站可抵达深圳市中心-市民中心;地铁交通便捷,快速通达全市各大核心区。
高铁交通:直线距离深圳北站约2.5公里,深圳北站作为深圳核心地铁枢纽,深圳市内一站即可通达福田站、光明城站、坪山站,两站香港西九龙站;
深圳市外约20分钟可达东莞虎门站;约30分钟可达惠州仲恺站,约40分钟可达广州南站,快速通达大湾区核心城市。
路面交通:道路交通路网完善,呈网格化布局。紧邻腾龙路及人民路两条城市主干道,临近福龙路及新区大道,约20分钟即可到达福田CBD、南山核心区。
【樾级*商圈】璀璨红山半壁龙华
◎百万商业配套:步行约600米到天虹购物中心(龙华店),项目东侧约700米华南首家COSTCO星河开市客,1.5公里以内红山6979、AT MALL上塘荟、壹方城中心等大型购物中心,万千繁华就在家门口。
◎小区商业配套:自带约2000㎡配套商业街区,一路之隔紧邻着星河CoCo Garden购物中心,家门口即可满足日常生活购物需求。
【樾·教育】学府启承涵养家风
项目自带6班公办幼儿园,一街之隔为九年一贯制公办学校——深圳市龙华区实验学校(至善校区),周边还有民顺小学、民治中学(初中)、未来小学和红山中学(高中)等,周边可轻松满足12年教育所需。
【樾级*人文】泱泱文脉艺术馆藏
◎深圳美术馆新馆:建面约6.56万㎡,建成将是深圳最大美术馆
◎深圳图书馆北馆:建面约7.2万㎡,规模超越深圳图书馆
◎深圳文化馆新馆:建面约8.33万m²,覆盖各类群体、艺术门类的地标建筑(预计2025年建成)
◎展览馆:室内展厅建面约1500㎡,市外园林建面约3000m²,中轴又一文化、艺术交流中心(已开馆)
◎演艺馆:建面约1.2万m²,比肩深圳欢乐海岸水秀剧场规模(已开馆)
◎简上体育综合体:建面约6.4万m²,龙华全民健身中心,综合性体育场馆(已开馆)
【樾·医疗】两所三甲全时护航
龙华区人民医院【三甲】:深圳市龙华区首家“三甲”医院
深圳市新华医院【三甲】(建设中):深圳市一次性投资最多且建设体量最大的单体综合医疗建筑
深圳市第二儿童医院(建设中):三级甲等专科儿童医院
广州医科大学附属第一医院(规划中):荣获中国医院呼吸专科排行榜第一
【樾·匠心】颐系力作传奇再启
深业颐樾府以半围合式宽景纯奢住区,让社区园林与城市霓虹巧妙过渡,实现出则繁华入则静谧的生活意境,收藏城市的抱负,悦赏生活风景。
主流三至四房户型,格局方正采光通透,宽景阳台揽胜云端,栖居一府天地,私享一方静界。
【樾·品牌】享誉市场府开龙华
深业集团,40载国企典范,秉承“再深耕·共成长”发展理念,探索生活的更多美好可能。深业置地,深业集团旗下专注于商业地产开发的大型房地产企业,从深业上城到颐湾府、颐泽府、颐瑞府,每一部作品皆是城市标杆所在。2022年,深业置地联袂龙华安居,落子红山中芯最后土地珍藏,敬献龙华时代封面,以非凡著作迭新深圳人居品藏。
【户型图鉴赏】
————【稀缺臻品限量发售】————
建面约99㎡三房两厅两卫
全南朝向·视野开阔·宽景阳台·目送教育
建面约116㎡四房两厅两卫
全南朝向·全屋飘窗·横厅阔绰·宽景阳台
看完以上介绍,如需了解更多关于我们深圳龙华红山深业颐樾府楼盘最新消息、剩余房源以及楼层、这几天房价优惠活动、在卖的户型、限购政策、房贷相关问题等情况,欢迎来电咨询深业颐樾府楼盘开发商售楼处全国免费400咨询/预约电话:400 811 3080(官方认证)中介请勿扰。
温馨提示:因近期本项目售楼中心来访的看房客户特别多,过来营销中心参观样板间采取预约制,为不耽误您的行程,过来营销中心现场看房请务必记得提前拨打售楼处400电话来电进行预约一下,预约看房价格还可以享受更多开发商内部优惠,名额有限千万不要错过,感谢您对我们工作的支持和配合,在此恭候您大驾光临实地品鉴。
免责声明:以上展示的关于深圳龙华区深业颐樾府楼盘最新图文资料可能有部分来自网络,一切信息以最终在现场签署的购房合同为准,如图文内容无意中侵犯某方权益的话,请及时联系我们将配合处理。
声明:本文由入驻焦点开放平台的作者撰写,除焦点官方账号外,观点仅代表作者本人,不代表焦点立场。
