花润里二期首页网站 - 花润里二期销售中心(营销中心)欢迎您 - 小区环境 - 户型 - 价格 - 地址 - 楼盘详情 - 周边配套 - 花润里二期楼盘欢迎您
扫描到手机,新闻随时看
扫一扫,用手机看文章
更加方便分享给朋友
基础资料
开发商:润盈来+白花洞投资公司
地址:深圳市光明区观光路与明富民路交汇处
占地面积:1.56万㎡
总建面:8.1万㎡
产权:70年(年)
总户数:399户
面积;84-86㎡3房2卫96-97㎡3房 2卫115-118㎡4房2卫
车位比:616个
梯户比:2梯4户/2梯5户
价格:3.67-4.3万
交楼标准:精装
物业公司:金地物业
物业管理费:3.9元/㎡
容积率:3.3
绿化:40%
交楼时间:24年12月
建筑类型:住宅
层高:3米
使用率:80-85%
楼层高:2栋1/2单元47层,1栋1单元46层2单元47层,3栋48层
栋数:5栋
水电:民水民电
开发商电话:400 811 3080
学校:光明外柜,光明百花实验+规划九年制学校
平面•户型图
约84㎡户型全明方正格局,整体采用餐客厅一体化设计,入户玄关宽约1.55米。
客餐厅的整体开间约3.5米,客厅出阳台,坐在沙发上就可以欣赏外面的山景。
厨房配置了一个小阳台,可以放置洗衣机。
客卫做到干湿分离,更好地保证隐私,提高效率,可以满足小太阳家庭需求。
主卧套间设计,开间约2.8米,不算飘窗进深约3.05米,主卧带阳台灵动精巧,后期可以改成一个小书房,做到约86㎡2+1房。
次卧带飘窗,可以利用起来和床融为一体,开间约3米,进深约2.8米,舒适通透。
约84㎡的产品比较稀缺,分布在2栋和3栋,一共四条腿,朝南和朝北的都有。
约96㎡户型的空间尺度进一步拉伸,且都是朝南的。
动静分区+U型厨房+分离式卫生间设计,功能科学合理,观景阳台更加阔绰。
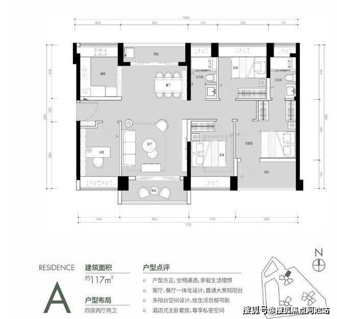
约117㎡户型做到了真四房+全明通透,可满足三代同堂及成长型家庭所需。
主卧酒店式套房设计,独享私密空间;多阳台空间,深圳买房选杨帆,它可以是品茗休闲的观景台,也可以安放日常优雅健身的瑜伽垫,赋予生活更多可能。
约115-118㎡的产品分别每个楼栋都有一条腿,设计独立玄关,功能分区明确,客厅大气,尺度疏阔。
交通配套
【地铁18号线】1站直达光明城站,换乘13号线(在建),6站到南山;
【光明高铁站】快速到达福田、广州、香港,实现快速湾区生活圈;
【观光路】串联光明与龙华的产业走廊;
【龙大高速、南光高速】快速通达深圳各城区,高效链接都会生活圈;
道路紧邻观光路,快速连接龙大高速、深圳外环高速、珠三角环线高速。驾车到光明城高铁站,只需约10分钟,到深圳北站约半小时。
休闲•生态
花润里位于光明唯一省级生态区,白花社区连续多年获得“广东省宜居社区”;
【三山环绕】吊神山、求水顶、九龙山群峰叠翠,推窗瞰景;
【四水环抱】白花河水蜿蜒流经,区域内还有鹅颈、禾槎涧及畔坑等三大水库,景色优美秀丽;
2所幼儿园+百花实验学校+自带规划教育用地
自带建面约1600㎡的6班制公立幼儿园,项目东侧有一块九年一贯教育规划用地。项目东北侧是百花实验幼儿园,步行约5分钟就到;距离百花实验学校步行距离约900米,步行约10分钟可到达;距离光明外国语学校约4公里。(具体学区划分以教育局公布为准)
深圳花润里润璟里开发商售楼处电话 400-811-3080(中介勿扰)
过来售楼中心看房请提前预约,可尊享内部特惠,价格包您满意!
为您安排楼盘内场专业销售人员一对一接待服务!让你买的放心,住的舒心!
免责声明🔉:
以上所发布的关于楼盘相关图文信息仅供您买房前参考,以上所有关于本楼盘的图文资料及说明请以最终以项目批文及双方在楼盘营销中心现场签署的买卖最终合同为准;本图文内容如无意中侵犯到某方权益,请联系我们将会及时处理。
声明:本文由入驻焦点开放平台的作者撰写,除焦点官方账号外,观点仅代表作者本人,不代表焦点立场。
