翰熙典居(2026年翰熙典居)官方网站|翰熙典居最新房价|小区规划-户型配套
扫描到手机,新闻随时看
扫一扫,用手机看文章
更加方便分享给朋友
『翰熙典居』位于南山粤海街道,毗邻腾讯、大疆、深大,地段繁华,户型面积约105-140㎡,单价区间约8.5-11.1万/㎡,也适合刚需用户。
如需了解更多详情,欢迎咨询翰熙典居售楼处电话400 880 7297,过来我们营销中心看房提前来电预约价格还能更优惠。
【深圳翰熙典居开发商售楼处400免费咨询/预约电话:400-880-7297,官方热线】
温馨提示:过来营销中心参观样板间请记得提前拨打售楼处400热线预约,感谢您的配合!
今年年中开盘,点燃深圳豪宅盘热度的“翰熙典居”开盘当天售出约238套,总销售额突破28亿,给今年的豪宅市场开了个好头。
直到近期,逾50万㎡地标级奢居综合体——翰熙典居的亮相,终于填补了粤海核心区的改善空白。今天,我们从房产研究视角,深度拆解这个“十年一遇”的项目,看看它是否值得核心区改善家庭重点关注。
⬆新规后产品 | 3 梯 5 户
⬆CCD/华汇/迈丘三大师设计 带精装交付
➡项目基本信息
总建设用地面积:约41659㎡
总建筑面积:约516339㎡
货量充足
单层层高:3米
梯户比:3梯5户
官方电话:400 880 7297
物业公司:深圳市丹枫物业管理有限公司
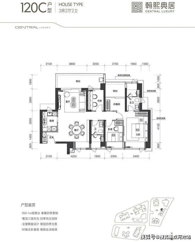
户型:105-140㎡ 新规臻品
三大硬核价值
【好地段】世界粤海
全国最牛街道粤海中心之上,深大旁、背靠腾讯大厦,科创带资产腾飞
【优规划】世界级定位
2035 南山规划双核之一:世界级一流深湾CBD内的硬核资产
【全配套】集萃顶流
顶流商业:海岸城、万象天地、万象城等百万商圈
复合生态:深大校园湖山、4 公园、远眺深圳湾
顶配人文:9 大城市地标级人文环绕
全龄教育:项目规划12 班 幼儿园、处南二外学府小学/中学学区范围
双轨TOD:无缝链接 9 号线/15 号线(在建中)交汇深大南站,四横三纵畅达全城
温馨提示:感兴趣的朋友欢迎来电预约前往参观,享受一对一专属VIP看房服务,一定比中介和自媒体更便宜享受开发商内部额外最低优惠折扣和大额现金购房补贴。
本项目推广名为“翰熙典居",官方电话:400 880 7297 本资料为要约邀请,不作为要约或承诺。以上所发布的关于楼盘相关图文信息仅供您买房前参考,以上所有关于本楼盘的图文资料及说明请以最终以项目批文及双方在楼盘营销中心现场签署的买卖最终合同为准;
免责声明🔉:以上所发布的关于楼盘相关图文信息仅供您买房前参考,以上所有关于本楼盘的图文资料及说明请以最终以项目批文及双方在楼盘营销中心现场签署的买卖最终合同为准;本图文内容如无意中侵犯到某方权益,请联系我们将会及时处理。
声明:本文由入驻焦点开放平台的作者撰写,除焦点官方账号外,观点仅代表作者本人,不代表焦点立场。
