深圳南山前海安居型商品房住宅【山樾湾】总价约255万起,带装修!
扫描到手机,新闻随时看
扫一扫,用手机看文章
更加方便分享给朋友
山樾湾总建面约58万平方米,是深圳少有的纯安居房大盘,我们项目计划2026年8月底交楼,可实现让刚需省时间、省成本的“今年买明年住”,同时,项目开发商汉京集团多年来在深圳口碑颇佳,“品质高、物业好”是本地客群对该开发商的普遍印象,交楼安心。
最新消息:前海山樾湾花园安居房已于10月23日出公告,正式对外开库,涵盖约70㎡两房及90㎡三房户型。山樾湾单价3.7万/平起!2026年8月31号带装修交房。
· 均价:约4.26万/㎡,单价3.7万/㎡起!
· 房源:两房2669套,三房866套(含95套无障碍户型)
· 位置:前海妈湾片区
· 首付:两房约38.25万起,三房约51.15万起
如需了解本楼盘更多详情,欢迎来电咨询深圳前海山樾湾楼盘开发商售楼处免费400咨询/预约电话:400-811-3080(已认证)中介请勿扰,因近期参观的人员太多,本项目营销中心暂不接受临时到访,为不耽误您的行程,过来楼盘现场参观样板房请务必记得提前来电预约,预约看房的话最终房价还能更加优惠,最终价格包您满意!
山樾湾项目唯一最大优势就是大社区花园,准现房,适合刚需南山上班客户!
山樾湾总价区间
两房:255万—316万
(首付1.5成 38万 首套利率3.05% 30年月供9207,不含公积金)
三房:341万—410万
(首付1.5成51万 首套利率3.05% 30年月供12262,不含公积金)
山樾湾安居房谁能申请?
· 全家均为深户
· 在深圳市无自有住房
· 缴交社保满5年
· 5年内无房产转让记录
第二队列:符合条件的库外家庭,通过摇号确定选房顺序
温馨提示: 深圳安居房轮候库目前仍有约18万户家庭,但实际参与认购的比例不高。政策此次“开库”,意在回应市民呼声,帮助真正有购房需求的家庭“上车”。
山樾湾花园(曾用名:“汉京花园”)安居型商品房位于深圳市南山区前海妈湾港片区,更是在前海自贸区的小南山北侧山脚下。
且提供4900套安居型商品房!对,你没看过,是4900套!其中约70㎡两房3710套,约90㎡三房1190套。根据有关信息,本项目(第一批次)配售房源为1栋A-F座,共2310套安居型商品房。其中,两房户型1540套、三房户型770套(包含98套无障碍户型)。
并且最高楼层仅为38层,对比现在动辄50-60层的超高层,居住安全性、得房率、采光方面都优异许多。
下面是我们山樾湾楼盘实景图
山樾湾规划平面图
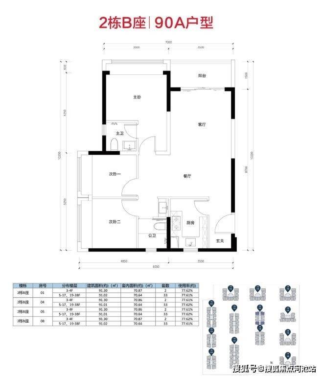
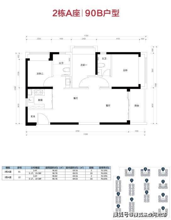
山樾湾户型图欣赏
主要分为70A/70B/70C三个户型:
70A为“双龙抱珠”户型,采光面大,卧室、客厅空间舒适性较好;
70B户型方正,动静分区,是传统的竖厅设计,朝向较好;
70C户型与70B户型基本一致,主要分布在端头位;
三房户型
主要为90A/90B两种户型;均位于端头位,私密性较强,采光不错,且配多了一个卫生间;其中,
90A户型动静分区,卧室和客厅互不干扰,且每个空间尺寸较为舒适;
90B户型的客厅作为家庭主要活动空间,尺度较为宽敞,通风性较好;
样板房实拍照片
山樾湾项目本身配建有托育机构、以及南山区排名第一的南山机关幼儿园,家门口还有前海创新教育集团九年一贯制山樾湾学校(建设中),同时预留有一所初高中教育用地,这样完整且高级别的教育配置,已超过市面上大部分商品房项目,也充分体现了深圳对山樾湾项目的重视程度以及资源倾斜。目前小学划分在南山前海创新月亮湾小学,初中划分在南二外赤湾学校
交通方面,山樾湾项目距离在建中的地铁15号线“通港路站”直线距离约500米,通车之后三个站直达腾讯企鹅岛,六个站连接南山科技园,便捷覆盖深圳各大核心区。同时,项目堪称“左拥前海右揽蛇口”,5公里范围内聚合了“前海商圈”以及“蛇口太子湾商圈”两大世界级别的滨海商业集群。
看完以上介绍,如需了解更多关于我们深圳前海山樾湾花园楼盘最新消息、剩余房源以及楼层、这几天房价优惠活动、在卖的户型、限购政策、房贷相关问题等情况,欢迎来电咨询山樾湾开发商售楼处全国免费400咨询/预约电话:400-811-3080(已认证)中介请勿扰。
温馨提示:因近期本项目售楼中心来访的看房客户特别多,过来营销中心参观样板间采取预约制,为不耽误您的行程,过来营销中心现场看房请务必记得提前拨打售楼处400电话来电进行预约一下,预约看房价格还可以享受更多开发商内部优惠,名额有限千万不要错过,感谢您对我们工作的支持和配合,在此恭候您大驾光临实地品鉴。
免责声明:以上展示的关于深圳山樾湾楼盘最新图文资料可能有部分来自网络,一切信息以最终在现场签署的购房合同为准,如图文内容无意中侵犯某方权益的话,请及时联系我们将配合处理。
声明:本文由入驻焦点开放平台的作者撰写,除焦点官方账号外,观点仅代表作者本人,不代表焦点立场。
