后海招商玺(深圳南山)后海招商玺-项目简介|后海招商玺欢迎您-楼盘详情
扫描到手机,新闻随时看
扫一扫,用手机看文章
更加方便分享给朋友
最新消息:深圳又一豪宅「后海招商玺」最新消息来了,预计最快本周末将开发异地样板房,12月底拿证开盘!
项目共4栋住宅楼,总占地面积约1.5万㎡,建筑面积约15万㎡,容积率约6.6,同时有2100㎡裙楼商业、2200㎡6班制幼儿园,可售总户数261套,地下4层停车场总车位700个,车位配比1:1.3,首推 1 栋约42套 197-235㎡四房大平层住宅。
【后海招商玺开发商售楼处400免费咨询/预约电话:400-880-7297,官方热线】
温馨提示:过来营销中心参观样板间请记得提前拨打售楼处400热线预约,感谢您的配合!
今年首开1栋高层住宅,197-235㎡四房大平层,属于通透板楼设计,视野无遮挡。这次设计采用“浮岛甲板”设计策略,四栋住宅落于甲板之上,独享甲板庭院花园。进而形成超级社区底盘 + 浮岛绿化甲板的垂直共生人居标杆。
本次推出总共42套,建筑面积约197/237㎡2个面积产品:
(以下是总平面图)
建面约197㎡户型,产品亮点:
采用专梯入户设计,私属感拉满;且高赠送,含电梯厅综合赠送后使用率可达93-95%,新规产品相较于上一代产品(中海深湾玖序)使用率为约80%
户型方正,三面采光,双套房朝南、双龙抱珠、动静分区,客厅进深约6m,客厅开间约8m,面积高达48㎡
户型做了框架结构设计,把承重体系放在梁板柱等基础构建,可根据全生命周期根据需求定制化户型
景观阳台与生活阳台双区分,阳台约22㎡,比沄玺209㎡户型阳台(11㎡)足足大了一倍
厨房做了U型明厨设计,卫生间全明设计。
主卧采用豪华套房+步入式衣帽间设计,打造开间约4.6m、进深约4.5m,面积达38㎡的270°奢华空间
次卧套间的开间约3.2m、进深约4.5m(含飘窗约0.8m),面积约22㎡,每个卧室都设计了宽景飘窗,可以利用其增加收纳,延伸更多生活功能场景
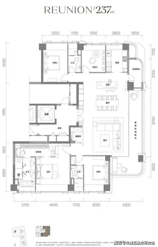
建面约237㎡户型图,产品亮点:
采用专梯入户设计,私属感拉满;且高赠送,含电梯厅综合赠送后使用率可达93-95%,新规产品相较于上一代产品(中海深湾玖序)使用率为约80%
户型方正,三面采光,双套房朝南、双龙抱珠、动静分区
客厅面积高达60㎡,接近标准羽毛球场的大小(65㎡)
户型做了框架结构设计,把承重体系放在梁板柱等基础构建,可根据全生命周期根据需求定制化户型
双阳台,阳台面积约31㎡,长约18.9米,L型270度拐角瞰景阳台将景观一览无遗,同时景观阳台与生活阳台区分,景观阳台除兼顾观景外,还增加“X”百变空间(约10㎡,最宽进深2.4米)
主卧采用豪华套房设计,超长步入式衣帽间,主卧的开间约7.05m、进深约6.3m,主卧空间高达44平,237㎡户型极其罕见的做到与太子湾招商玺425平的主卧尺寸。
次卧套间的开间约5m、进深约4.5m(含飘窗约0.8m),每个卧室都设计了宽景飘窗,可以利用其增加收纳,延伸更多生活功能场景。
交通:项目位于2号线海月站和湾厦站之间,直线距离约500m左右,2站抵达后海站,可换乘11号/13号地铁线,2站直达福田、前海。距离12号线四海站直线距离1.2Km。
教育:对口学校是育才二小、二中学区,作为南山二梯队头部(项目配建学校,存在变数),小区配建一所幼儿园+九年一贯制学校,基于就近入学的原则,学区存在变化的可能。
温馨提示:感兴趣的朋友欢迎来电预约前往参观,享受一对一专属VIP看房服务,一定比中介和自媒体更便宜享受开发商内部额外最低优惠折扣和大额现金购房补贴。
本项目推广名为“后海招商玺",官方电话:400 880 7297 本资料为要约邀请,不作为要约或承诺。以上所发布的关于楼盘相关图文信息仅供您买房前参考,以上所有关于本楼盘的图文资料及说明请以最终以项目批文及双方在楼盘营销中心现场签署的买卖最终合同为准;
免责声明🔉:以上所发布的关于楼盘相关图文信息仅供您买房前参考,以上所有关于本楼盘的图文资料及说明请以最终以项目批文及双方在楼盘营销中心现场签署的买卖最终合同为准;本图文内容如无意中侵犯到某方权益,请联系我们将会及时处理。
声明:本文由入驻焦点开放平台的作者撰写,除焦点官方账号外,观点仅代表作者本人,不代表焦点立场。
