深圳中海时光境楼盘售楼处电话,物业费,开发商,学校,地铁,户型图,交楼时间,折扣优惠
扫描到手机,新闻随时看
扫一扫,用手机看文章
更加方便分享给朋友
深圳光明【中海时光境】
最新动态:光明凤凰城新楼盘中海时光境花园预计下周取证,开盘价预计3.85万起/㎡,推出的住宅户型有82-89-108三个面积段,共12种户型,共计1537套。如需了解更多关于我们光明中海时光境楼盘最新消息,请咨询开发商售楼部400免费热线。
【中海时光境开发商售楼处咨询/预约电话📞: 400-811-3080,中介勿扰】
温馨提示:本项目采用预约制,过来营销中心参观样板间请记得提前拨打开发商楼盘售楼处400热线电话在线预约,感谢您的配合!
中海时光境花园,这个楼盘距离13号线光明城枢纽站300米,位于光明科学城的核心片区,高品质的花园社区。
中海时光境是光明A503-0100宗地,由中海以31.92亿拍下该宗地,项目普通商品住房毛坯平均销售价格不高于4.89万,位于光明区凤凰城,观光路与科林路交汇处东南角。

中海时光境值不值得买?
中海时光境 位于光明凤凰城的规划范围内,近年来片区因为规划利好不断,片区中的项目也受益不少。
首先,光明 “十四五” 规划中提出了要以凤凰城等区域为中心,着力增强现代商贸发展活力,促进产品集聚、品牌集聚、消费集聚,推动 空间升级、业态升级、品质升级,打造现代化、国际范、时尚风的商贸流通体系。
其次,光明凤凰城,作为光明科学城 “一心两区” 中的产业转化区,布局了多个重点项目,聚焦先进制造、企业总部、交通枢纽等功能,将打造产业集聚的智造高地和功能完善的城市会客厅。

区域内吸引了一大批国内外行业龙头企业和重大项目入驻,其中以华星光电为首的产业园区是规模最大的,华星光电三期项目叠加,累计投资超过 1000多亿元,是深圳建市以来单笔投资最大的工业项目。
除了优越的产业规划之外,片区交通、教育配套等方面也在不断提速、兑现。
【项目基本信息】
【项目名称】中海时光境
【占地面积】约27057㎡
【建筑面积】约169851㎡
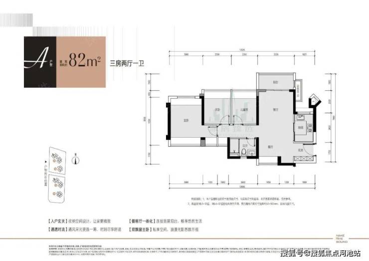
【推售产品】建面约82-89-108㎡三至四房
【开发商电话】4008113080
【交付标准】送简装
【交房时间】待定
【产权年限】70年
【房产性质】住宅
【总户数】1739户
【车位数】1740位
【容积率】5.6
【绿化率】约30%
【梯户比】3T6
【开发商】中海地产
【物业公司】中海物业

项目配套
交通配套:距离在建的13号线同观路站约300米,距离已开通的6号线长圳站约2公里,此外,项目还临近18号线(规划中)光明城站。
商业配套:项目配建2800㎡底商,体量不大,大型商业需要去2站外凤凰城站的万达广场、蓝鲸世界,远期有规划光明城站的大型商业体。
教育配套:项目一路之隔是南方科技大学附属光明凤凰学校,3.5公里内还有东周小学、光明实验学校、光明小学、光明中学等。
生态配套:距离项目1.8公里是光明新城公园,平时居民散步和运动都十分方便;约2.3公里,有光明文化艺术中心、光明区群众体育中心。
周边价格:项目周边新房住宅近期都在打折扣,单价最低甚至3.8万带装修。二手房指导价在4.68-5.19万/㎡之间,挂牌价在7.68-8.17万/㎡之间。希望它的价格可以让我们眼前一亮吧。

中海时光境优点:
1:项目距离光明高铁站约200米,该站点前往福田高铁站仅需20分钟左右,对于依靠高铁通勤至深圳的上班族较为便利;
2:项目位于光明凤凰城核心片区,周边各类配套齐全,拥有众多大型规划利好;
3:项目邻近在建的13号线同观路站约300米,未来去往南山、福田等核心区域都较为便利。
【深圳中海时光境开发商售楼处咨询/预约电话☎️400-811-3080(中介勿扰)】
✅ 过来楼盘售楼处现场参观样板房,请记得提前拨打电话进行在线预约,预约看房价格更优惠,感谢配合!
✅我们将安排楼盘内场销售人员全程为您接待, 给您提供贴心的看房服务体验!
注意:本楼盘开发商售楼部400电话没有设置任何“分机号”,拨打前请认真识别,注意保护个人隐私!谨防上当!
免责声明🔉:
以上所发布的关于深圳光明中海时光境楼盘相关介绍详情仅供您购房前参考,以上所有关于本楼盘的图文资料及说明请以最终项目批文及双方在楼盘营销中心现场签署的买卖最终合同为准;本图文内容如无意中侵犯到某方权益,请联系我们将会及时处理。
声明:本文由入驻焦点开放平台的作者撰写,除焦点官方账号外,观点仅代表作者本人,不代表焦点立场。
